9 - 2081 11 AVENUE NORTHEAST, Salmon Arm, British Columbia V1E0G1
Contact us about this property
Highlights
Estimated valueThis is the price Wahi expects this property to sell for.
The calculation is powered by our Instant Home Value Estimate, which uses current market and property price trends to estimate your home’s value with a 90% accuracy rate.Not available
Price/Sqft$404/sqft
Monthly cost
Open Calculator
Description
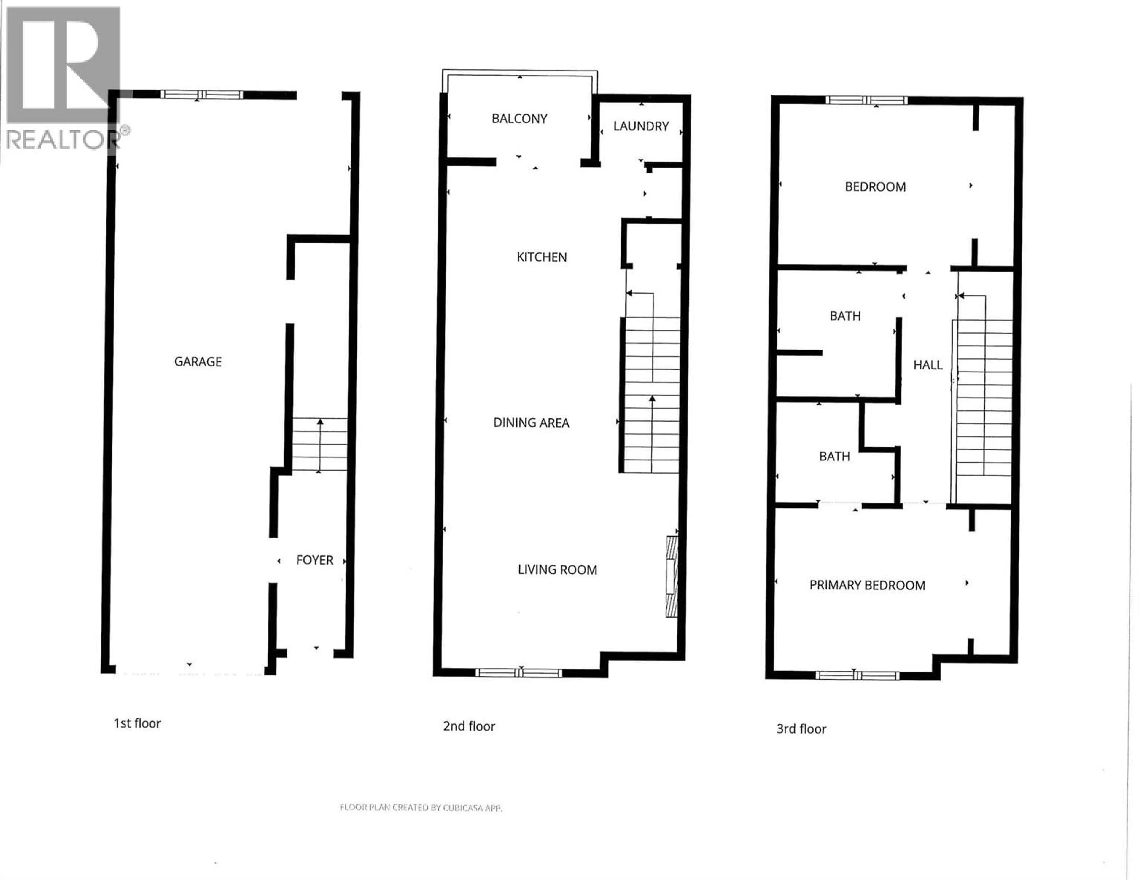
This well-designed 2 bedroom, 2 bathroom townhome, built in 2019, offers modern comfort in a sought after uptown location. The bright, open-concept main floor is designed for both comfort and functionality, featuring a spacious living room with an electric fireplace, a well-appointed kitchen with stainless steel appliances, peninsula seating, and pantry storage, plus easy deck access right off the kitchen—perfect for morning coffee or summer BBQs. A convenient main floor laundry room adds to the thoughtful layout. Upstairs, you’ll find two bedrooms and two full bathrooms, including a primary suite complete with its own 3-piece ensuite. The tandem double garage provides ample parking and extra storage space, making this home as practical as it is appealing. Move-in ready and ideally situated within walking distance to shops, dining, and services, this is low-maintenance living in a location that truly delivers. (id:39198)
Property Details
Interior
Features
Basement Floor
Other
10'5'' x 34'11''Foyer
4'2'' x 10'7''Exterior
Parking
Garage spaces -
Garage type -
Total parking spaces 2
Condo Details
Inclusions
Property History
25





