153 - 4035 GELLATLY ROAD SOUTH, West Kelowna, British Columbia V4T1R7
Contact us about this property
Highlights
Estimated valueThis is the price Wahi expects this property to sell for.
The calculation is powered by our Instant Home Value Estimate, which uses current market and property price trends to estimate your home’s value with a 90% accuracy rate.Not available
Price/Sqft$444/sqft
Monthly cost
Open Calculator
Description
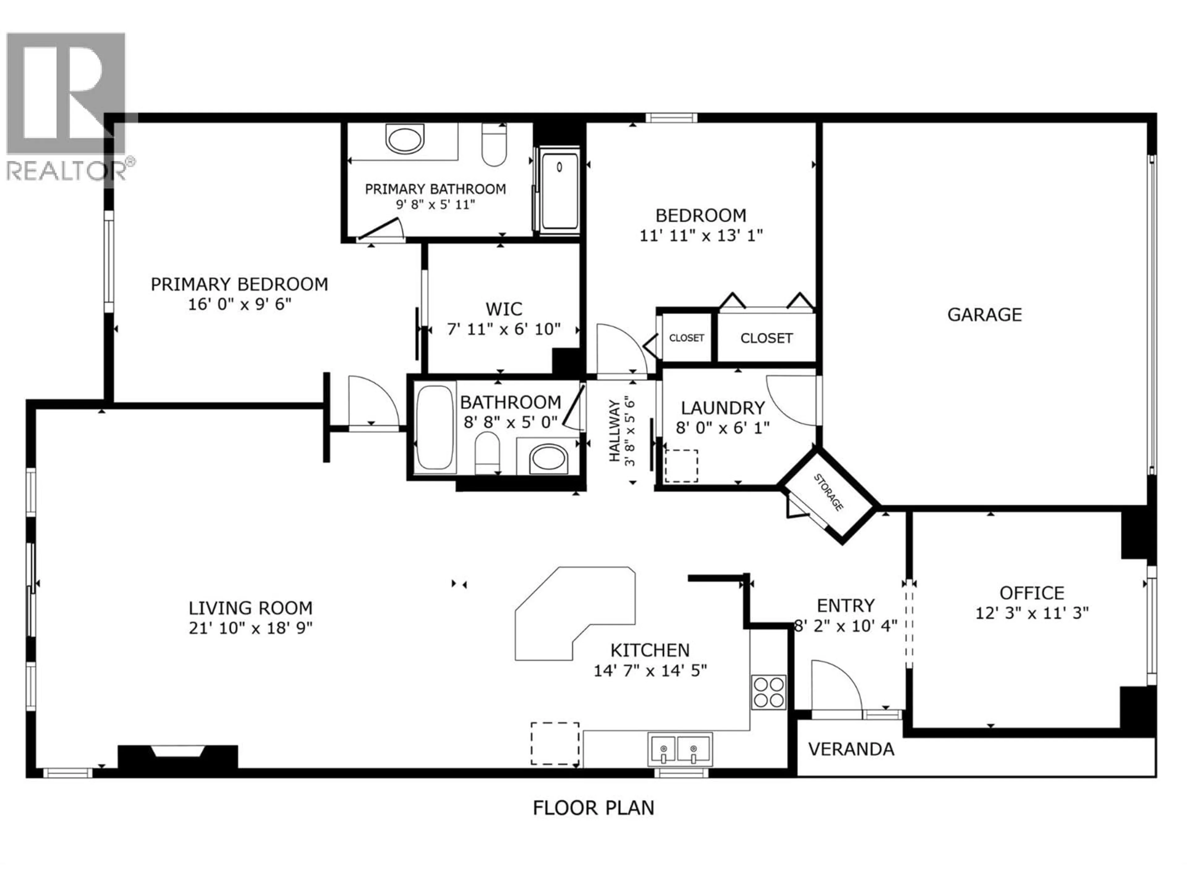
OPEN HOUSE ~ Saturday January 17th from 1-3 PM. In a lovely quiet location in Canyon Ridge, you will find this 2 bedroom plus den, 2 bath rancher style single-family home that exemplifies easy living! The front den is that perfect 'extra' space for your movie nights or quiet reading spot. Or for your office, if you prefer! The kitchen to dining to living room is vaulted and open concept, allowing lots of light in. The main area is in hardwood, the the former carpet in the den and bedrooms has all been replaced with durable vinyl plank flooring. (NO carpet in this home - great for allergy sufferers!) Most of the blinds have been replaced with custom remote motorized blinds - that work like a charm :) The primary bedroom is spacious, has windows to the rear yard, features a spacious ensuite with a walk-in shower and a large walk-in closet. The second bedroom is a nice size, and next to the main bath. Both baths have had the toilets replaced with comfort-height toilets. You'll also find the halls & doorways comfortably wide. The current owner had the entire home repainted, and it has been lightly lived in. The dishwasher was recently replaced, and the home has a central vacuum system. The hot water tank was replaced about 5-6 years ago. The laundry room has great space for storage, the double garage has more storage space, plus there's a large 4ft crawl space. Lovely private yard. Canyon Ridge also features an inviting clubhouse - it's a great community to call home! (id:39198)
Property Details
Interior
Features
Main level Floor
Foyer
8'2'' x 10'4''4pc Bathroom
8'8'' x 5'3pc Ensuite bath
6'0'' x 9'8''Laundry room
6'0'' x 8'0''Exterior
Parking
Garage spaces -
Garage type -
Total parking spaces 2
Property History
38




