28 - 1881 BOUCHERIE ROAD, Westbank, British Columbia V4T0C9
Contact us about this property
Highlights
Estimated valueThis is the price Wahi expects this property to sell for.
The calculation is powered by our Instant Home Value Estimate, which uses current market and property price trends to estimate your home’s value with a 90% accuracy rate.Not available
Price/Sqft$93/sqft
Monthly cost
Open Calculator
Description
Tucked away in a quiet, beautifully maintained park, this charming double-wide home offers an ideal mix of tranquility and convenience. Backing onto a gentle creek, the peaceful setting is surrounded by nature, creating a truly relaxing atmosphere. Inside, the well-designed floor plan features 2 comfortable bedrooms, 1 bathroom, and a bright, open-concept kitchen and living space that feels both spacious and inviting. Step outside to your own private backyard retreat, complete with multiple planter boxes for gardening enthusiasts and a mature cherry tree that provides both shade and character. Just minutes from the lake, renowned wineries, and two exceptional golf courses, you’ll enjoy having some of the area’s best amenities right at your doorstep. Situated in a friendly 55+ community, this home offers the perfect opportunity to embrace a quiet, low-maintenance lifestyle in a wonderful setting. (id:39198)
Property Details
Interior
Features
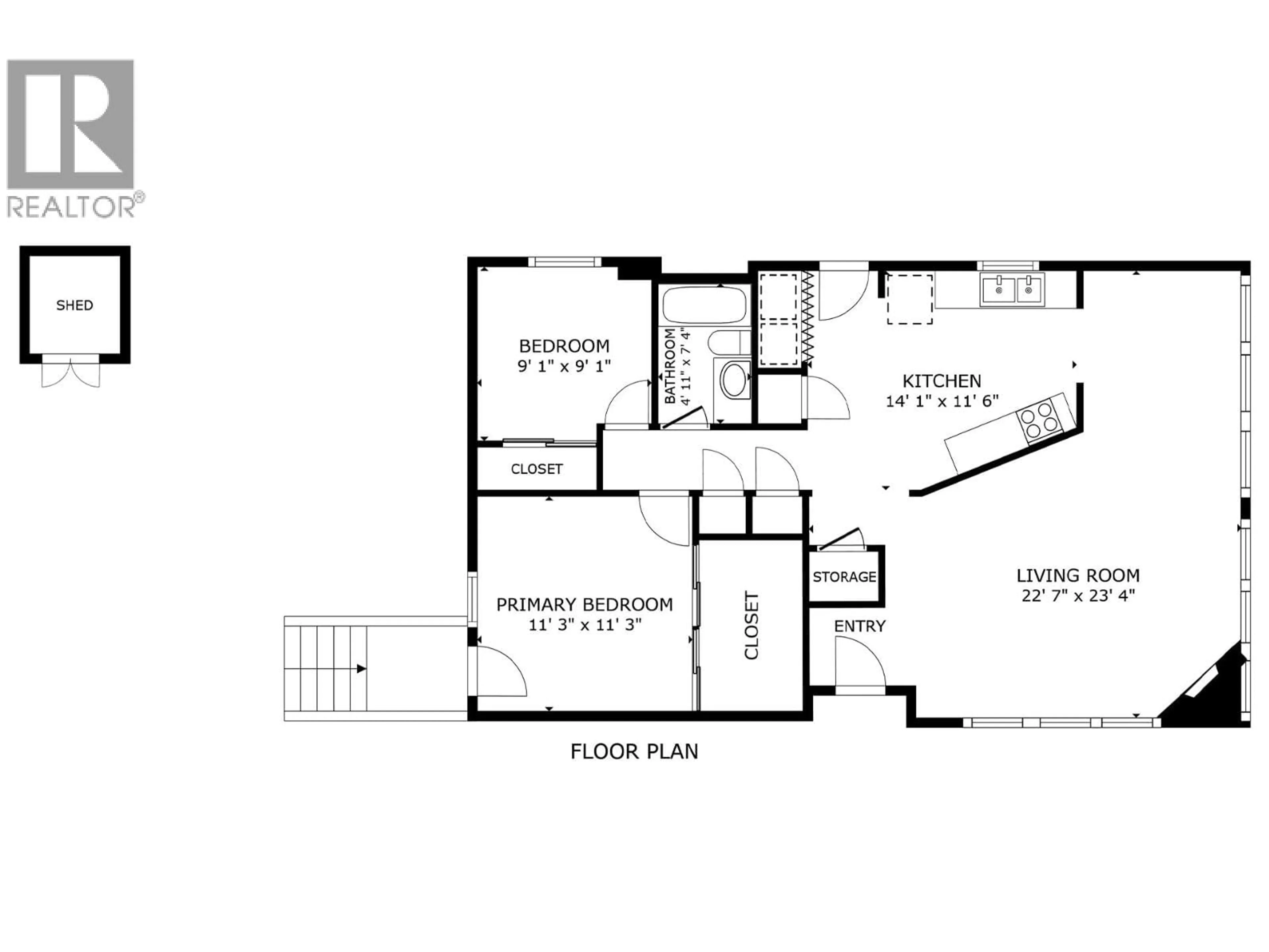
Main level Floor
Full bathroom
4'11'' x 7'4''Bedroom
9'1'' x 9'1''Primary Bedroom
11'3'' x 11'3''Kitchen
11'6'' x 14'1''Exterior
Parking
Garage spaces -
Garage type -
Total parking spaces 2
Property History
43




