6034 GARRAWAY PLACE, Peachland, British Columbia V0H1X4
Contact us about this property
Highlights
Estimated valueThis is the price Wahi expects this property to sell for.
The calculation is powered by our Instant Home Value Estimate, which uses current market and property price trends to estimate your home’s value with a 90% accuracy rate.Not available
Price/Sqft$553/sqft
Monthly cost
Open Calculator
Description
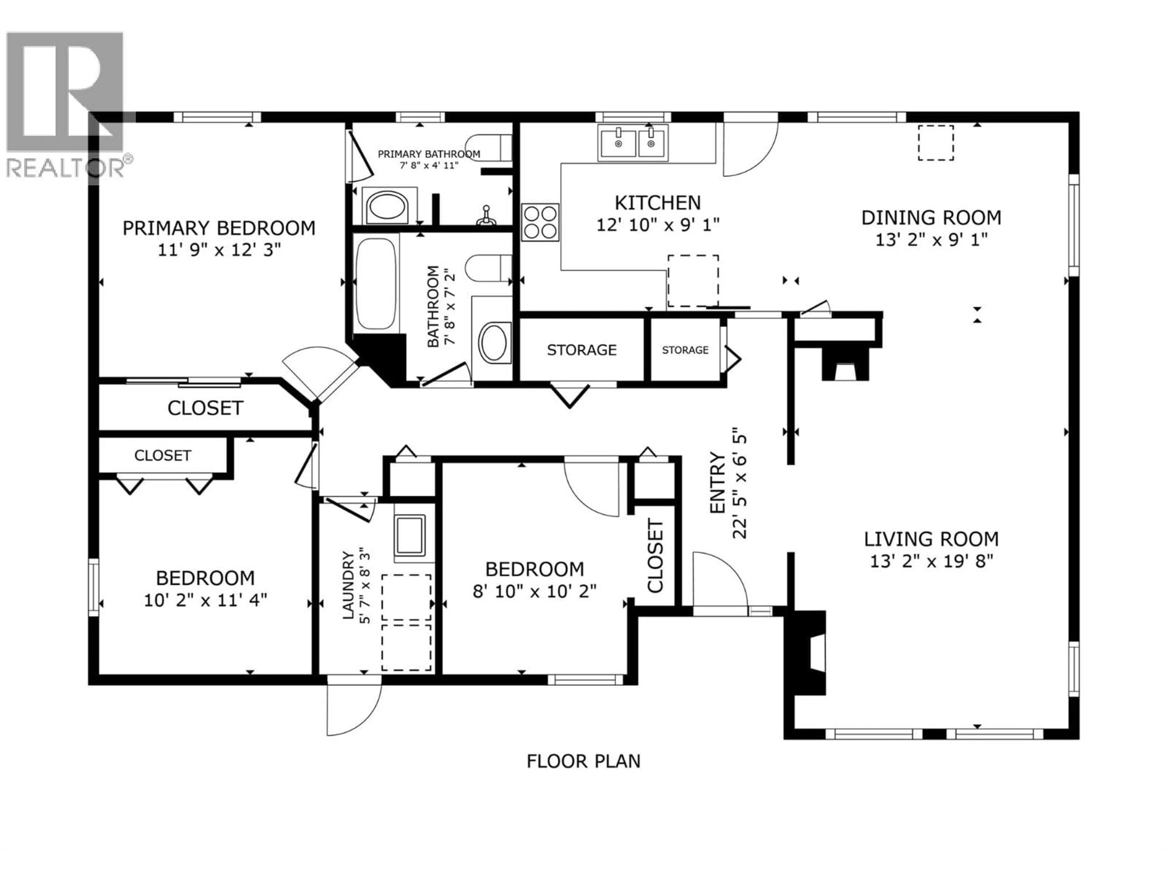
Attention first-time home buyers, downsizers, or investors - welcome to 6034 Garraway Place in beautiful Peachland! This no-stair rancher in a quiet cul-de-sac, close to parks has great RV parking on a flat corner lot! Large windows fill the home with natural light. Open concept living with gas fireplace, a dining area, and the kitchen facing the backyard views. Down the hall you'll find 3 comfortable bedrooms, two baths and a convenient laundry room with access from the garage. You'll find the new-style light/fan combo in the dining room and bedrooms very cool! The hot water tank was replaced 3 years ago, and the furnace is 12 years old. Fully fenced backyard (bring the pets) with a lovely semi-enclosed patio, nice rock wall, and a couple of fruit trees as well as two sheds that will stay with the property. This home is in a great neighbourhood, steps to Turner Park and Sanderson off-leash dog park. Well-maintained and ready for the next owners who want to call this place home - just minutes from the beautiful lakefront boardwalk that Peachland is famous for! (id:39198)
Property Details
Interior
Features
Main level Floor
Full bathroom
7'2'' x 7'8''Full ensuite bathroom
4'11'' x 7'8''Bedroom
10' x 9'8''Primary Bedroom
12'3'' x 11'11''Exterior
Parking
Garage spaces -
Garage type -
Total parking spaces 2
Property History
55




