250 HUSCH ROAD, Kelowna, British Columbia V1X1N1
Contact us about this property
Highlights
Estimated valueThis is the price Wahi expects this property to sell for.
The calculation is powered by our Instant Home Value Estimate, which uses current market and property price trends to estimate your home’s value with a 90% accuracy rate.Not available
Price/Sqft$317/sqft
Monthly cost
Open Calculator
Description
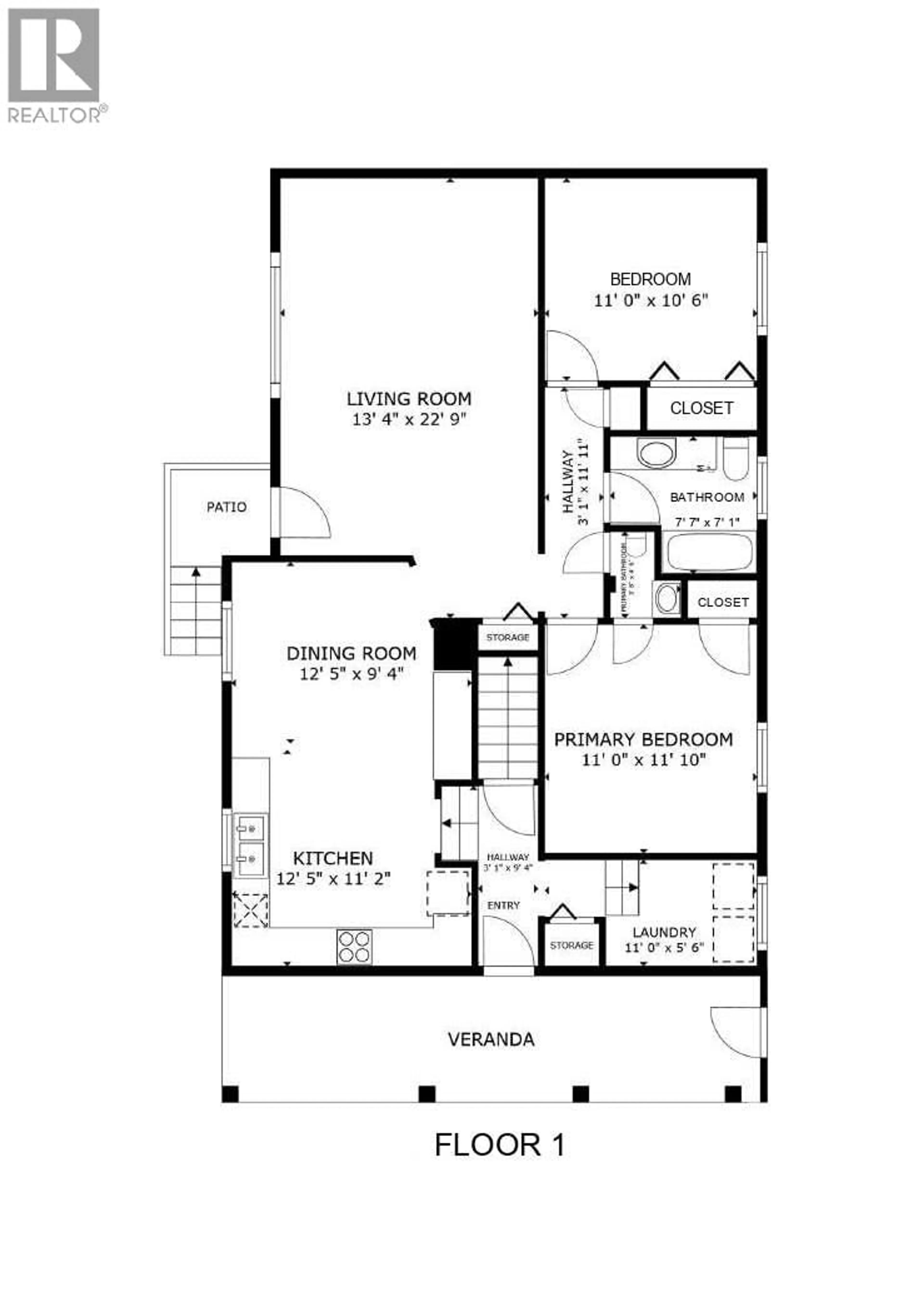
Welcome to 250 Husch Road, a warm and inviting single family home located in the heart of Rutland, one of Kelowna's most convenient and family oriented neighbourhoods. This beautiful residence offers 4 spacious bedrooms and a functional layout perfect for growing families, or investors looking for strong rental potential. Set on a generously sized lot, the home features great curb appeal with a classic rancher design, a covered front porch, and mature landscaping. Inside, large windows bring in natural light throughout the living areas, creating a bright and comfortable atmosphere. The practical floor plan offers easy one level living, with additional potential in the lower level for storage, recreation, or future updates. Outside, the property includes ample yard space ideal for gardening, play, or outdoor entertaining. A covered carport provides convenient parking, while the driveway offers additional space for multiple vehicles. Located steps from schools, parks, transit, shopping, and all the amenities of Rutland, this home provides exceptional value in a rapidly growing area of Kelowna. Whether you're looking to move right in or add your personal touch, 250 Husch Road is a solid opportunity in a fantastic neighbourhood. (id:39198)
Property Details
Interior
Features
Main level Floor
Other
12' x 28'Bedroom
11' x 11'Full bathroom
4' x 8'Partial bathroom
3' x 4'Property History
26





