1005 MITCHELL ROAD, Kelowna, British Columbia V1X3W7
Contact us about this property
Highlights
Estimated valueThis is the price Wahi expects this property to sell for.
The calculation is powered by our Instant Home Value Estimate, which uses current market and property price trends to estimate your home’s value with a 90% accuracy rate.Not available
Price/Sqft$423/sqft
Monthly cost
Open Calculator
Description
Fantastic opportunity in the beautiful neighbourhood of Rutland South! Situated within easy walking distance to an elementary school, on a flat 0.20 acre lot, this 4 bedroom, 2 bathroom home offers exceptional flexibility with 3 bedrooms and 1 full bath on the main floor, an ideal layout for families, plus a bright 1 bedroom, 1 bathroom basement suite perfect for extended family or mortgage helper potential. The main level features an open kitchen with island, great for gathering and entertaining, flowing seamlessly to a large deck overlooking a giant flat yard and spacious property. With neighbouring properties recently assembled and currently being developed into townhomes, this property offers exciting future development and holding potential. Live in, rent out, or hold for future upside, the options here are strong. (id:39198)
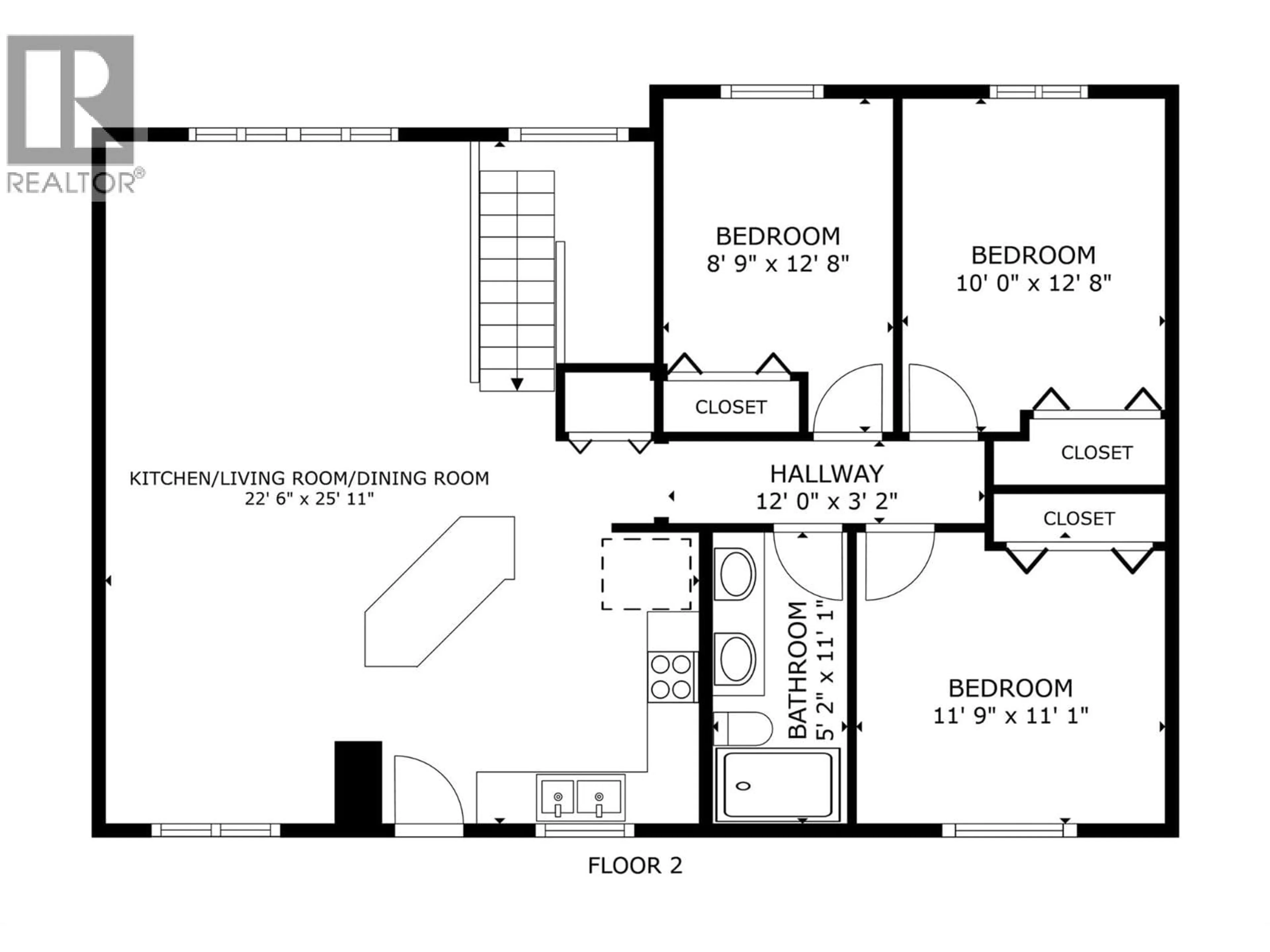
Property Details
Interior
Features
Additional Accommodation Floor
Kitchen
8'0'' x 11'0''Primary Bedroom
8'0'' x 11'1''Living room
12'0'' x 15'11''Full bathroom
Exterior
Parking
Garage spaces -
Garage type -
Total parking spaces 3
Property History
41





