573 CLIFTON COURT, Kelowna, British Columbia V1V0B7
Contact us about this property
Highlights
Estimated valueThis is the price Wahi expects this property to sell for.
The calculation is powered by our Instant Home Value Estimate, which uses current market and property price trends to estimate your home’s value with a 90% accuracy rate.Not available
Price/Sqft$631/sqft
Monthly cost
Open Calculator
Description
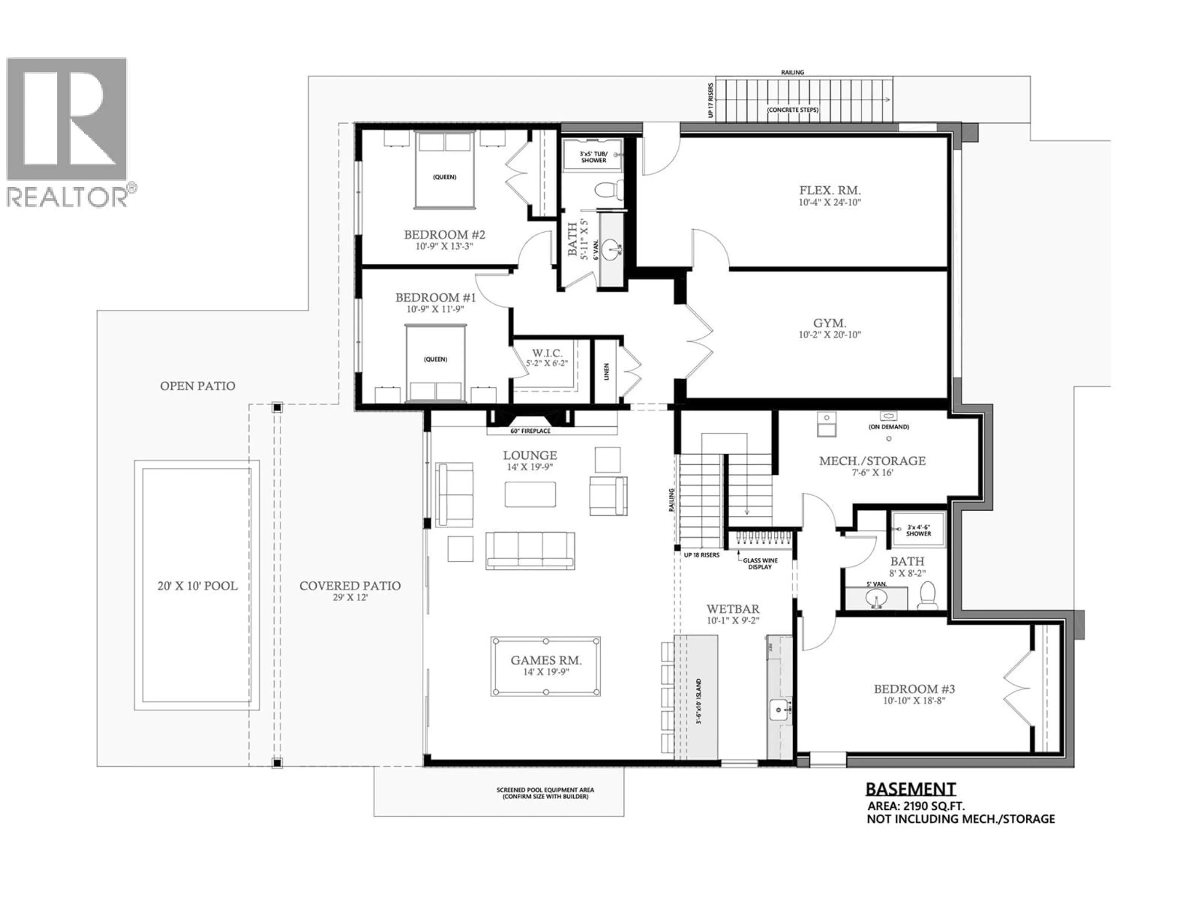
Stunning lake views from this nearly completed home on the most private street in North Clifton Estates. This 4110 square foot luxury home features a salt water pool with an auto cover, yard space, a 2.5 car garage, plus driveway space for 2 cars. Enjoy the quiet location beside the mountain with endless hiking trails, and yet still be only an 8 minute drive to Kelowna's lively downtown core. Featuring 4 bedrooms, 3.5 bathrooms and an office, this home will be open concept and have a modern organic feel. The home will have a climate controlled wine room, 2 fireplaces with custom finishes, soaring ceilings and hardwood floors on the main level. Extra luxuries include built in speakers, a security system, epoxy floors in the garage and a 2 zoned heating and cooling system. Professional landscaping will include a fenced yard, with room for garden boxes or extra space for the dogs and kids, and low maintenance, irrigated plantings with syn lawn- which means no mowing:) (id:39198)
Property Details
Interior
Features
Lower level Floor
Other
24'10'' x 10'4''Gym
20'10'' x 10'2''3pc Bathroom
4pc Bathroom
Exterior
Features
Parking
Garage spaces -
Garage type -
Total parking spaces 4
Property History
33





