9 - 4450 POSTILL DRIVE, Kelowna, British Columbia V1X7T9
Contact us about this property
Highlights
Estimated valueThis is the price Wahi expects this property to sell for.
The calculation is powered by our Instant Home Value Estimate, which uses current market and property price trends to estimate your home’s value with a 90% accuracy rate.Not available
Price/Sqft$327/sqft
Monthly cost
Open Calculator
Description
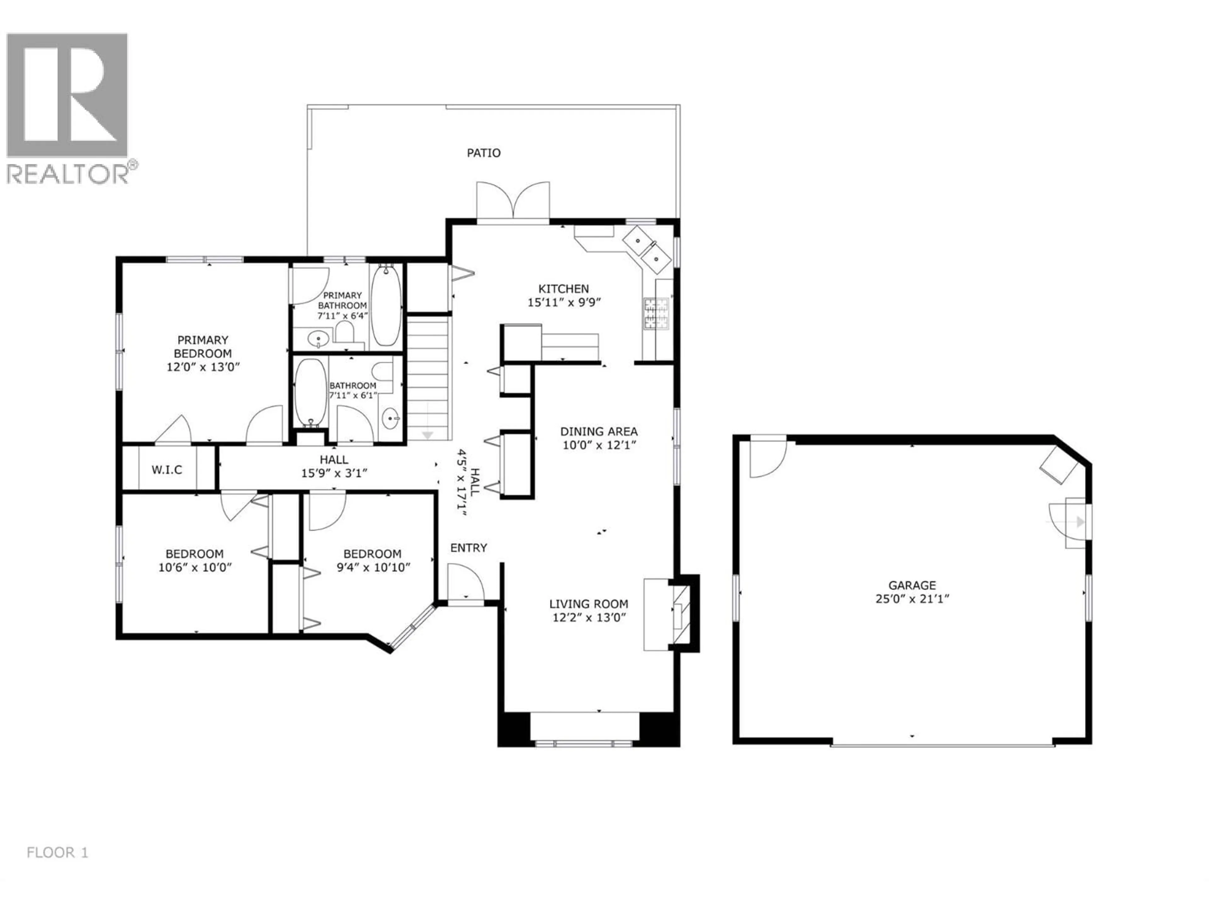
FANTASTIC FAMILY HOME in the highly desirable Country Rhodes community in Ellison! This well-maintained 4-bedroom, 3 full-bathroom home offers a great layout and is ideally located in the upper portion of the neighbourhood on a quiet no-thru street. The bright kitchen features ample cabinetry and counter space, a large walk-in pantry, and stainless steel appliances including an induction range. French doors lead to the back patio and yard with beautiful views of the privately owned ALR hillside providing an incredible space for entertaining. A separate dining room opens to the inviting living room with a cozy gas fireplace and charming barn door detail. The main floor also includes a spacious primary bedroom with a 4-piece ensuite and walk-in closet, plus two additional bedrooms and another full 4-piece bathroom. Downstairs offers a large family room, generous fourth bedroom, full 3-piece bath with glass shower, and a huge laundry room with closet and window that could convert to a fifth bedroom. Enjoy the large, flat, fully fenced and irrigated yard, OVERSIZED DOUBLE GARAGE, and ample parking. Roof replaced in 2023 and furnace replaced in 2022. Low $180/month strata includes park, playground, hall, pool, water, garbage, snow removal, and RV storage. Close to schools, shopping, UBCO, airport and more. 2 Pets welcome with no size restrictions! (id:39198)
Property Details
Interior
Features
Basement Floor
Laundry room
12'9'' x 13'8''3pc Bathroom
6'9'' x 10'9''Bedroom
12'9'' x 13'8''Family room
15'0'' x 26'1''Exterior
Features
Parking
Garage spaces -
Garage type -
Total parking spaces 5
Property History
45




