143 - 2550 HOLLYWOOD ROAD NORTH, Kelowna, British Columbia V1V2S6
Contact us about this property
Highlights
Estimated valueThis is the price Wahi expects this property to sell for.
The calculation is powered by our Instant Home Value Estimate, which uses current market and property price trends to estimate your home’s value with a 90% accuracy rate.Not available
Price/Sqft$508/sqft
Monthly cost
Open Calculator
Description
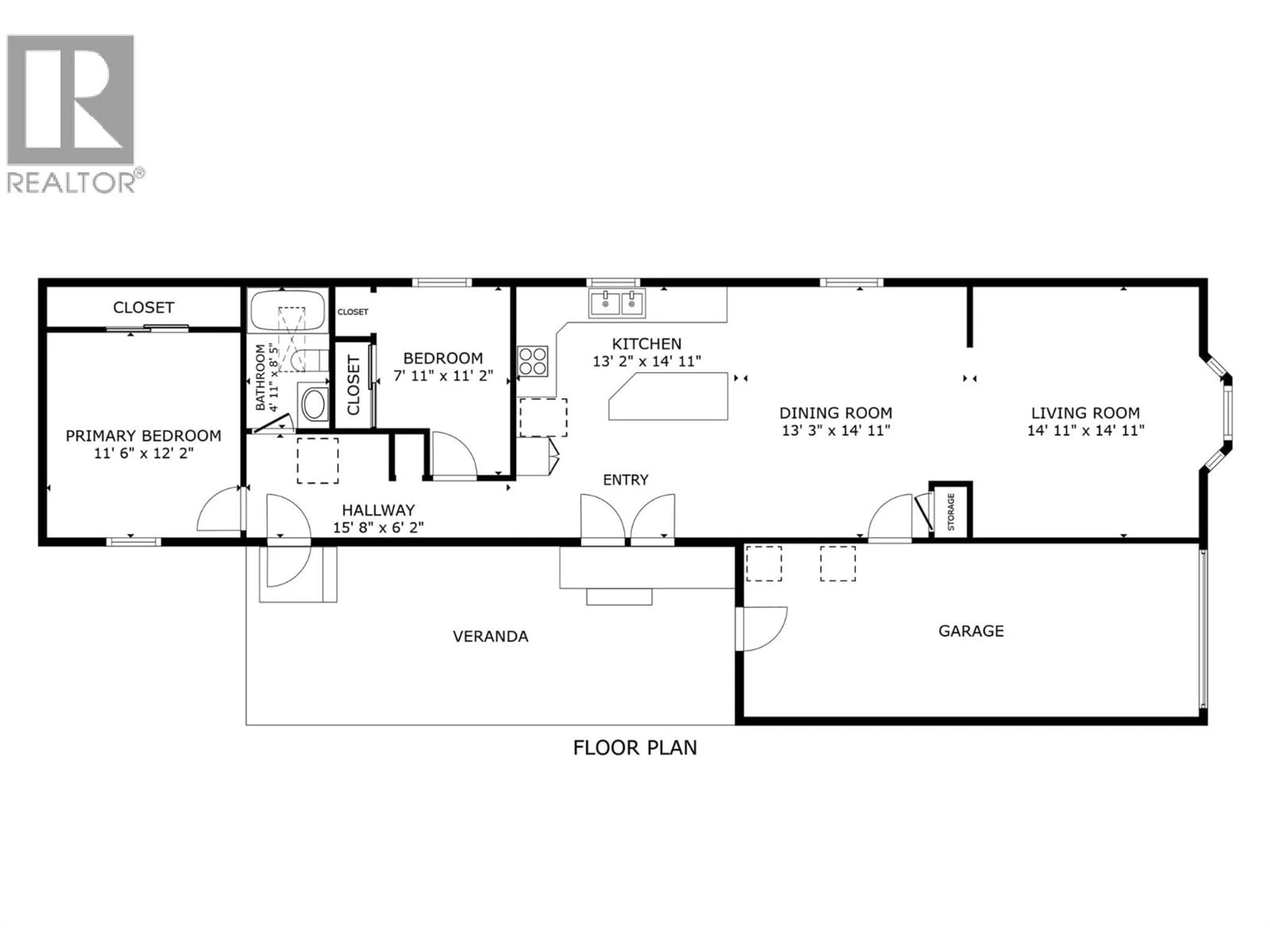
*** OPEN HOUSE SUNDAY 1st February 2026 1-3PM *** A fantastic opportunity for first-time buyers, investors or families looking to enter the market in the desirable College Heights location. This well-appointed home offers two bedrooms and one bathroom with an open-concept living area featuring a bay window that fills the space with natural light. The generous dining area flows seamlessly into the open-plan kitchen. Additional features include forced-air heating with central air conditioning, Underground irrigation, central vacuum rough-in, an all-in-one washer and dryer, vaulted 9-foot ceilings and a skylight in the bathroom. Step outside to a large, private patio and garden area, perfect for relaxing or entertaining. The fully fenced yard offers excellent privacy, with ample garden space for flowers, vegetables, or outdoor enjoyment, and includes a hot tub for year-round use. Parking is well accommodated with two driveway spaces plus a single-car garage. Enjoy no pet restrictions and a low monthly bare land strata fee of just $145. Conveniently tucked away near the UBC Okanagan, KGH airport and local amenities. Outside, this home offers beautiful mountain views and stunning Okanagan sunsets. A great alternative to renting, own your own home today! (id:39198)
Property Details
Interior
Features
Main level Floor
Kitchen
14'8'' x 12'Other
26' x 19'4''Other
23' x 12'4''Primary Bedroom
12' x 11'4''Exterior
Parking
Garage spaces -
Garage type -
Total parking spaces 3
Property History
30




