758 JOSSELYN COURT, Kelowna, British Columbia V1X6A4
Contact us about this property
Highlights
Estimated valueThis is the price Wahi expects this property to sell for.
The calculation is powered by our Instant Home Value Estimate, which uses current market and property price trends to estimate your home’s value with a 90% accuracy rate.Not available
Price/Sqft$409/sqft
Monthly cost
Open Calculator
Description
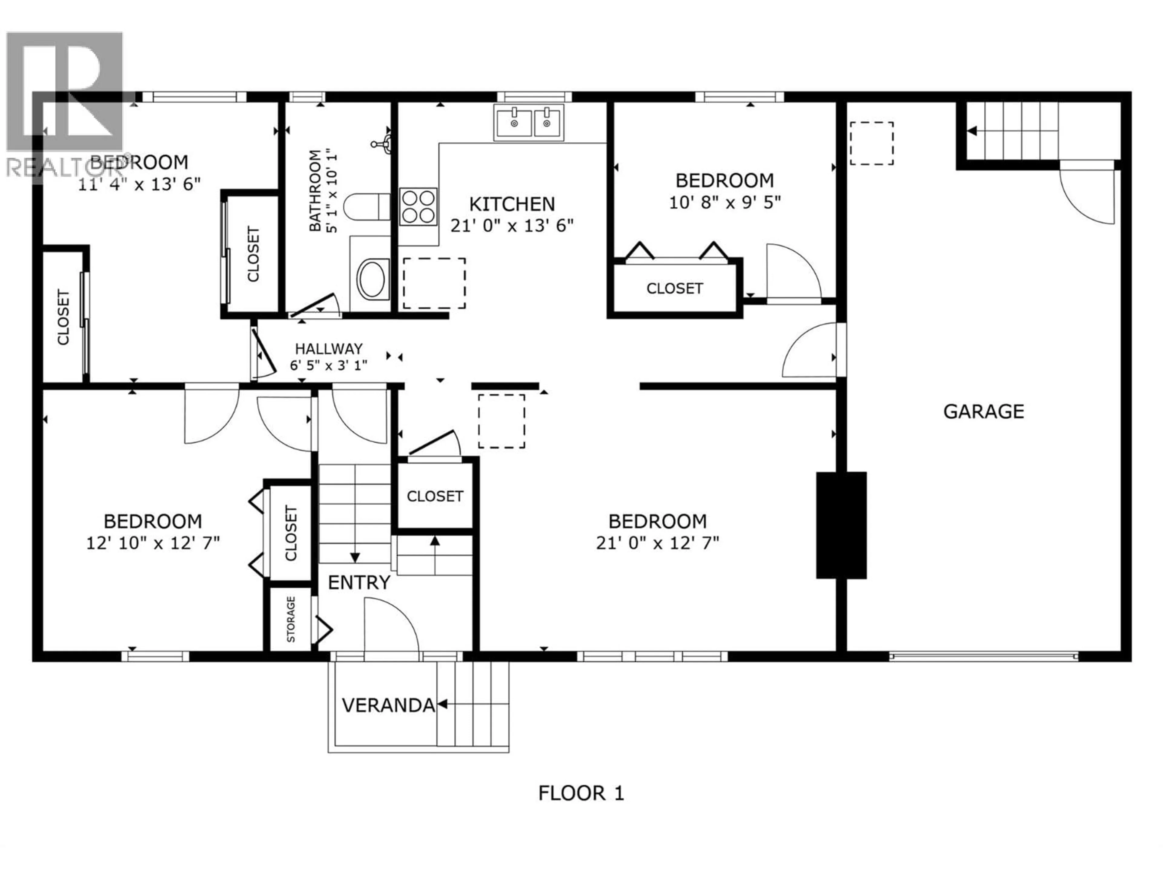
Welcome to 758 Josselyn Court! A rare Rutland gem offering space, versatility, and outstanding long-term potential. Situated on a generous 0.21-acre corner lot in a quiet, family-friendly cul-de-sac, this 5-bedroom, 4-bathroom home delivers 2,071 sq. ft. of comfortable living with endless possibilities. The property includes a 2-bedroom legal suite, making it ideal for multi-generational living, rental income, or holding as a smart investment. Zoned MF1, this home also presents an exciting opportunity for future redevelopment, adding exceptional value in one of Kelowna’s fastest-growing neighbourhoods. Inside, you’ll find a bright, functional layout with spacious bedrooms and plenty of room to update, personalize, or expand. Outside is where this property truly shines — a large, fully usable yard perfect for kids, pets, entertaining, gardening, or even building something new down the road. A huge covered deck, ample parking, and a single-car garage add everyday convenience and flexibility. Located just minutes from schools, shopping, parks, recreation, and transit, this home offers the perfect balance of quiet neighbourhood living with easy access to all amenities. Whether you’re looking to raise a family, generate income, or secure a high-potential redevelopment property, 758 Josselyn Court checks all the boxes. Please note: Photos have been digitally decluttered to better showcase the space. (id:39198)
Property Details
Interior
Features
Additional Accommodation Floor
Bedroom
10'2'' x 7'5''Bedroom
12'8'' x 6'3''Full bathroom
Kitchen
9'9'' x 12'9''Exterior
Parking
Garage spaces -
Garage type -
Total parking spaces 5
Property History
40





