348 - 6833 MADRID WAY, Kelowna, British Columbia V1Z3R8
Contact us about this property
Highlights
Estimated valueThis is the price Wahi expects this property to sell for.
The calculation is powered by our Instant Home Value Estimate, which uses current market and property price trends to estimate your home’s value with a 90% accuracy rate.Not available
Price/Sqft$558/sqft
Monthly cost
Open Calculator
Description
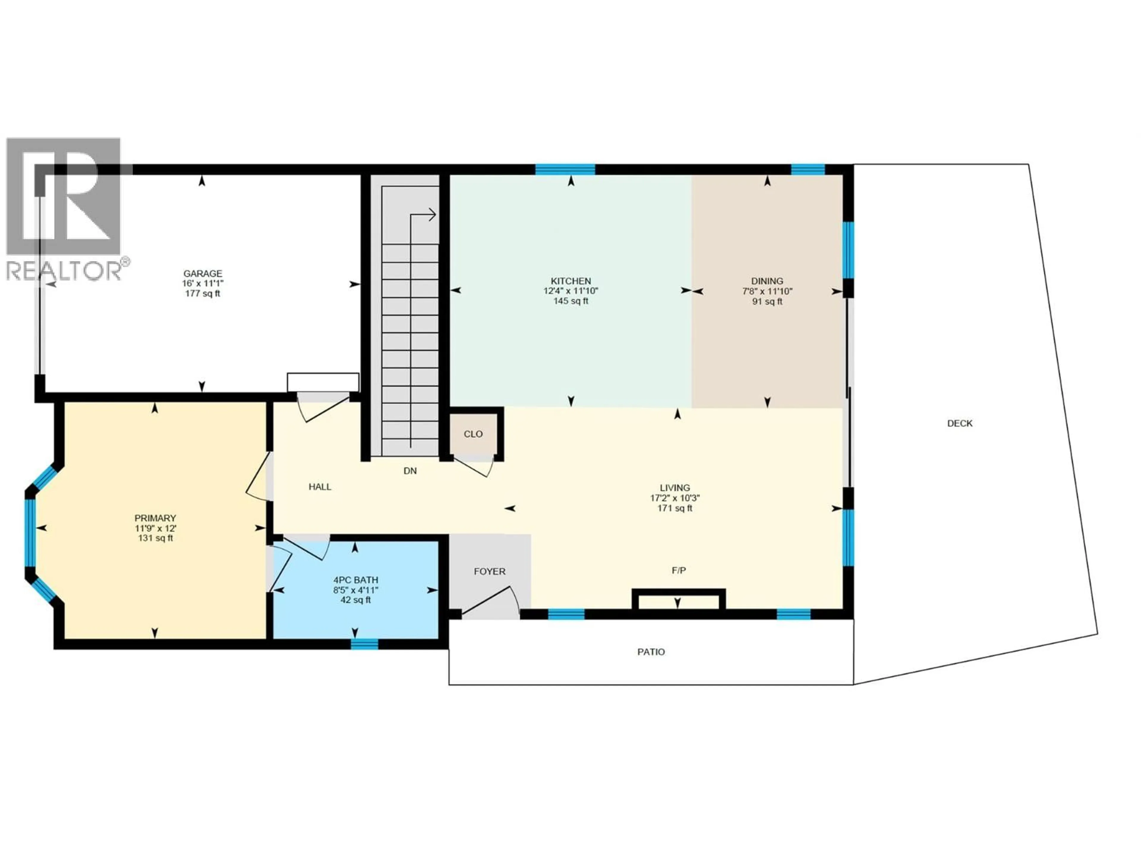
OPEN HOUSE SATURDAY MARCH 21, 12:00-2:00 PM. Experience the quintessential Okanagan lifestyle in this stunning, newer walk-out rancher perfectly positioned within the highly sought-after La Casa Lakeside Resort. Designed for effortless comfort and versatility, the bright, open-concept layout features a main-floor primary suite and bathroom. The large kitchen, dining, and living areas are designed for effortless entertaining and flooded with natural light. Downstairs you will find a flexible den easily converted into a third bedroom or home office, along with another bedroom and bathroom. This home is thoughtfully equipped, boasting a single garage with an EV CHARGER and a home already pre-wired for a GENERATOR. New Home Warranty still applies. This is a great revenue property, or the perfect lakeside cottage for family, while the location offers some of the best lakeside amenities in the Okanagan; private beach access, 100-slip marina with boat launch, an Aqua Park for the kids, 2 pools and 3 luxury hot tubs, an 18-hole mini-golf course, tennis and pickleball courts, beach volleyball, a children's playground, miles of surrounding hiking, biking, and ATV trails, a dedicated dog beach, a general store, restaurant, and private security for the ultimate gated experience. With short-term rentals allowed, this property represents both a premier vacation retreat and a savvy investment opportunity in one of the region’s most vibrant lakeside communities. Quick possession possible. (id:39198)
Property Details
Interior
Features
Lower level Floor
Den
9' x 12'Office
9' x 8'Bedroom
11' x 10'Full bathroom
5' x 9'Exterior
Parking
Garage spaces -
Garage type -
Total parking spaces 1
Property History
64




