403 8TH S STREET, Kaslo, British Columbia V0G1M0
Contact us about this property
Highlights
Estimated valueThis is the price Wahi expects this property to sell for.
The calculation is powered by our Instant Home Value Estimate, which uses current market and property price trends to estimate your home’s value with a 90% accuracy rate.Not available
Price/Sqft$355/sqft
Monthly cost
Open Calculator
Description
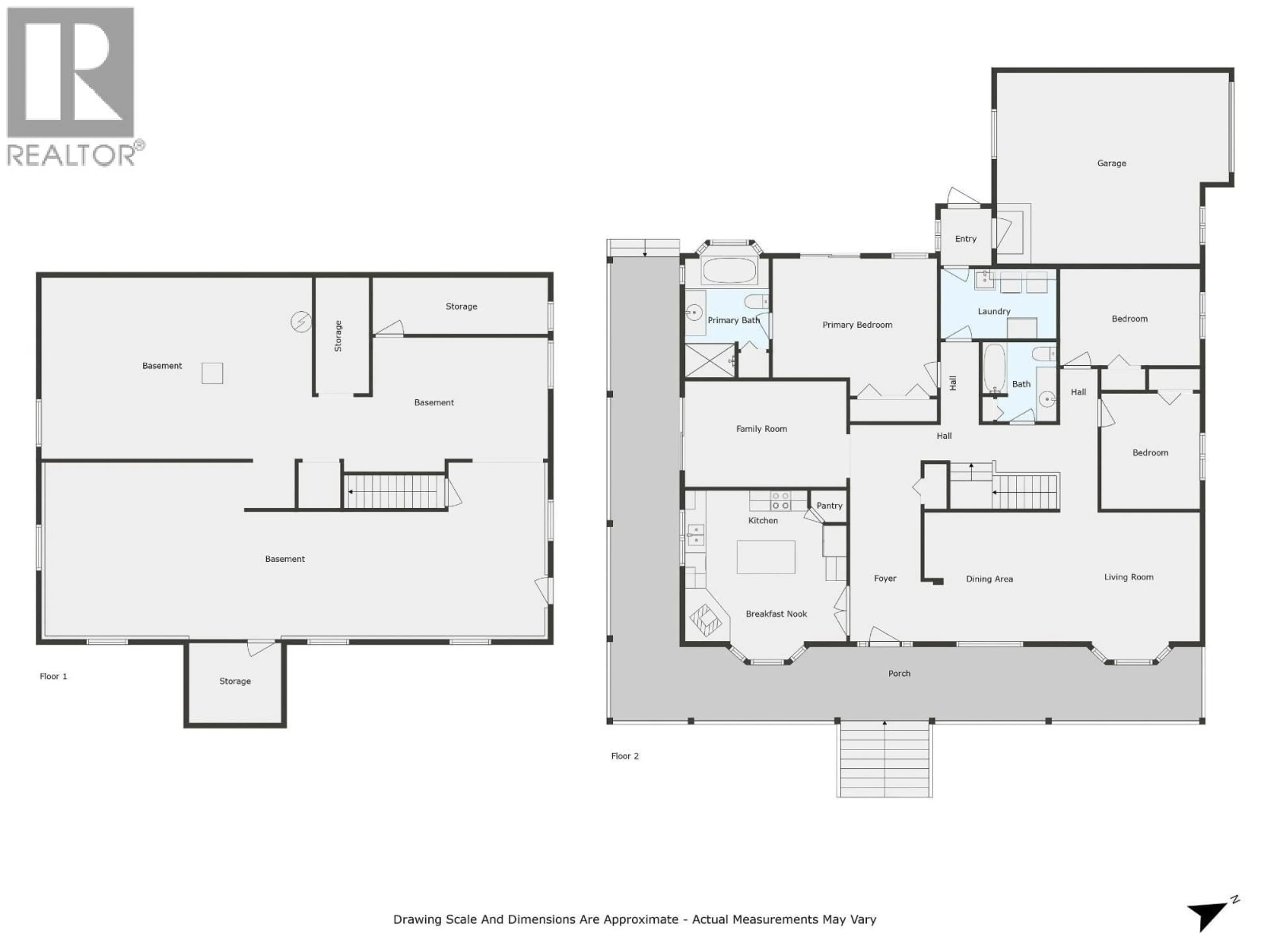
This well maintained 3-bedroom, 2-bathroom home offers approximately 3,560 sq ft of living space and includes an attached single garage and workshop. Situated on a 0.29-acre corner lot in upper Kaslo, the property features a wrap-around veranda with mountain views and a landscaped yard with established fruit trees and an organic garden. The home includes a large dining room and a separate office/TV space located next to the kitchen. The spacious primary bedroom features an ensuite bathroom with a large soaker tub. Recent 2025 updates include a brand-new wood stove and a recently serviced septic system. The full unfinished basement brings additional space and flexibility, with a separate entrance and a roughed-in bathroom, providing potential for a future rental suite. Blueprints for further development are available. Conveniently located near downtown Kaslo, the home is within easy reach of shops, restaurants, the school, medical clinic, golf course, beaches, and nearby recreational trails. With its generous lot, spacious interior, and convenient location, this property offers a comfortable place to enjoy life in the Kootenays. (id:39198)
Property Details
Interior
Features
Main level Floor
Laundry room
6'9'' x 10'7''Workshop
7'8'' x 18'0''4pc Bathroom
Bedroom
9'4'' x 13'0''Exterior
Parking
Garage spaces -
Garage type -
Total parking spaces 3
Property History
69





