1137 36TH AVENUE NORTH, Creston, British Columbia V0B1G1
Contact us about this property
Highlights
Estimated valueThis is the price Wahi expects this property to sell for.
The calculation is powered by our Instant Home Value Estimate, which uses current market and property price trends to estimate your home’s value with a 90% accuracy rate.Not available
Price/Sqft$468/sqft
Monthly cost
Open Calculator
Description
On nearly 10 acres in Erickson this home is located on a quiet no thru road that backs onto crown land. Private and peaceful with room to spread out, yet only minutes to Creston amenities The current home is a tidy older 2 bed/1 bath mobile with a bright main living area and a WETT-certified wood stove for comfortable heat. Outside is a multi-level deck to sit, relax, and enjoy the scenery. The land is terraced with several benches and the upper bench opens to wide valley and mountain views and makes a great future building spot or shop site. A private, licensed spring provides gravity-fed water and irrigation for the gardens, and there is a well drilled on the property as well that could be re-activated with a little bit of work done to it. Outside spaces include garden beds, flowers, natural stone accents, a fire pit, and plenty of parking with an easy turnaround. Out of town, quiet, and spacious, this acreage lets you live now while you plan what’s next. Call your realtor and book a viewing today. (id:39198)
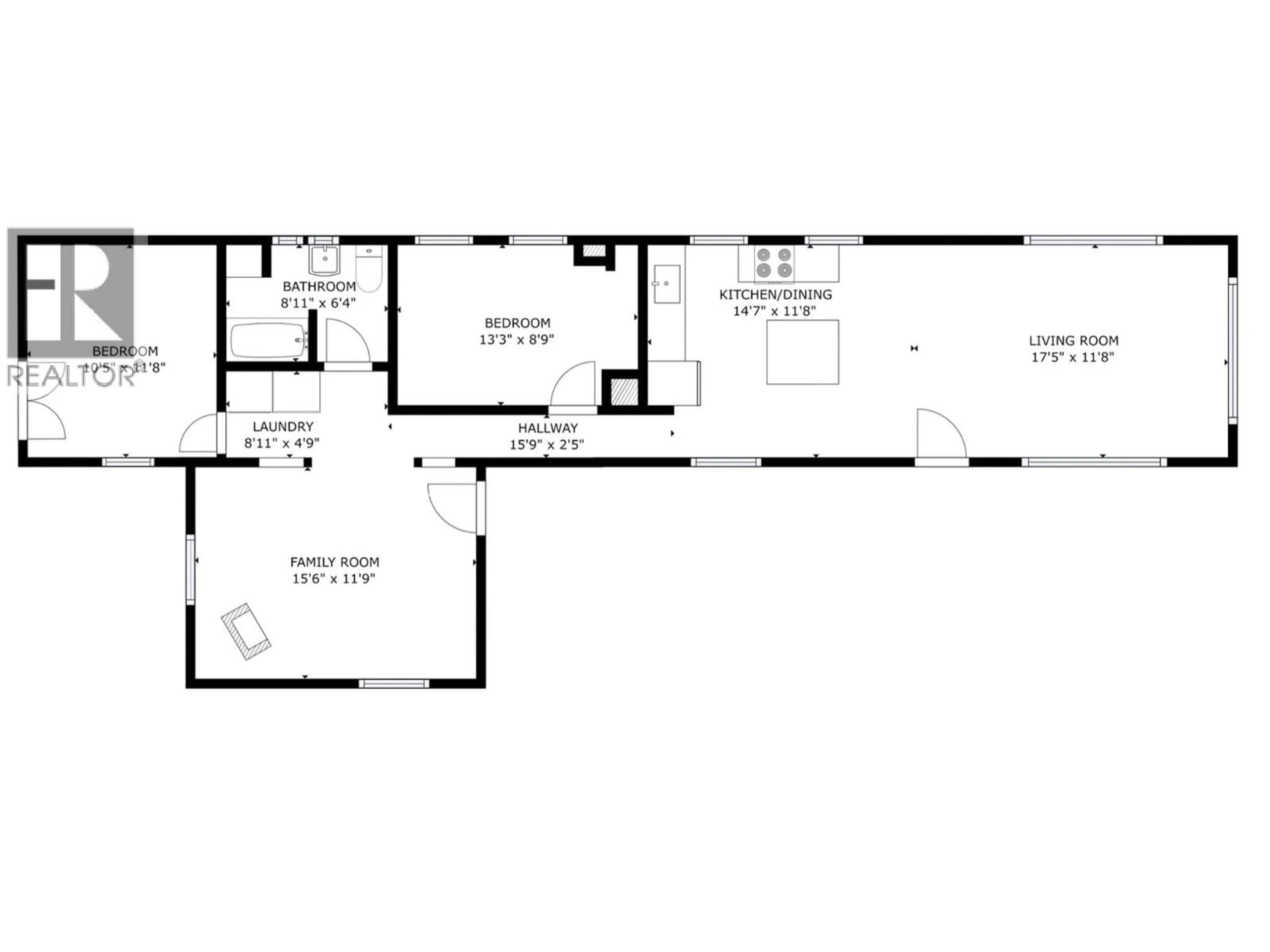
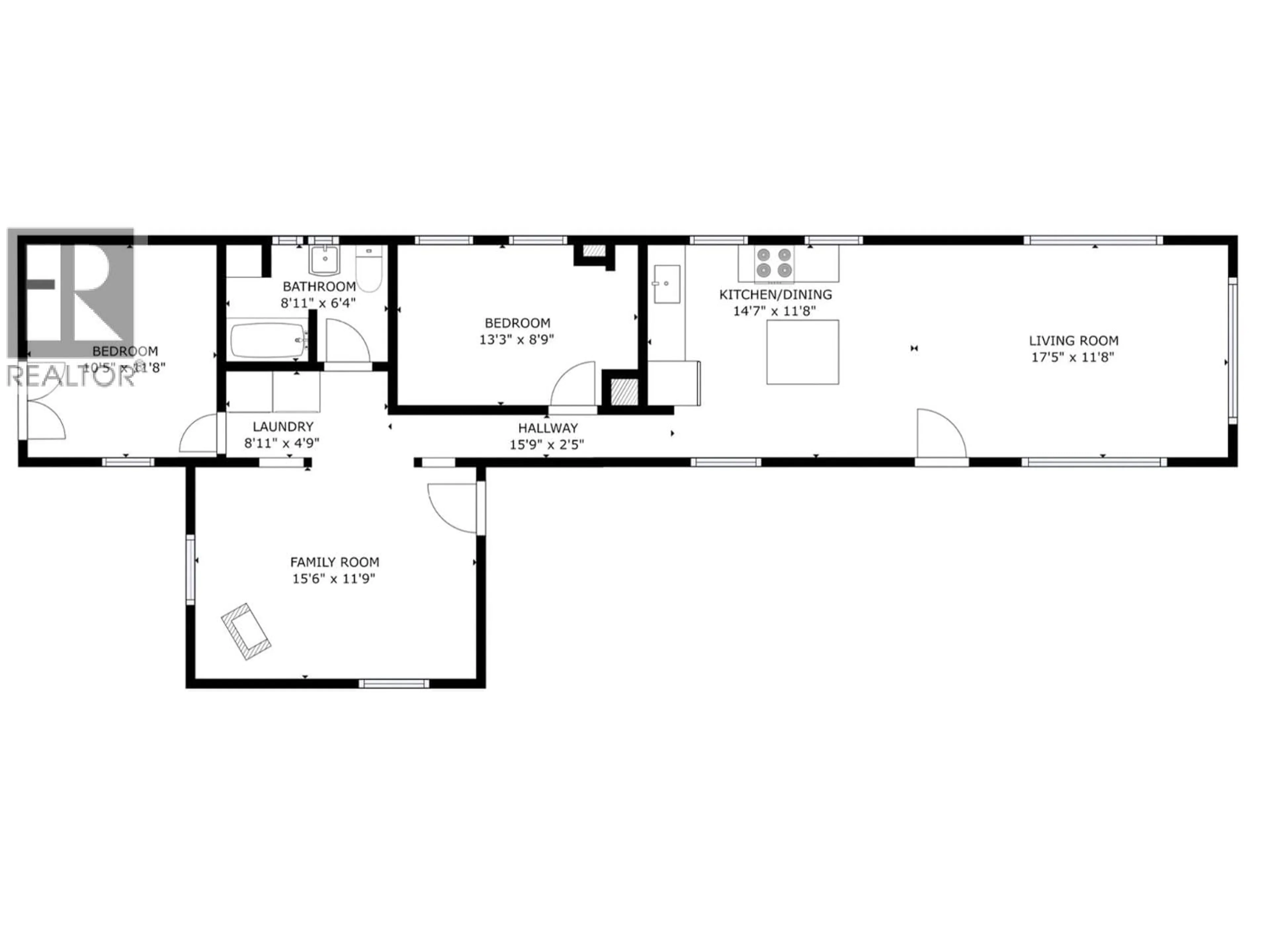
Property Details
Interior
Features
Main level Floor
Family room
15'7'' x 11'3''Primary Bedroom
11'4'' x 10'7''Full bathroom
6'2'' x 9'0''Bedroom
8'6'' x 13'6''Property History
40




