1445 BROOKE STREET, Victoria, British Columbia V8S1M4
Contact us about this property
Highlights
Estimated valueThis is the price Wahi expects this property to sell for.
The calculation is powered by our Instant Home Value Estimate, which uses current market and property price trends to estimate your home’s value with a 90% accuracy rate.Not available
Price/Sqft$504/sqft
Monthly cost
Open Calculator
Description
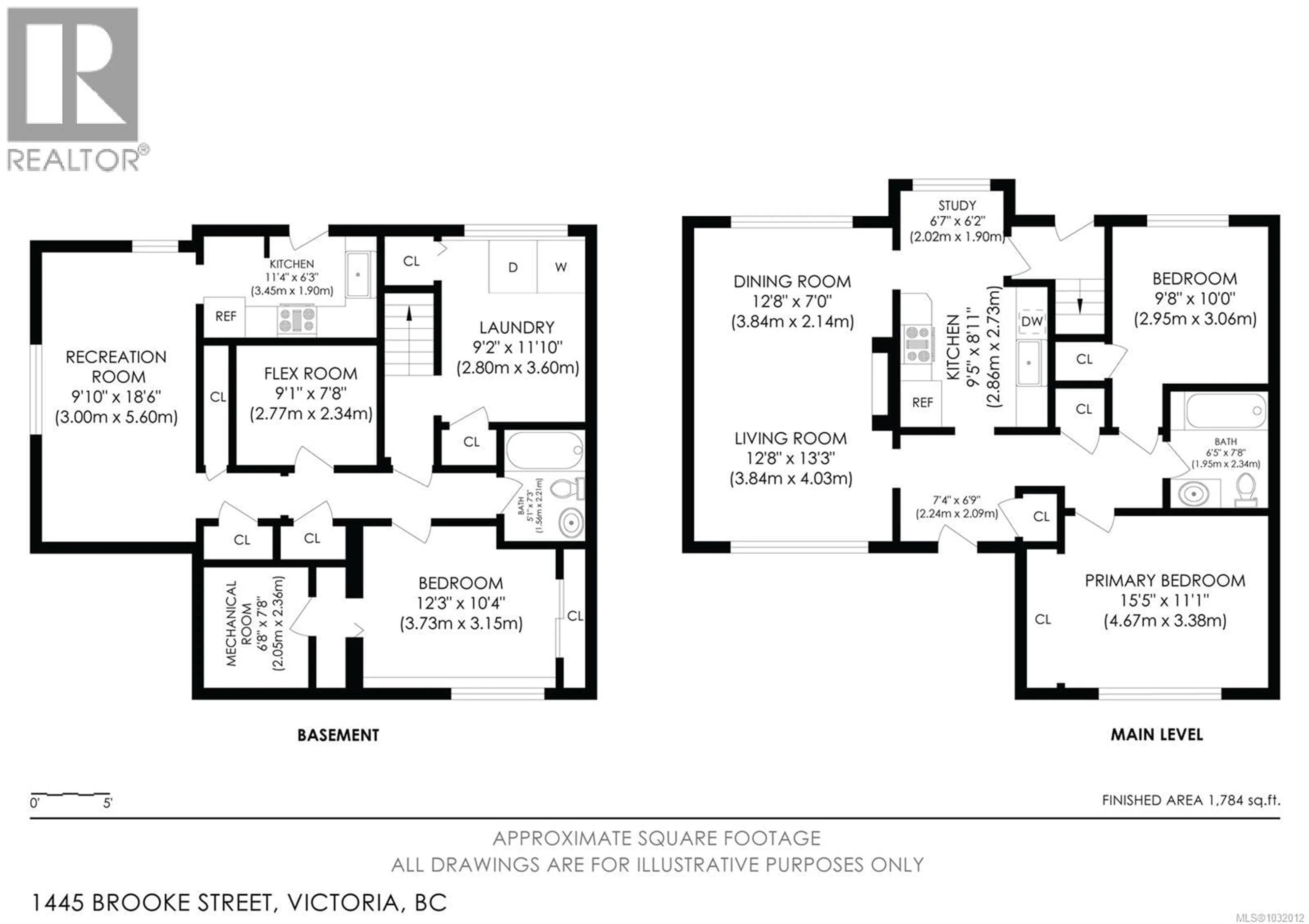
Prime Fairfield Opportunity! Welcome to 1445 Brooke Street, ideally located just steps to Brooke Street Park, Fairfield Plaza, and only minutes to the stunning Dallas Road waterfront at Ross Bay. This beautifully updated strata duplex blends classic charm with modern versatility, offering 3 bedrooms + den and 2 bathrooms, including a bright 2-bedroom main level with gleaming oak and fir hardwood floors, cozy wood-burning fireplace, updated kitchen, and stylish bath. The walk-out lower level features a self-contained 1-bedroom + den legal suite with its own hydro meter—perfect as a mortgage helper or extended family accommodation. Pride of ownership is evident throughout, with thoughtful updates and well-maintained spaces. Enjoy a sunny, private south-facing backyard and patio, ideal for relaxing or entertaining. A rare opportunity in one of Victoria’s most sought-after neighbourhoods, close to parks, top schools, amenities, and the oceanfront lifestyle Fairfield is known for. (id:39198)
Property Details
Interior
Features
Lower level Floor
Storage
8' x 7'Bathroom
Laundry room
12' x 9'Den
7'8 x 9'1Condo Details
Inclusions
Property History
43




