5301 SOOKE ROAD, Sooke, British Columbia V9Z0E8
Contact us about this property
Highlights
Estimated valueThis is the price Wahi expects this property to sell for.
The calculation is powered by our Instant Home Value Estimate, which uses current market and property price trends to estimate your home’s value with a 90% accuracy rate.Not available
Price/Sqft$578/sqft
Monthly cost
Open Calculator
Description
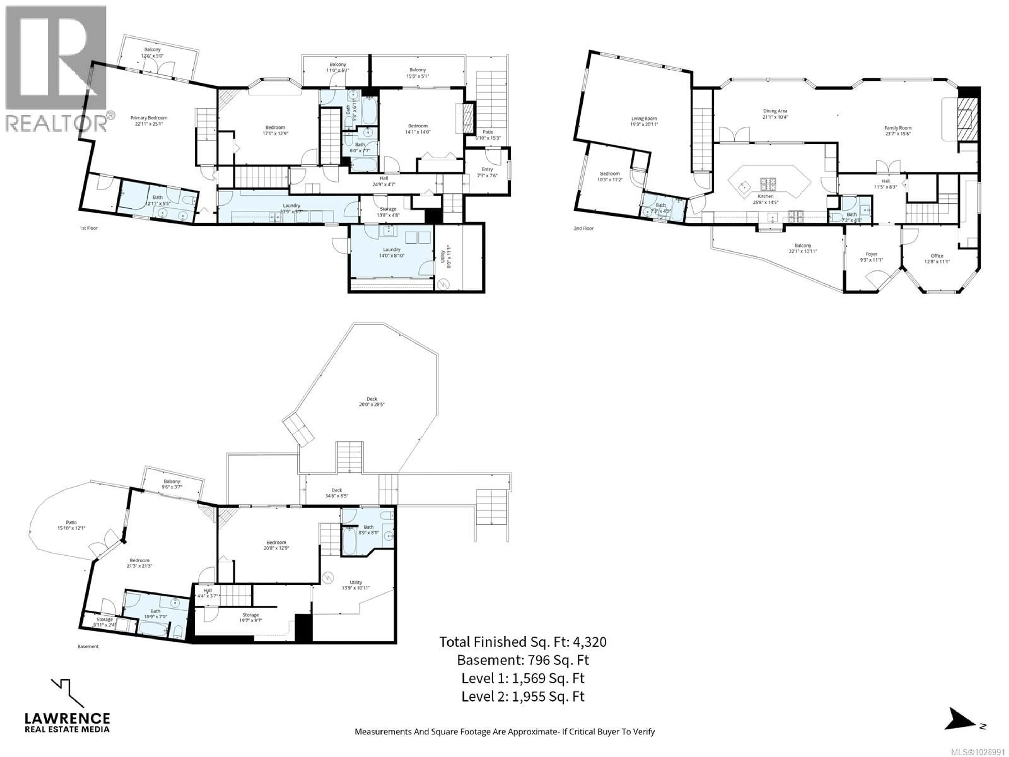
An Oceanfront Home For the Whole Family ! This 6 Bedroom 7 Bathroom 4300 SF home sits on an Impressive 32,600 SF Lot with Direct Ocean Views from Most Principal Rooms. The Feature List is extensive. Offering a Full Formal Dining Room with Direct Ocean Views, a Beautiful Living Room with Fireplace, Hardwood Flooring & Direct Ocean Views. The Kitchen is Large & Accommodating featuring a Commercial Class Gas Grill & Vent, Skylights, an Eating Bar for 5 & Ceramic Tile Flooring. The Six Bedrooms are All Large & Offer Full Ensuite Bathrooms, 4 Bedrooms have Fireplaces & Private Balconies. The Bedrooms are staggered on different floors & in different areas of this Large Home. This is Truly a Multi Generational Home, where the Whole Family can Live and Enjoy this Incredible Property Together. There is room to install an additional Kitchen if you want, as well. The Grounds include multiple flowered trees and bushes as well as fruit bearing trees. You have 400' of Oceanfront on this Property. This is a mystical property, when the town of Sooke and Sooke point will be covered in sea fog until noon or later, Sassenos, this property, is bathed in Sunlight. (id:39198)
Property Details
Interior
Features
Third level Floor
Balcony
16' x 18'Balcony
12' x 15'Bedroom
13' x 17'Bedroom
15' x 16'Exterior
Parking
Garage spaces -
Garage type -
Total parking spaces 6
Property History
39





