274 TRINCOMALI HEIGHTS, Salt Spring, British Columbia V8K1M9
Contact us about this property
Highlights
Estimated valueThis is the price Wahi expects this property to sell for.
The calculation is powered by our Instant Home Value Estimate, which uses current market and property price trends to estimate your home’s value with a 90% accuracy rate.Not available
Price/Sqft$797/sqft
Monthly cost
Open Calculator
Description
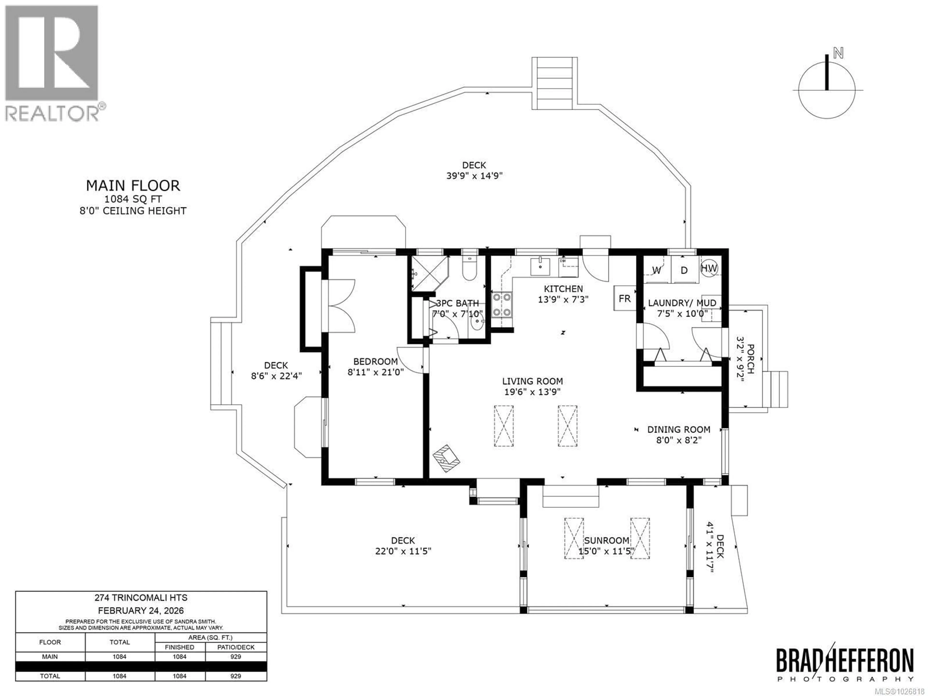
This sun soaked charming two acre retreat is quietly and privately positioned at the top of Trincomali Heights on a peaceful no-through road. The sweet, well maintained, one level, cottage style home features an open layout, including skylights and walls of windows welcoming abundant natural light and picturesque forest and garden views. The self-contained A-frame studio is a true bonus and is ideal a dedicated home office, or the perfect haven for artistic and creative work. Mentionable highlights include a durable metal roof, a newer wraparound sundeck, a heat pump for year-round comfort, and even a well-situated RV that remains with the property. Outdoors, the property includes extensive fenced garden areas, forested walking trails, and multiple outbuildings, including garden and wood sheds. Just moments from hiking trails and St Mary’s lake and a quick 10 minute drive to town. All the charm, natural beauty and inspiration for the creative soul! (id:39198)
Property Details
Interior
Features
Main level Floor
Porch
3 x 9Laundry room
7 x 10Bathroom
7 x 8Sunroom
15 x 11Exterior
Parking
Garage spaces -
Garage type -
Total parking spaces 2
Property History
35




