3738 TILLICUM ROAD, Saanich, British Columbia V8Z4H8
Contact us about this property
Highlights
Estimated valueThis is the price Wahi expects this property to sell for.
The calculation is powered by our Instant Home Value Estimate, which uses current market and property price trends to estimate your home’s value with a 90% accuracy rate.Not available
Price/Sqft$629/sqft
Monthly cost
Open Calculator
Description
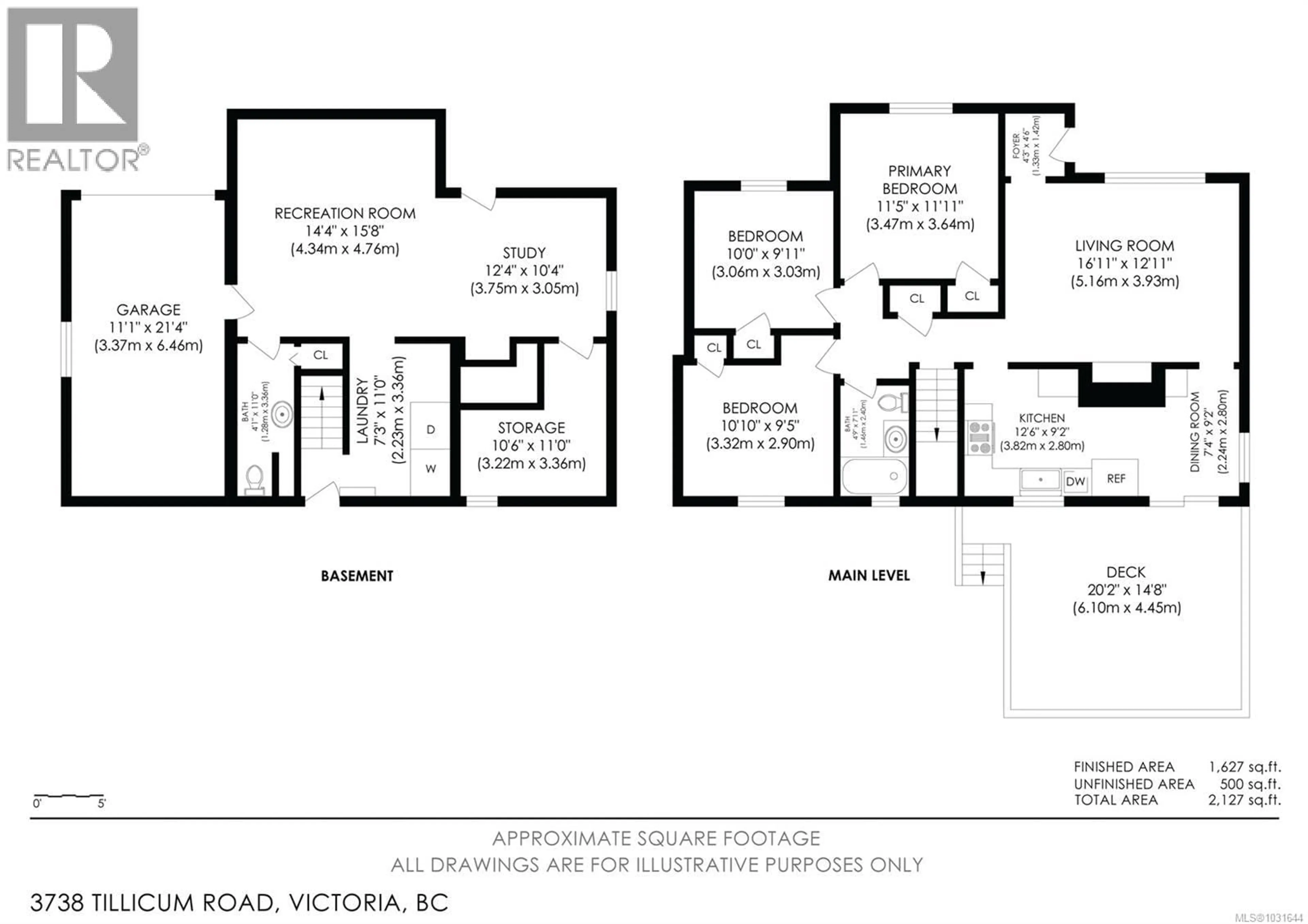
Positioned on an expansive lot this nicely updated 3-bed, 2-bath Saanich home offers incredible access to schools at every level, local shops, parks, transit hubs, and countless outdoor adventures. Thoughtfully renovated, this turnkey property welcomes you with an airy main floor featuring a sun-filled living room, a modernized kitchen flowing into a dining area leading to an oversized covered deck with hot tub hook-up, overlooking established gardens. The upper level features a complete 4-piece bath, and three comfortable bedrooms—including a generous primary suite. The lower level boasts a roomy recreation space, a substantial laundry area with storage, a half bathroom, and a flexible den perfect for remote work. The professionally painted exterior shines with an attached garage, plus extensive driveway parking for recreational vehicles, a secure perimeter fence, raised garden beds, a greenhouse, outdoor storage shed, and irrigation system. Don't miss out on this great buy! (id:39198)
Property Details
Interior
Features
Lower level Floor
Bathroom
Laundry room
7 x 11Storage
11 x 11Bonus Room
12 x 10Exterior
Parking
Garage spaces -
Garage type -
Total parking spaces 6
Property History
40




