565 CAMPBELL STREET, Tofino, British Columbia V0R2Z0
Contact us about this property
Highlights
Estimated valueThis is the price Wahi expects this property to sell for.
The calculation is powered by our Instant Home Value Estimate, which uses current market and property price trends to estimate your home’s value with a 90% accuracy rate.Not available
Price/Sqft$969/sqft
Monthly cost
Open Calculator
Description
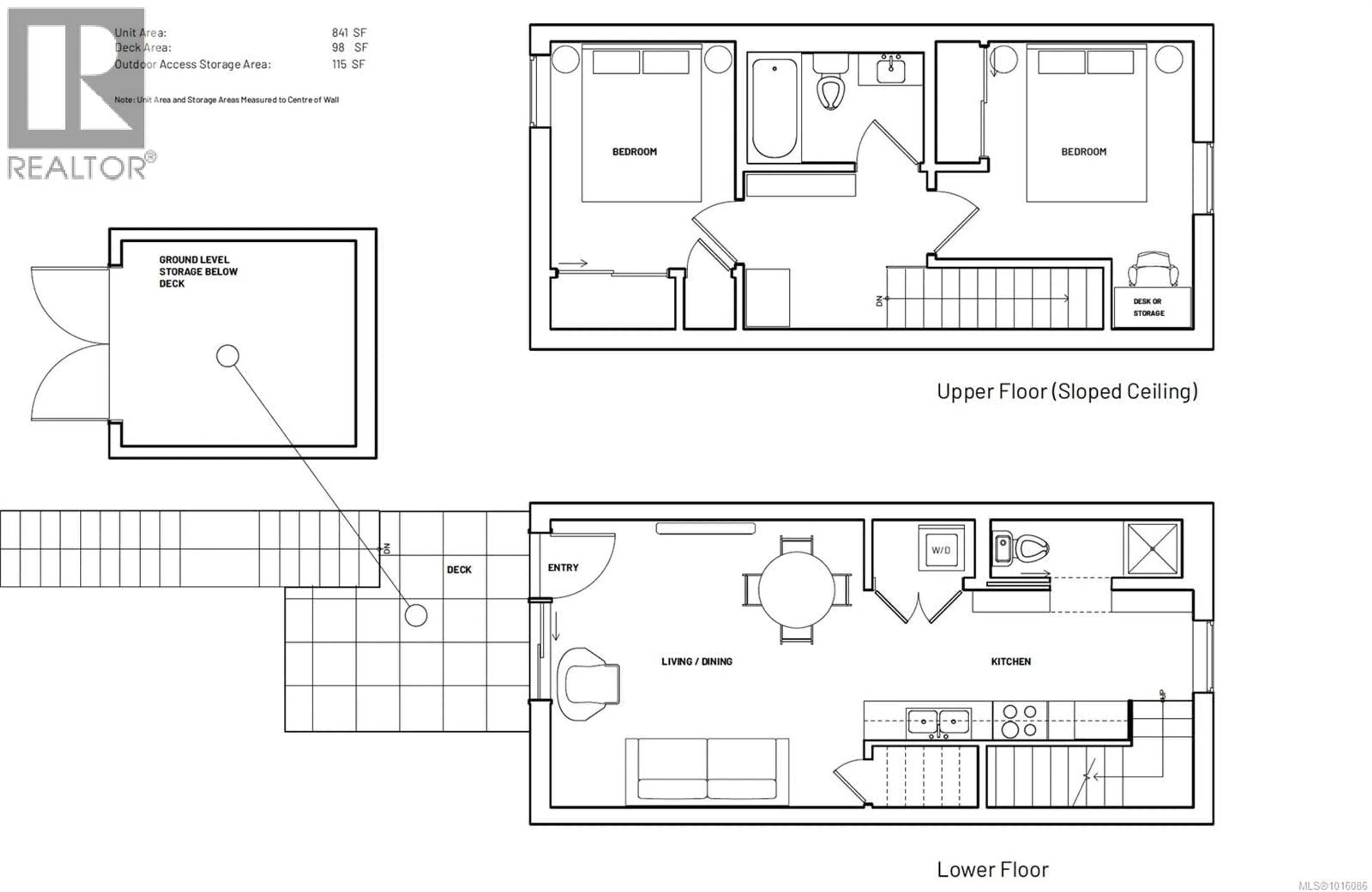
Dawnie brings a stunning collection of 2-bedroom townhomes to Tofino, minutes away from the downtown core. Finally, a space for Tofitians to call home. Practical, durable and quality spaces made with you in mind, and with the hope of bringing back community and connection—the kind where you know your neighbours and can walk to work. Corrugated metal cladding and gable roofs take inspiration from Tofino's working waterfront, giving the homes a sense of familiarity and strength. Large windows and decks open each space to light and fresh air, and generous outdoor storage ensures your surfboards, bikes and outdoor gear always have a space of their own. This unique offering is set to start construction very soon, and the move in date is currently estimated to be early fall 2027. Don't miss out on the newest development to come to Tofino. These wont last! (id:39198)
Property Details
Interior
Features
Main level Floor
Kitchen
12'2 x 5'2Bathroom
2'8 x 8'5Living room/Dining room
13'3 x 14'5Patio
9'8 x 9'8Exterior
Parking
Garage spaces -
Garage type -
Total parking spaces 1
Condo Details
Inclusions
Property History
 6
6




