4380 ANDERSON AVENUE, Port Alberni, British Columbia V9Y5B5
Contact us about this property
Highlights
Estimated valueThis is the price Wahi expects this property to sell for.
The calculation is powered by our Instant Home Value Estimate, which uses current market and property price trends to estimate your home’s value with a 90% accuracy rate.Not available
Price/Sqft$347/sqft
Monthly cost
Open Calculator
Description
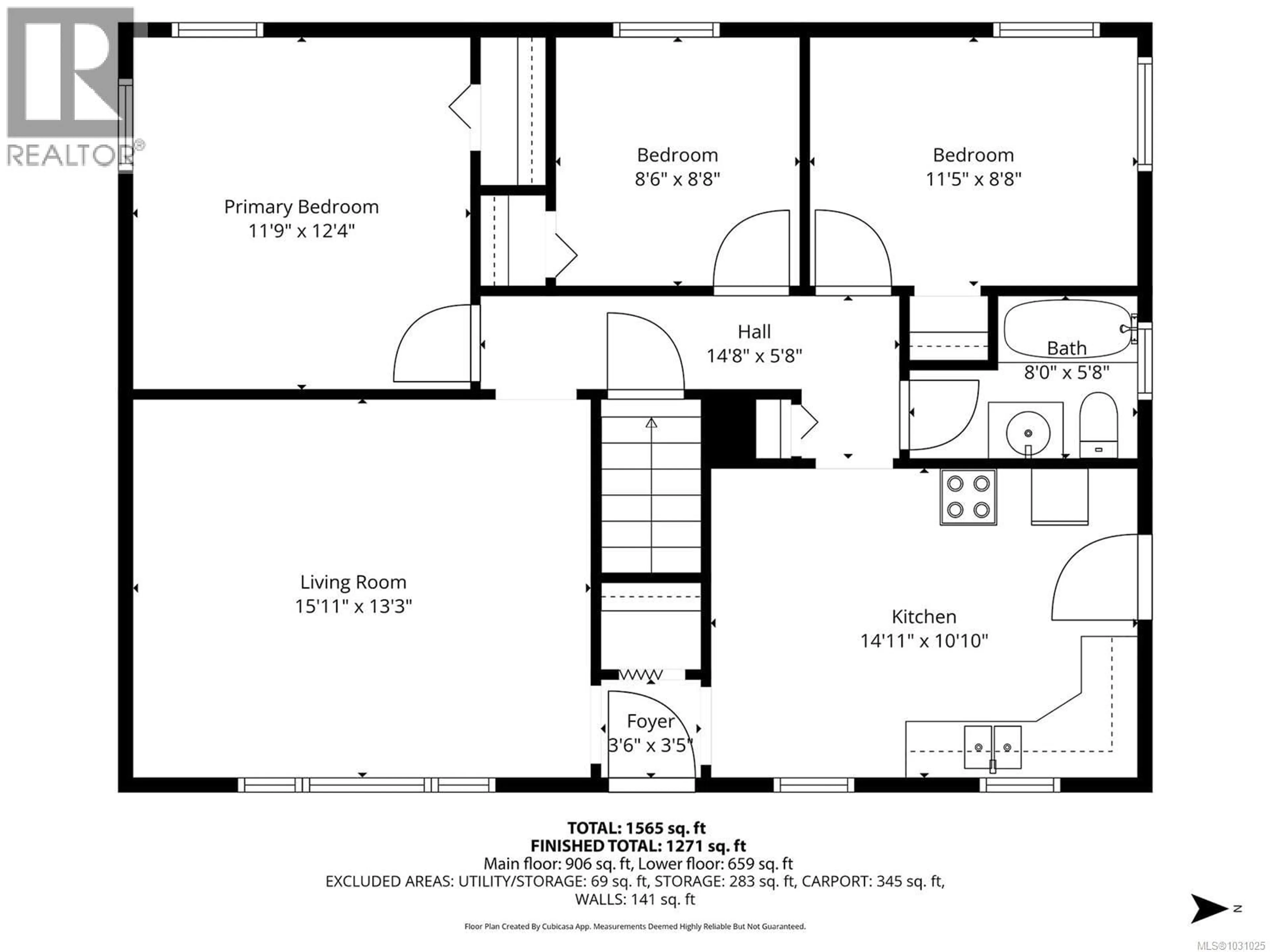
Welcome to 4380 Anderson Ave, a well-located and maintaned family home in a highly walkable Port Alberni neighbourhood. Just steps to Alberni District Secondary School, Wood Elementary School, North Island College, Bob Dailey Stadium, and the Alberni Valley Multiplex, with transit, shopping, and daily amenities nearby. This 4 bed, 1.5 bath home offers over 1,200 sq.ft. of finished space plus 500+ sq.ft. for storage. The lower level features an in-law type suite setup with a kitchen, living area, and bedroom/den. Updates include a new hot water tank (2023), updated appliances, and a mix of vinyl and aluminum windows. Flat, low-maintenance 7,700 sq.ft. lot with newer chain link fence, double rear gate, alley access, double carport, and ample parking for RVs, trailers, and boats, plus storage. Quiet, family-friendly area close to everything. Schedule your private showing today. All measurements and data are approximate and should be verified by the Buyer if important. (id:39198)
Property Details
Interior
Features
Main level Floor
Bathroom
5'8 x 8'0Other
5'8 x 14'8Kitchen
10'10 x 14'11Entrance
3'5 x 3'6Exterior
Parking
Garage spaces -
Garage type -
Total parking spaces 2
Property History
63




