400 Lakewood Dr, Strathmore, Alberta T0J 1Y0
Contact us about this property
Highlights
Estimated valueThis is the price Wahi expects this property to sell for.
The calculation is powered by our Instant Home Value Estimate, which uses current market and property price trends to estimate your home’s value with a 90% accuracy rate.Not available
Price/Sqft$329/sqft
Monthly cost
Open Calculator
Description
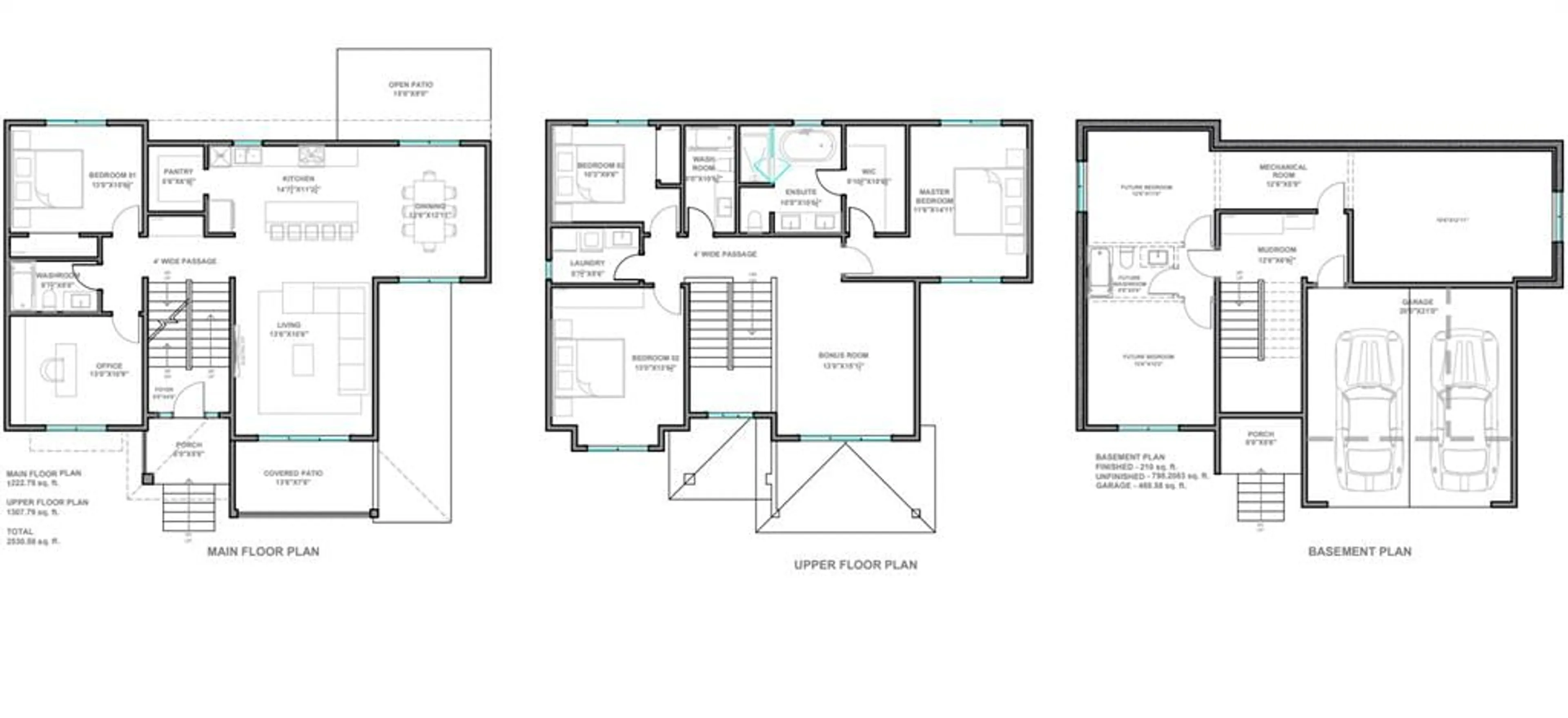
Welcome to 400 Lakewood Drive, a future build by Dhaduk Homes, perfectly positioned as a reverse walkout backing onto the canal. Thoughtfully designed to capture east morning light and west sunset views over the pond and lake out to the mountains, this home blends everyday function with elevated living. Step inside to a light filled kitchen where a large island becomes the natural gathering place. A generous walk in pantry keeps everything tucked away, while the dining room is wrapped in windows and opens to an east facing patio overlooking the canal—a space where mornings feel calm and connected to nature. The spacious living room, anchored by a fireplace, opens onto a covered west facing patio with sweeping pond and lake views. Down the hall, a bedroom on the east side, a four piece bath, and a west facing office provide flexibility for guests, family, or working from home. Upstairs, a large west facing bonus room captures stunning views over the ponds and lake, extending to the Rocky Mountains and beyond. The primary suite, with windows on both east and west sides overlooking the ponds, lake, and mountains, offers a spacious walk in closet and a spa inspired five piece ensuite designed for true unwinding. Two additional bedrooms, a four piece bath, and a dedicated laundry room complete the upper level. The reverse walkout basement includes a finished mudroom and open space ready for your future vision, whether for additional family living or a home based business. A 20 x 21 garage adds everyday convenience. 400 Lakewood Drive is an opportunity to build with intention, backing onto water, surrounded by breathtaking views, and finished with the craftsmanship and care you expect from Dhaduk Homes.
Property Details
Interior
Features
Upper Floor
Walk-In Closet
5`10" x 10`6"Bonus Room
13`6" x 15`2"Bedroom - Primary
11`6" x 14`11"Bedroom
10`3" x 9`6"Exterior
Features
Parking
Garage spaces 3
Garage type -
Other parking spaces 2
Total parking spaces 5
Property History
8






