Contact us about this property
Highlights
Estimated valueThis is the price Wahi expects this property to sell for.
The calculation is powered by our Instant Home Value Estimate, which uses current market and property price trends to estimate your home’s value with a 90% accuracy rate.Not available
Price/Sqft$289/sqft
Monthly cost
Open Calculator
Description
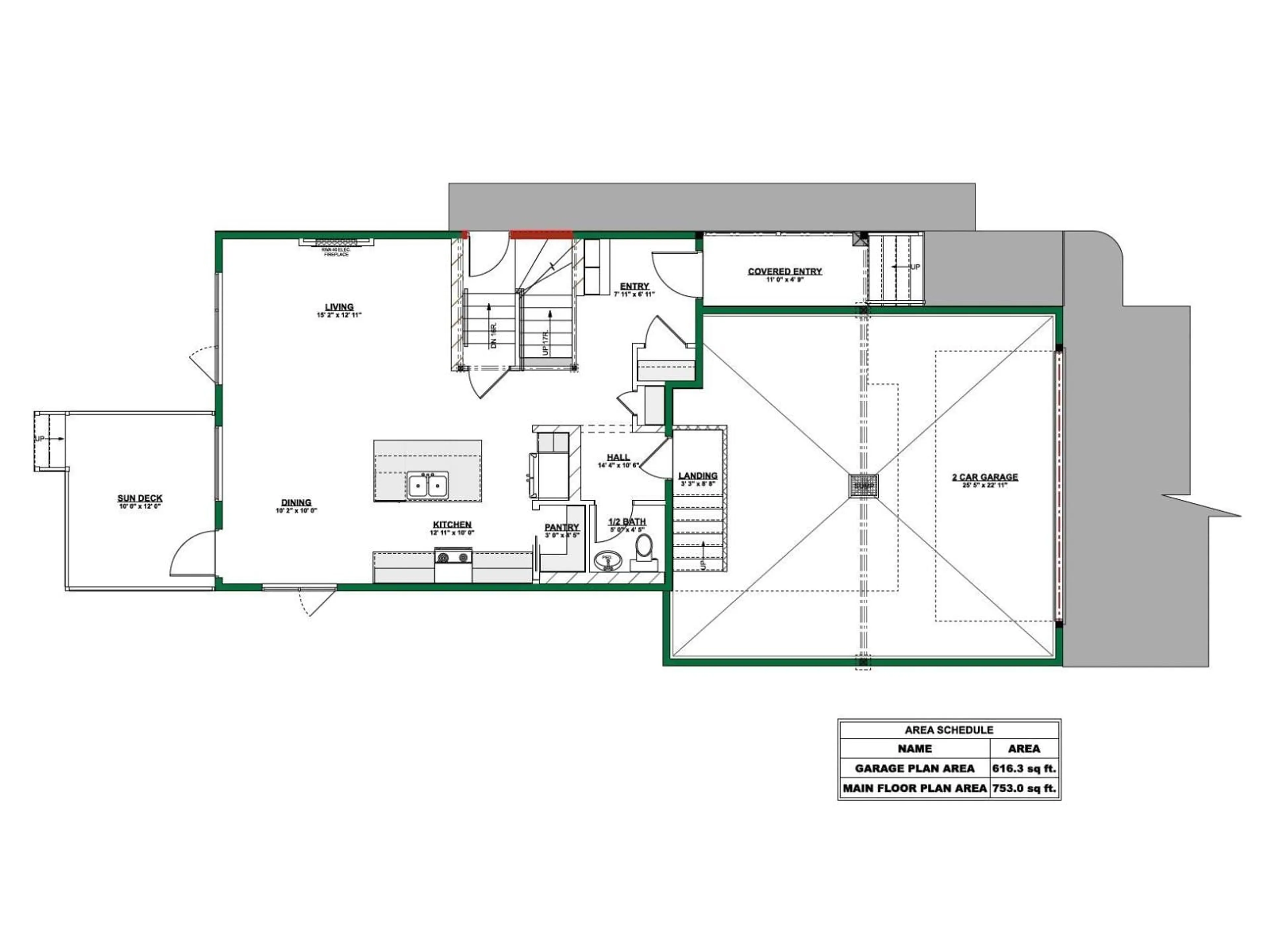
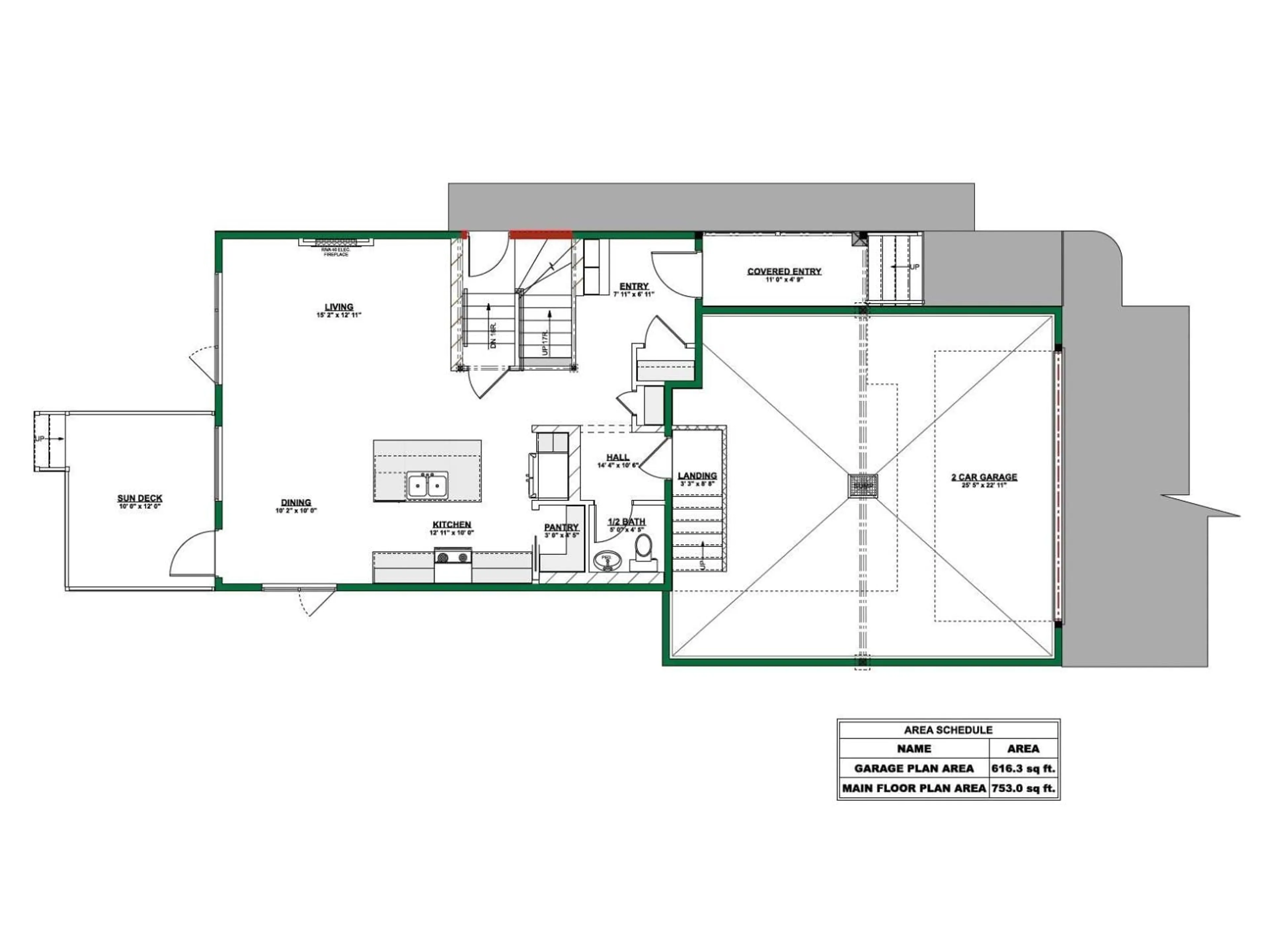
This beautiful new 2-storey home in Pepins Point is approved for the Town of Legal's tax incentive program on a spacious lot with alley access near parks and trails. The main floor features a bright, open layout with a gorgeous kitchen—white shaker cabinets, quartz counters, warm wood-tone island, walk-in pantry, tile backsplash, stainless appliances, and designer lighting. The living room boasts a dramatic floor-to-ceiling reclaimed wood-style tile fireplace. A half bath is off the attached garage. Upstairs offers 3 bedrooms, a 4-piece bath, laundry with washer and dryer, and a flex room. The primary suite features a 5-piece ensuite with dual sinks, oval mirrors, glass shower, soaker tub, and a walk-in closet with built-ins. The basement has a separate side entrance with potential for a legal secondary suite—ideal for rental income or extended family. The oversized double garage includes high ceilings, floor drain, drywalled walls, and heat rough-ins. Rear deck with natural gas BBQ hookup rounds it out. (id:39198)
Property Details
Interior
Features
Main level Floor
Living room
4.62 x 3.94Dining room
3.1 x 3.05Kitchen
3.94 x 3.05Property History
62





