4915 50 AV, Bon Accord, Alberta T0A0K0
Contact us about this property
Highlights
Estimated valueThis is the price Wahi expects this property to sell for.
The calculation is powered by our Instant Home Value Estimate, which uses current market and property price trends to estimate your home’s value with a 90% accuracy rate.Not available
Price/Sqft$263/sqft
Monthly cost
Open Calculator
Description
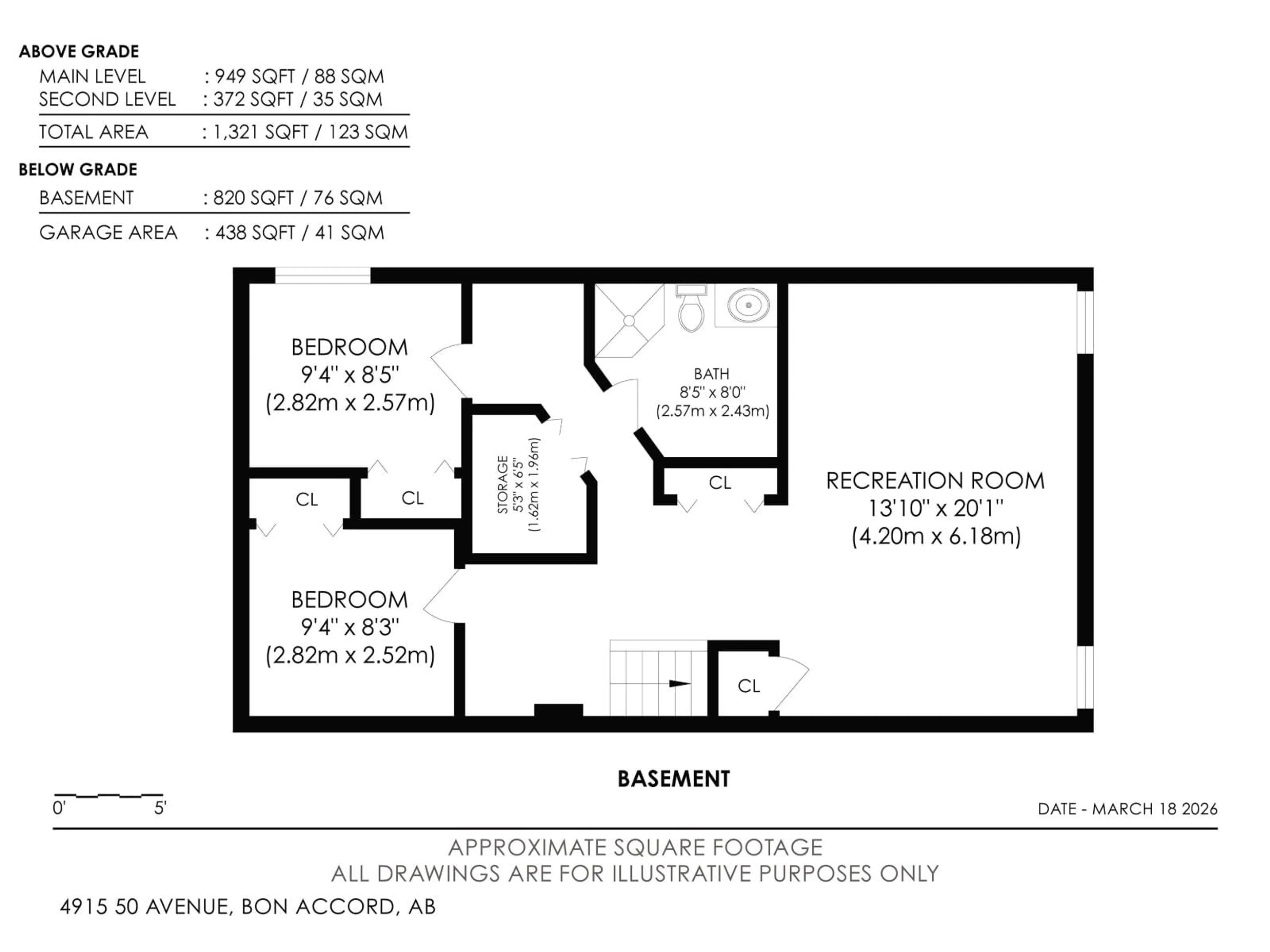
Get away from cookie cutter homes & come see this unique home! In 1996 this 1.5 storey home was moved onto a new ICF foundation & was the beginning of this complete makeover. Modernized kitchen on the main floor, great dining space & front living room overlooking the covered front deck. Primary bedroom, renovated 4 pc bathroom & main floor laundry. The upper floor maximizes use for another bedroom & bonus room perfect teen or hobby space! The basement level has 9 ft ceilings, 2 bedrooms, 3 pc bath with new shower, family room with huge windows, newer electrical, sump pump, & H/E furnace. Gorgeous 50x125' lot with fenced back yard (newer fence), deck with pergola & an oversized single detached garage 26'x15' with 220 V & loads of extra parking space & RV parking on gravel pad. New siding (2026), shingles (2025) & some newer appliances. Steps away from the local amenities & 20 min drive to Edmonton Garrison & Anthony Henday. Fun town activities year-round in this great town of Bon Accord. (id:39198)
Property Details
Interior
Features
Main level Floor
Living room
3.04 x 6.31Dining room
4.42 x 3.69Kitchen
4.42 x 2.88Primary Bedroom
4.1 x 3.28Property History
58






