119 DORCHESTER DR, St. Albert, Alberta T8N4Y4
Contact us about this property
Highlights
Estimated valueThis is the price Wahi expects this property to sell for.
The calculation is powered by our Instant Home Value Estimate, which uses current market and property price trends to estimate your home’s value with a 90% accuracy rate.Not available
Price/Sqft$460/sqft
Monthly cost
Open Calculator
Description
Welcome to this beautifully reimagined home in the sought-after Deer Ridge community of St. Albert — where every detail has been thoughtfully updated for modern living. This bright and airy 4-level split offers four spacious bedrooms and has been completely transformed from top to bottom, including all-new windows, a new furnace, new hot water tank, a stunning new kitchen, and fully renovated bathrooms. The gorgeous new flooring flows throughout, complemented by fresh paint and beautiful new light fixtures that fill every room with warmth and style. Gather around the built-in fireplace in the cozy family room — the perfect spot to unwind after a long day. Outside, enjoy a large yard with plenty of room to play, garden, or entertain, plus the convenience of a double attached garage. Steps from a park and close to all the shopping and amenities St. Albert has to offer, this location truly checks every box. Quick possession available. All this home needs is YOU! (id:39198)
Property Details
Interior
Features
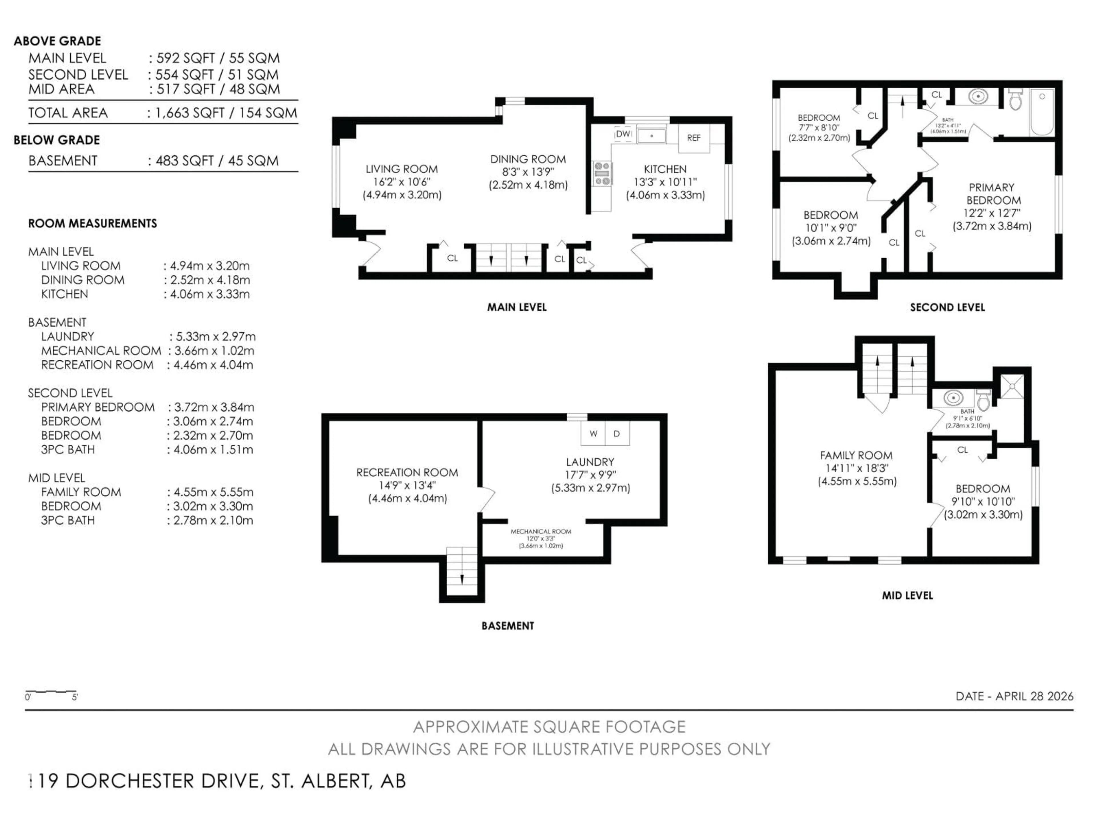
Main level Floor
Living room
Dining room
Kitchen
4.06 x 3.33Property History
53






