41 Terra Close, Red Deer, Alberta T4P 0T7
Contact us about this property
Highlights
Estimated valueThis is the price Wahi expects this property to sell for.
The calculation is powered by our Instant Home Value Estimate, which uses current market and property price trends to estimate your home’s value with a 90% accuracy rate.Not available
Price/Sqft$575/sqft
Monthly cost
Open Calculator
Description
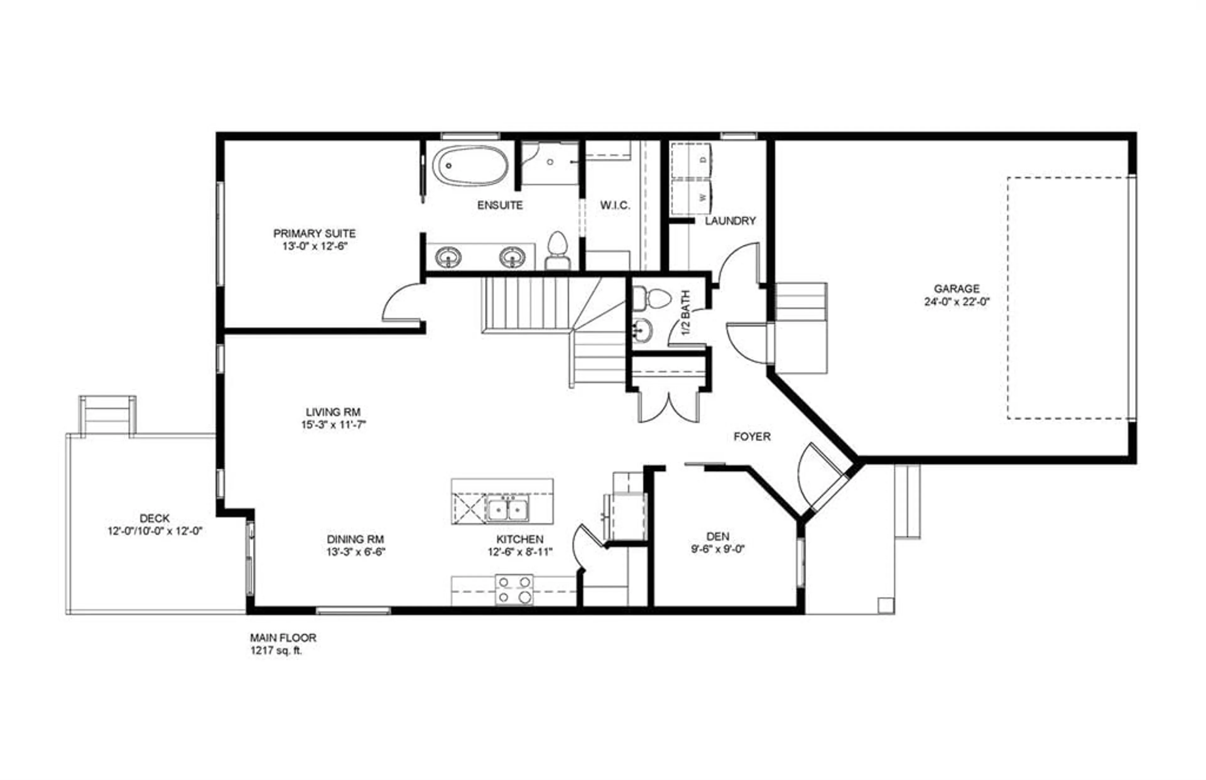
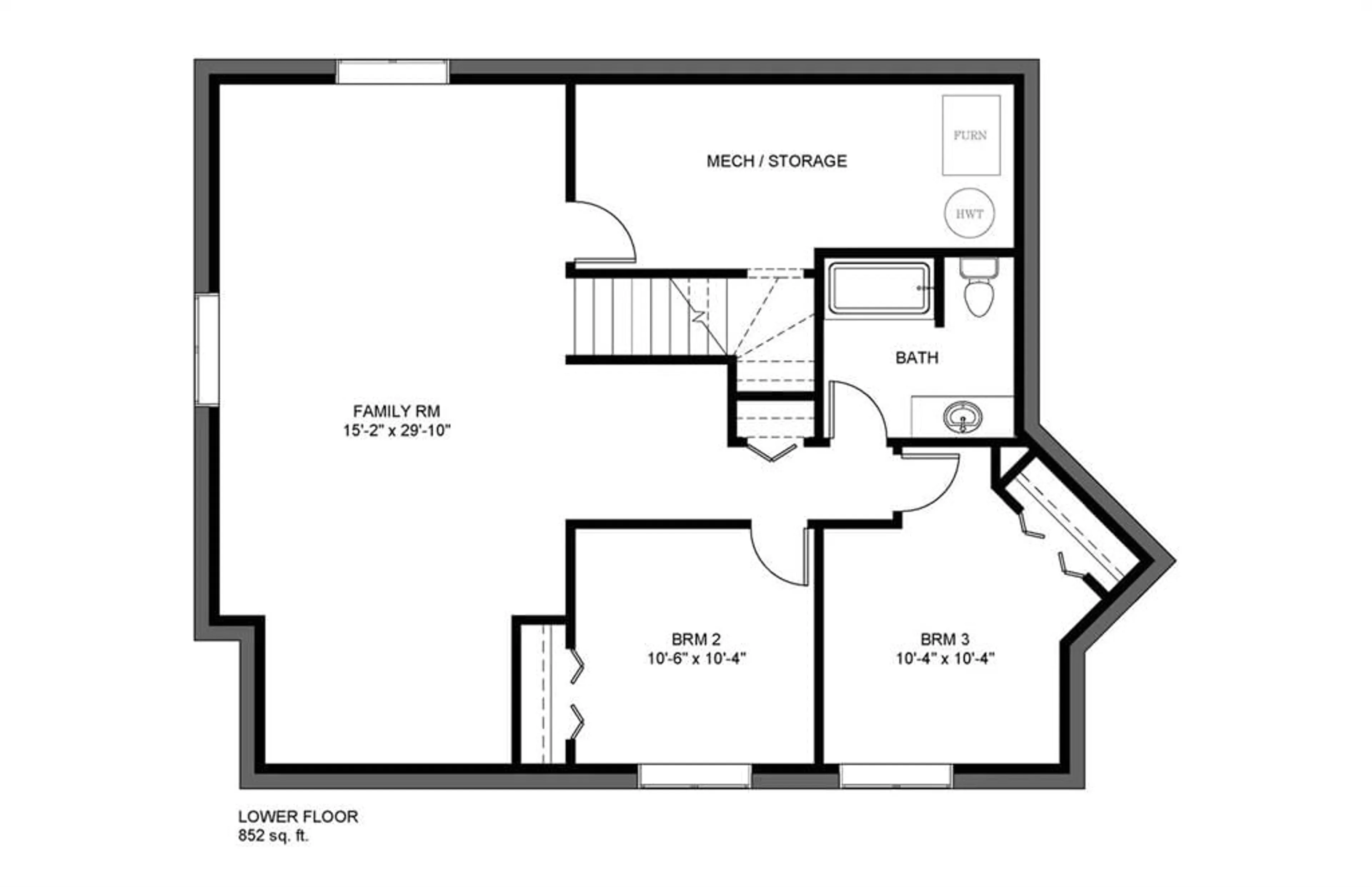
BRAND NEW BUNGALOW ON A PIE LOT! Welcome to maintenance free living in The Timbers, one of Red Deer’s most sought after communities! This stunning community offers executive single-family homes that come fully fenced and landscaped, with no restrictions on age or pets, and all of your yard work, mowing, and shovelling in the winter are taken care of for you! The Rochester is a bright and open floor plan offering 1,217 sq ft above grade, 9' ceilings, main floor laundry, and vinyl plank flooring throughout the main living space. The two tone kitchen offers raised cabinetry, stainless steel appliances, quartz countertops, a large island with under mount granite sink and bar seating, and a spacious corner pantry. Sliding patio doors off the dining area lead out to a spacious deck overlooking the yard, and the adjacent living room is a great place to relax and unwind. The primary bedroom features a large walk in closet and a beautiful spa like ensuite with a freestanding soaker tub, walk in shower, and his and hers sinks. There is also a spacious den or office space at the front of the home, and a convenient powder room down the hall. The fully finished basement offers a huge family and rec room area, two large bedrooms, a 4 pce bath, and has also been roughed-in for in-floor heat. Condo fees of $223.98 cover lawn mowing, snow shovelling, and maintenance of common areas. Allowances can be provided for blinds, and a washer and dryer through the builders suppliers to make this a completely move-in ready package. GST is already included in the purchase price, and 1 year builder warranty and 10 year Alberta New Home Warranty are included. Taxes have yet to be assessed. This home has an estimated completion date of February 2026.
Property Details
Interior
Features
Main Floor
Kitchen
12`6" x 8`11"Bedroom - Primary
13`0" x 12`6"5pc Ensuite bath
0`0" x 0`0"Den
9`6" x 9`0"Exterior
Features
Parking
Garage spaces 2
Garage type -
Other parking spaces 2
Total parking spaces 4
Property History
39






