Contact us about this property
Highlights
Estimated valueThis is the price Wahi expects this property to sell for.
The calculation is powered by our Instant Home Value Estimate, which uses current market and property price trends to estimate your home’s value with a 90% accuracy rate.Not available
Price/Sqft$152/sqft
Monthly cost
Open Calculator
Description
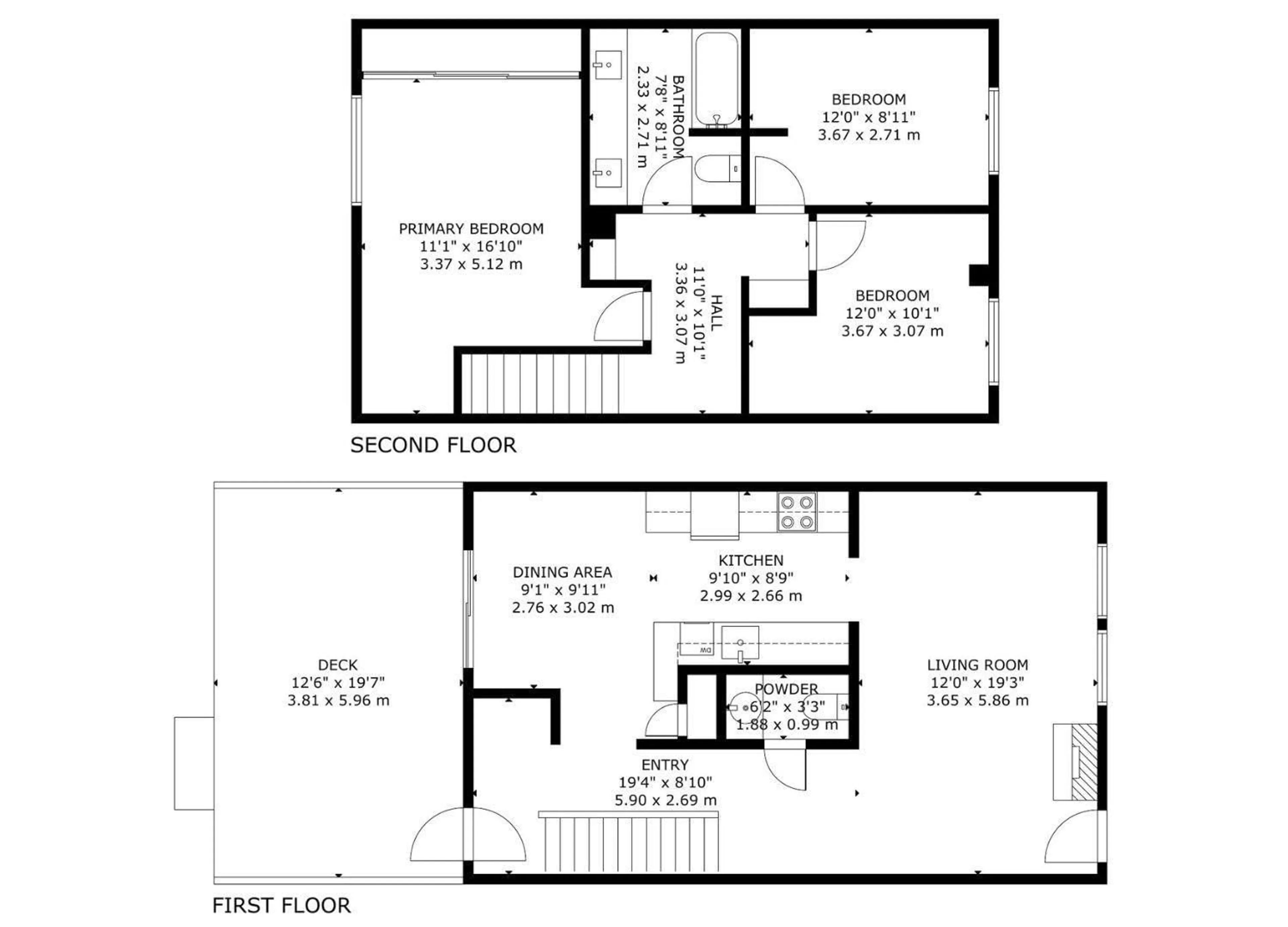
2-storey townhouse near schools, parks and shopping in Paxton Place condominiums. This 1,313 square foot (plus full basement) home features updated kitchen, bathrooms, flooring, as well as upgraded power to a 100 amp panel. On the main level: spacious living room with large windows and gas fireplace, walk-through kitchen with built-in dishwasher, bright dining area with deck access and a 2-pc powder room. Upstairs: 3 generous-sized bedrooms and a 5-piece main bathroom. The partially finished basement, with laundry, is awaiting your finishing touches. Outside you have a fully fenced yard with deck on one side and access to a private courtyard/park on the other. Located within walking distance to many amenities in the family friendly community of Meridian Heights. Must see! Parking is on the east side of the building, use the south Alley entrance (id:39198)
Property Details
Interior
Features
Main level Floor
Living room
3.65 x 5.86Dining room
2.76 x 3.02Kitchen
2.99 x 2.66Exterior
Parking
Garage spaces -
Garage type -
Total parking spaces 2
Condo Details
Inclusions
Property History
40




