53506 RGE RD 271, Rural Parkland County, Alberta T7X3M5
Contact us about this property
Highlights
Estimated valueThis is the price Wahi expects this property to sell for.
The calculation is powered by our Instant Home Value Estimate, which uses current market and property price trends to estimate your home’s value with a 90% accuracy rate.Not available
Price/Sqft$269/sqft
Monthly cost
Open Calculator
Description
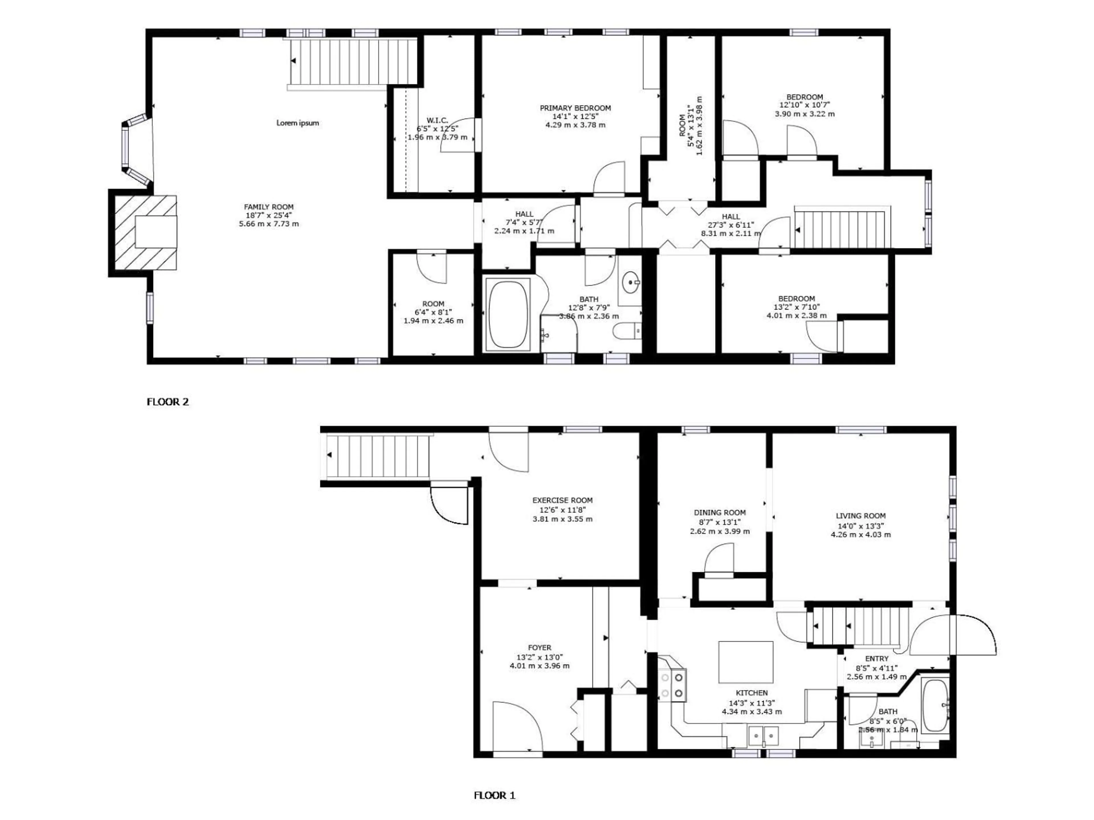
Must see on a PARK LIKE SETTING! An amazing updated farmhouse offers over 2590sf, nothing is missing from this home. Step inside, be amazed by the unique charm of the 3 bedrooms and the massive bonus room. Originally built in 1940, it seamlessly blends modern upgrades with old-school charm. From the electrical/plumbing/heating to the newer cistern & addition, every detail has been thoughtfully updated. Immerse yourself in the best of both worlds with the original hardwood floors and modern amenities. Outside, the 2.74acres beckons you to explore. From the beautifully landscaped yard to the composite deck, you'll find tranquility at every turn. As you venture further, you'll be captivated by the sight of the original red barn, proudly standing tall. With stables and a loft, it's perfect for housing your horses. Located just 7 minutes from Spruce Grove and outside of subdivision, this home offers the convenience you want and the privacy you deserve, and don't forget your skates, a game of shinny awaits. (id:39198)
Property Details
Interior
Features
Main level Floor
Living room
Dining room
Kitchen
Exterior
Parking
Garage spaces -
Garage type -
Total parking spaces 6
Property History
57





