51320 RGE ROAD 10, Rural Parkland County, Alberta T7Y2A3
Contact us about this property
Highlights
Estimated valueThis is the price Wahi expects this property to sell for.
The calculation is powered by our Instant Home Value Estimate, which uses current market and property price trends to estimate your home’s value with a 90% accuracy rate.Not available
Price/Sqft$437/sqft
Monthly cost
Open Calculator
Description
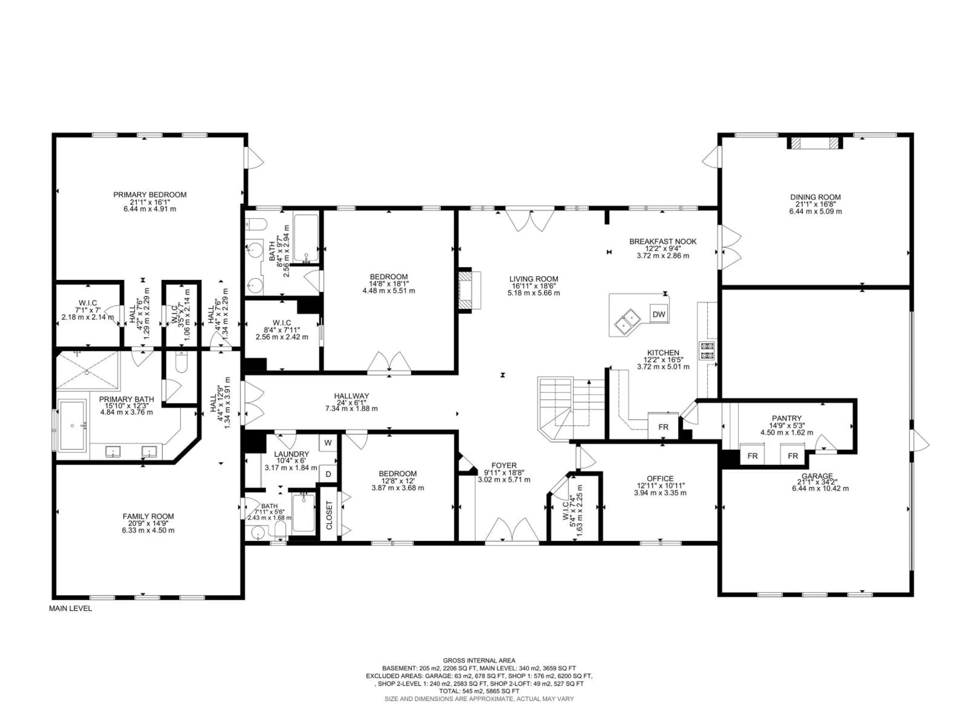
Picture perfect acreage living in this 3600 sq ft bungalow on 10 acres of land with 2 shops south of Stony Plain. Feel at home as you drive the private winding driveway to the huge front porch. Walk in to amazing views of natural through the beautiful west facing windows. Open floor plan with large living room, huge kitchen & perfect breakfast nook. Massive dining room for hosting family & friends! Master suite has it's own living room or quiet area. Bedroom itself is massive with tons of natural light. His & Hers walk in closets. HUGE pc ensuite. 2nd bedroom has it's own ensuite & walk in closet. 3rd bedroom great for kids or guests. Main door den! WALKOUT basement is fully finished with large family room space, games space, theatre room & 2 more bedrooms! Beautiful lot with tons of privacy! Shop 1 is 100'x50' with 200 amp service, multiple overhead doors, reinforced slab, in floor & radiant heat, office & mezzanine & 2pc bathroom. Shop 2 is 40'x60', insulated with radiant heat & gravel floor. (id:39198)
Property Details
Interior
Features
Main level Floor
Living room
Dining room
6.44 x 5.09Kitchen
3.72 x 5.01Family room
6.33 x 4.5Property History
75





