NE - 6415 29 ST, Rural Leduc County, Alberta T4X3A7
Contact us about this property
Highlights
Estimated valueThis is the price Wahi expects this property to sell for.
The calculation is powered by our Instant Home Value Estimate, which uses current market and property price trends to estimate your home’s value with a 90% accuracy rate.Not available
Price/Sqft$299/sqft
Monthly cost
Open Calculator
Description
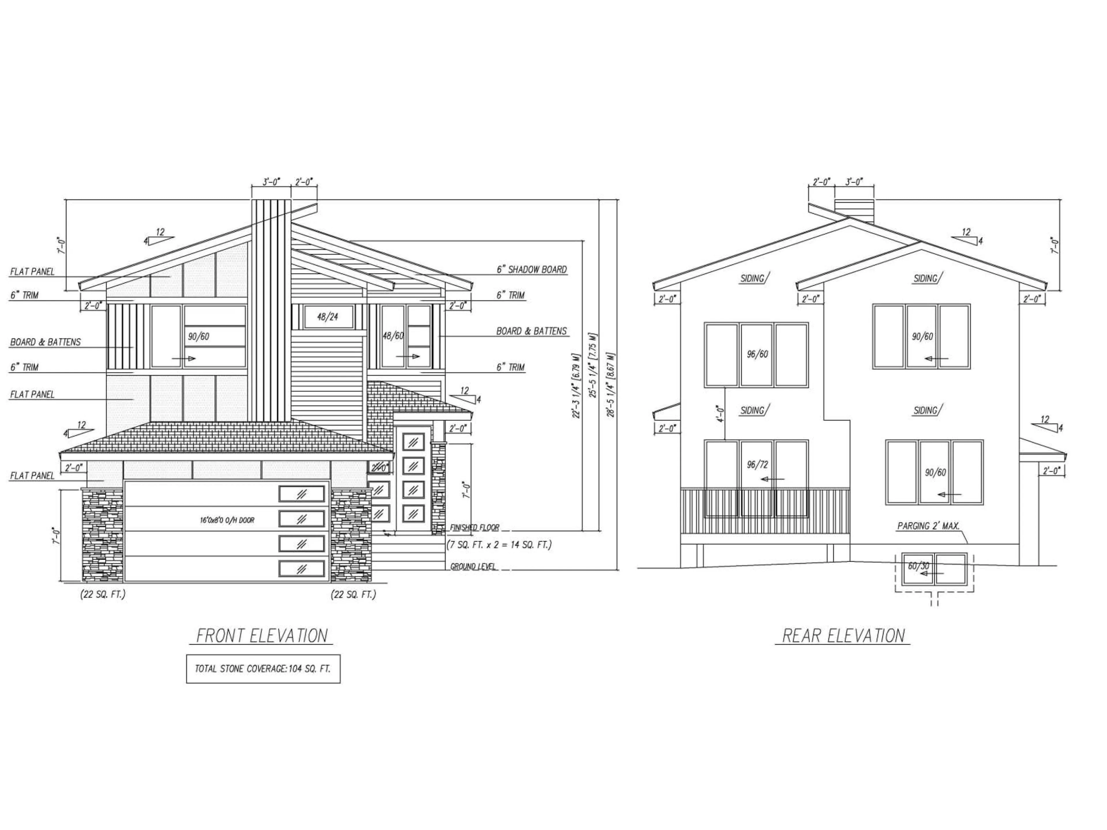
This exceptional 32-pocket pie lot sits on over 7,500+ sq. ft of land and backs onto a beautiful green space & walking trail. Featuring a custom-built approx. 2,500 sq. ft home with 5 bed, out of which 4 are Masters each with ensuite bathrooms, this property offers spacious and thoughtful design throughout. Highlights include a spice kitchen, quartz countertops, 9–10-20 ft ceilings, open-to-below layout, ceiling speakers, feature walls, and an oversized double garage with an 18x8 ft garage door. Enjoy a larger backyard perfect for entertaining or relaxing. Conveniently located just 10-15 minutes max from Costco, Walmart, the airport, bilingual schools, and everyday amenities. Note- Photos shown may be from previously sold homes with similar layouts and finishes, provided for reference purposes only. Actual layout, finishes, and details may vary based on the availability of colors, materials, and other factors. (id:39198)
Property Details
Interior
Features
Main level Floor
Living room
Dining room
Kitchen
Family room
Property History
18






