558 ASHGROVE CIRCLE, Leduc, Alberta T9E0K8
Contact us about this property
Highlights
Estimated valueThis is the price Wahi expects this property to sell for.
The calculation is powered by our Instant Home Value Estimate, which uses current market and property price trends to estimate your home’s value with a 90% accuracy rate.Not available
Price/Sqft$271/sqft
Monthly cost
Open Calculator
Description
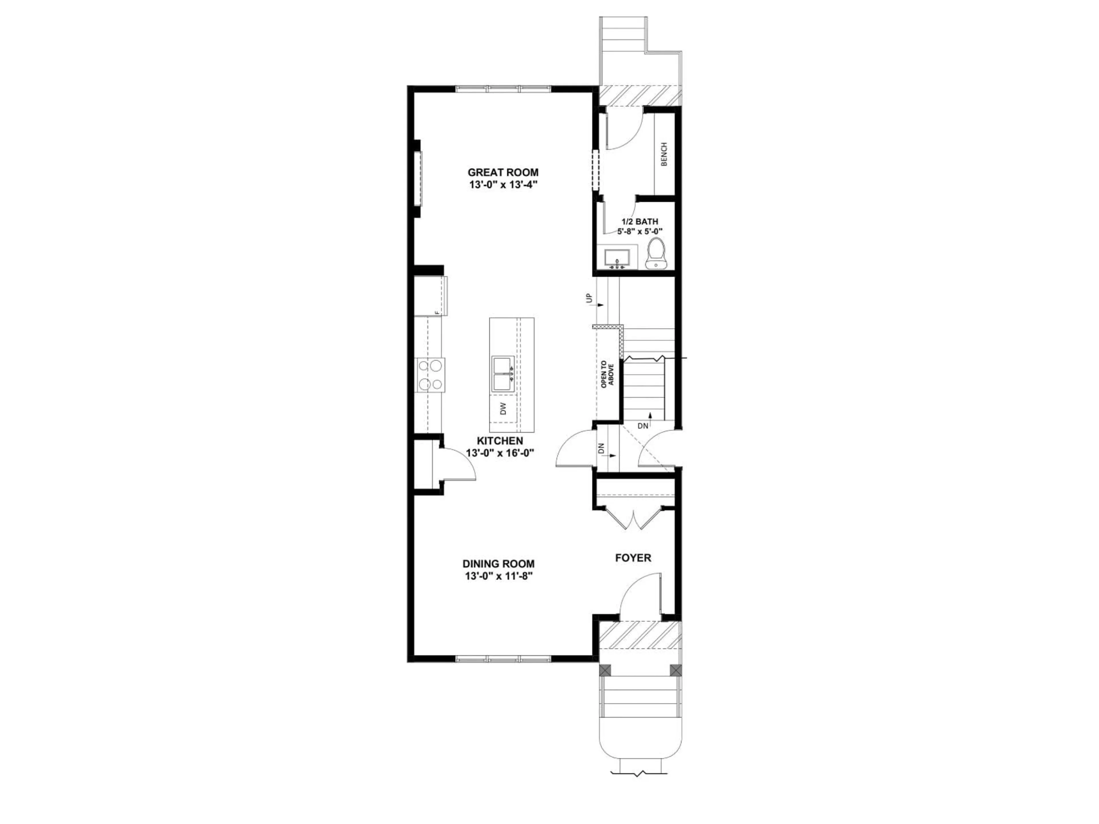
Discover modern luxury in this brand-new home in Leduc’s emerging Anderson community. Offering upscale style without the hefty price tag, this home delivers premium value and design. The open-concept main floor showcases a chef-inspired kitchen with a central island, sleek finishes, and a bright great room perfect for relaxing or entertaining. Upstairs features three spacious bedrooms, including a stunning primary suite with a walk-in closet and elegant ensuite. Being close to peaceful Deer Creek, Anderson offers the ideal blend of nature and convenience. Enjoy close proximity to the new Ohpaho Secondary School and Woodbend Market, with easy access to major routes for a smooth commute to Edmonton. With a separate side entrance offering future suite potential, this home isn’t just beautiful—it’s a smart investment. Luxury living has never been more attainable. (id:39198)
Property Details
Interior
Features
Main level Floor
Living room
Dining room
Kitchen
Exterior
Parking
Garage spaces -
Garage type -
Total parking spaces 4
Property History
5






