#4 - 102 BRIDGEPORT CX, Leduc, Alberta T9E8K8
Contact us about this property
Highlights
Estimated valueThis is the price Wahi expects this property to sell for.
The calculation is powered by our Instant Home Value Estimate, which uses current market and property price trends to estimate your home’s value with a 90% accuracy rate.Not available
Price/Sqft$422/sqft
Monthly cost
Open Calculator
Description
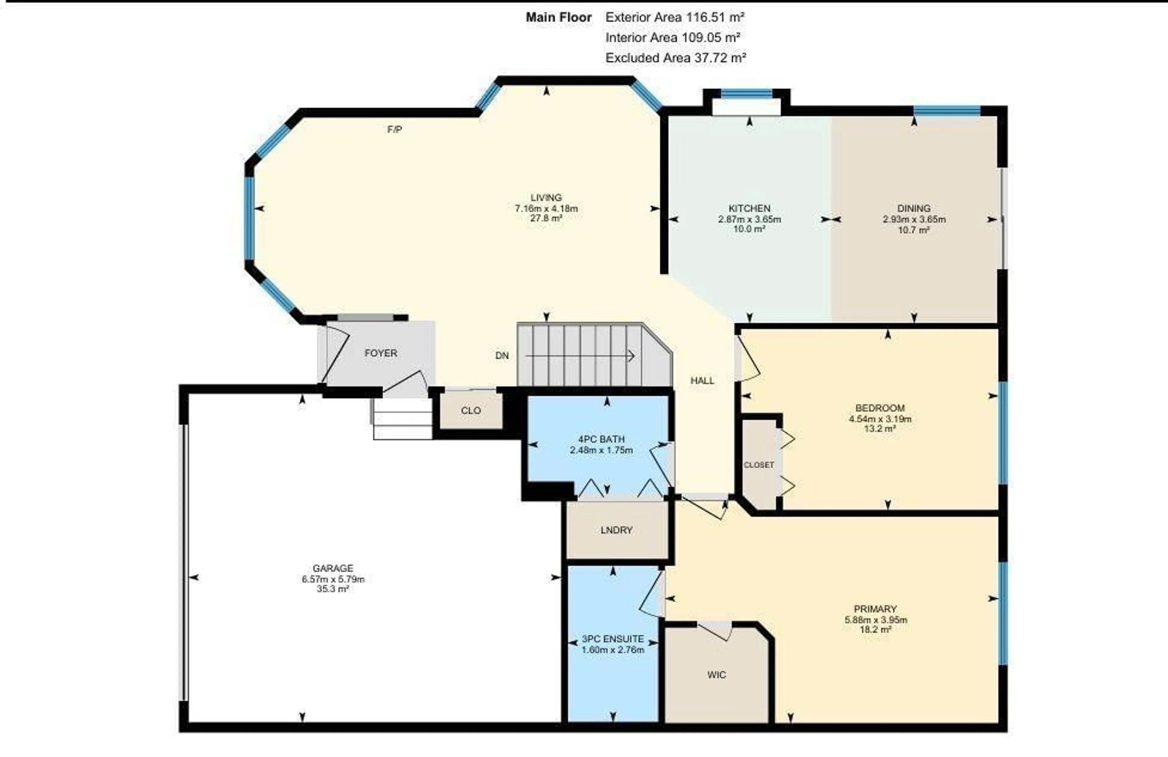
Located in The Springs at Bridgeport, this beautiful half duplex condo measures 1254 sq/ft on the main floor, has a finished basement, and a double attached garage. The main floor hosts a large Living room with a gas fireplace, the modern kitchen with a peninsula island, and dining room with patio access to the deck. Two Bedrooms are situated on the main level including the Primary that has a walk-in closet, and 3 piece Ensuite bathroom. A 4 piece bathroom with laundry concludes the main floor plan. The Finished Basement has a large Family room with another gas fire place, another bedroom, a large utility room with storage, Den, and 3 piece Bathroom. The Double attached garage with a parking pad in front is heated keeping you completely out of the winter elements, while Air Conditioning keeps the home comfortable in the Summer. This home shows off its pride of ownership in a desirable location. Lawn Maintenance and Snow Removal are included in the condo fees! (id:39198)
Property Details
Interior
Features
Main level Floor
Kitchen
3.65 x 2.87Bedroom 2
4.54 x 3.19Living room
7.16 x 4.18Dining room
3.65 x 2.93Condo Details
Inclusions
Property History
32





