174 ELLIOT WD, Fort Saskatchewan, Alberta T8L1R8
Contact us about this property
Highlights
Estimated valueThis is the price Wahi expects this property to sell for.
The calculation is powered by our Instant Home Value Estimate, which uses current market and property price trends to estimate your home’s value with a 90% accuracy rate.Not available
Price/Sqft$316/sqft
Monthly cost
Open Calculator
Description
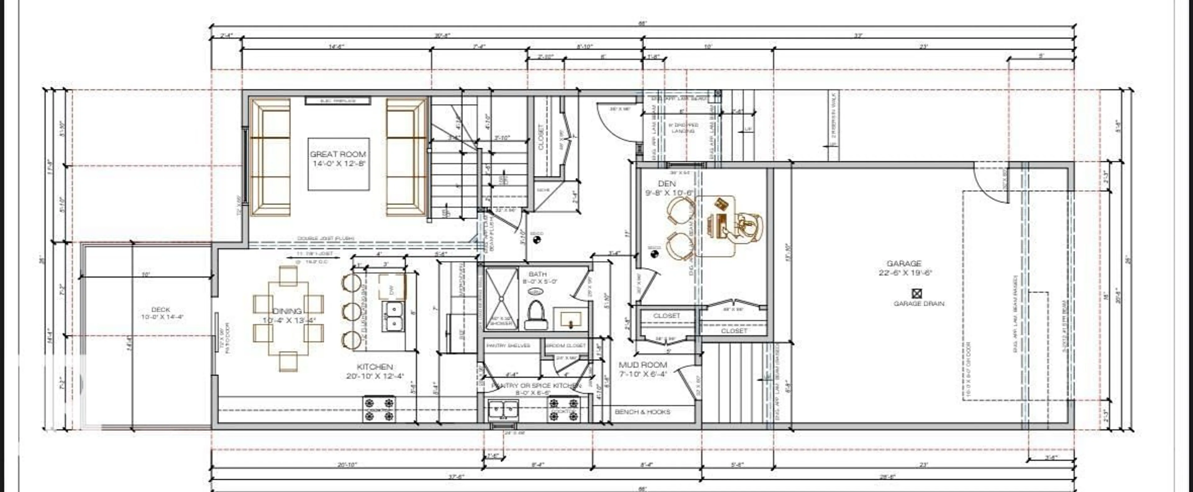
Introducing 174 Elliot Wynd, a stunning new construction 4-bed, 3-bath home with premium features and 709?m² pie-shaped pond-backing lot. This home boasts a main floor den convertible to a 5th bedroom, open-to-above living room, chef’s butler’s pantry, mudroom, and walk-out basement—perfect for entertaining or growing families. The main floor features seamless living spaces with abundant natural light, while the upper level offers spacious bedrooms, including a luxurious primary retreat. With high-end finishes throughout, this home blends elegance and functionality in a sought-after location. Enjoy serene pond views from your backyard and easy access to nearby amenities. Positioned for families seeking space, style, and lifestyle, this is the premium choice on Elliot Wynd. Don’t miss this opportunity! (id:39198)
Property Details
Interior
Features
Main level Floor
Dining room
13' x 10'4"Kitchen
12'4 x 20'10"Den
10'6" x 9'8"Property History
6






