1486 WELBOURN DR, Edmonton, Alberta T6M2M1
Contact us about this property
Highlights
Estimated valueThis is the price Wahi expects this property to sell for.
The calculation is powered by our Instant Home Value Estimate, which uses current market and property price trends to estimate your home’s value with a 90% accuracy rate.Not available
Price/Sqft$800/sqft
Monthly cost
Open Calculator
Description
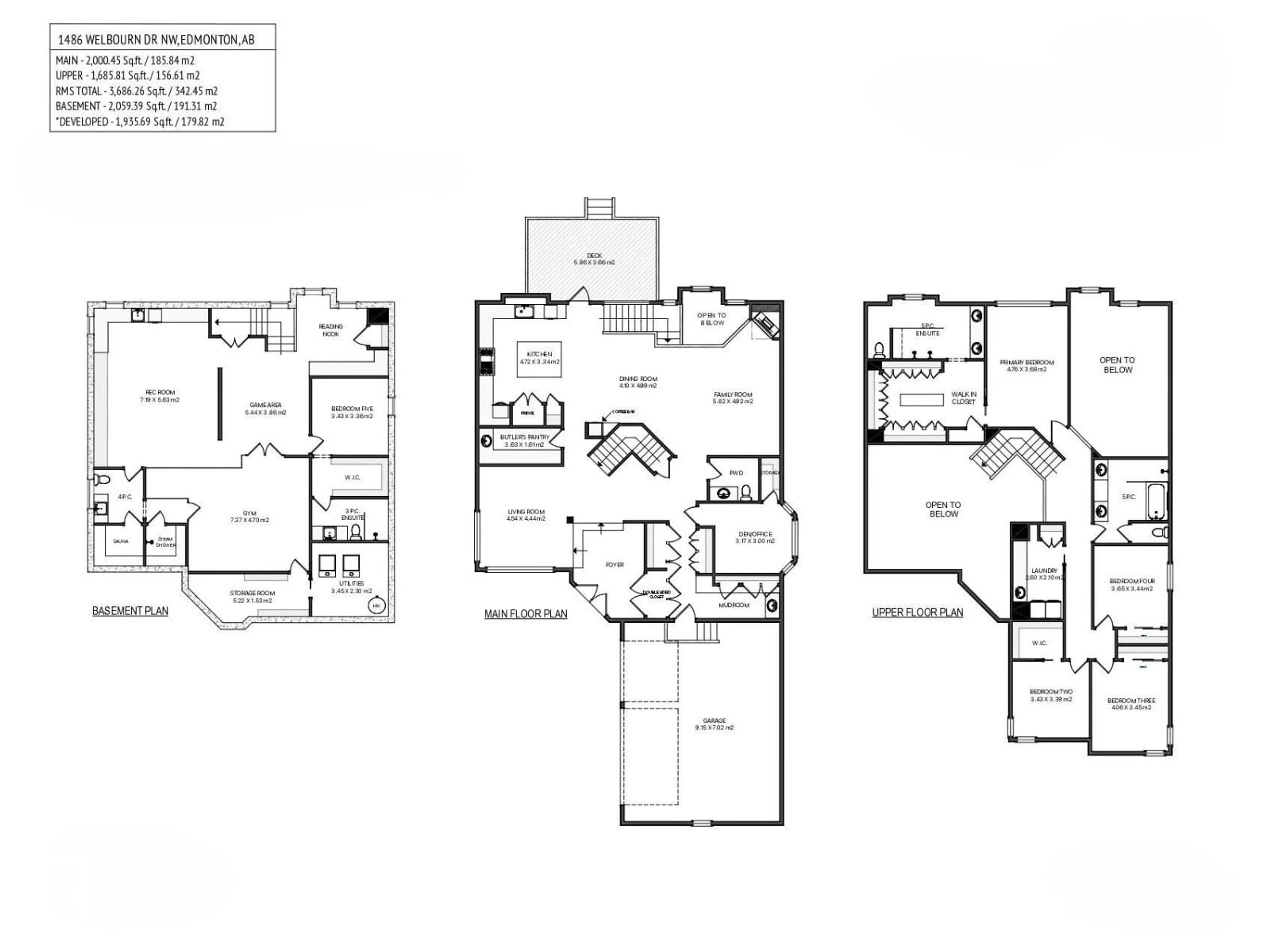
Exclusively designed by Kyle & Co, this exceptional residence is located on a quiet street in prestigious Wedgewood, backing directly onto the scenic Wedgewood Ravine (10,918sqft lot). Offering 5,745sqft of developed living space – 4 beds up + 1 down – 4.5 baths, this home blends timeless design with modern luxury. The impressive interior features soaring 20-ft ceilings, expansive living spaces filled with natural light & a thoughtfully designed layout. The chef’s kitchen is equipped with premium Sub-Zero & Miele appliances, perfect for both everyday living & entertaining. Designed with comfort & wellness in mind, the home includes a private infrared sauna & fully equipped home gym. Major electrical, plumbing & mechanical systems have been updated, providing peace of mind for years to come. Outside, enjoy professionally landscaped grounds & direct access to the ravine’s natural beauty. A heated driveway leads to the triple attached garage, offering convenience during Edmonton winters. (id:39198)
Property Details
Interior
Features
Main level Floor
Kitchen
4.72 x 3.34Living room
4.54 x 4.44Office
3.17 x 3Dining room
4.1 x 4.99Exterior
Parking
Garage spaces -
Garage type -
Total parking spaces 6
Property History
73





