SW - 2037 69A ST, Edmonton, Alberta T6X0S5
Contact us about this property
Highlights
Estimated valueThis is the price Wahi expects this property to sell for.
The calculation is powered by our Instant Home Value Estimate, which uses current market and property price trends to estimate your home’s value with a 90% accuracy rate.Not available
Price/Sqft$319/sqft
Monthly cost
Open Calculator
Description
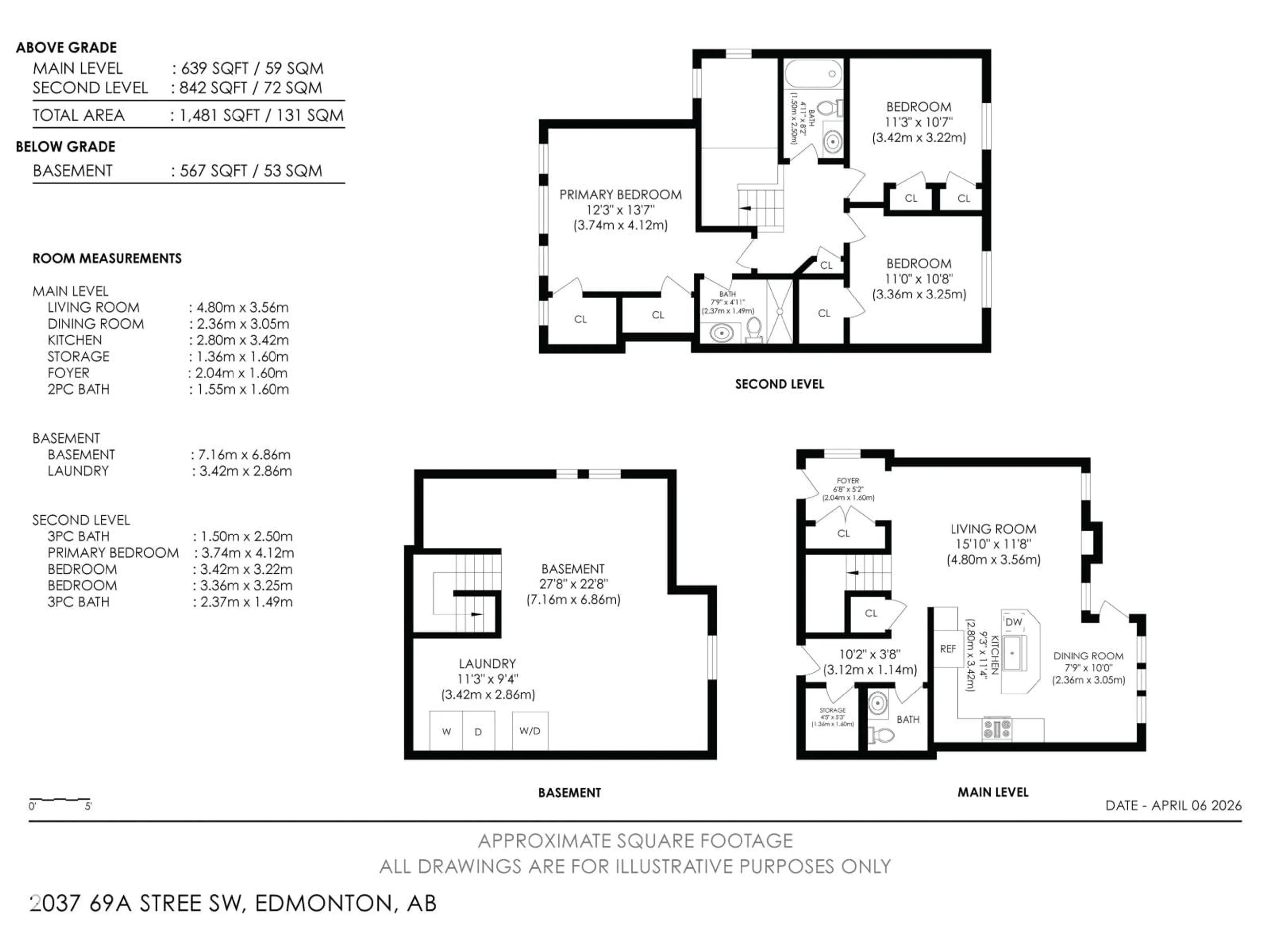
Welcome to this charming half duplex nestled in the sought-after community of Summerside. Inside, the open-concept main floor is warm and inviting, anchored by a cozy fireplace that brings the space to life. Three generous bedrooms and 2.5 baths offer comfortable living for families or savvy investors alike. The double attached garage adds everyday practicality, while the large backyard provides plenty of room to relax, entertain, or simply enjoy the outdoors. The unfinished basement is a blank canvas — ready and waiting for your personal touch. Here's the cherry on top — the current tenant loves it here and wants to stay, meaning you could step into instant, stable rental income from day one. A true turnkey investment opportunity with a reliable tenant already in place. Perfectly positioned with quick access to the Anthony Henday, Edmonton International Airport, and South Common just minutes away — convenience is built right into your lifestyle. ALL this home needs is YOU. (id:39198)
Property Details
Interior
Features
Main level Floor
Living room
Dining room
Kitchen
Storage
Property History
27






