#53 - 3010 33 AV, Edmonton, Alberta T6T0C3
Contact us about this property
Highlights
Estimated valueThis is the price Wahi expects this property to sell for.
The calculation is powered by our Instant Home Value Estimate, which uses current market and property price trends to estimate your home’s value with a 90% accuracy rate.Not available
Price/Sqft$152/sqft
Monthly cost
Open Calculator
Description
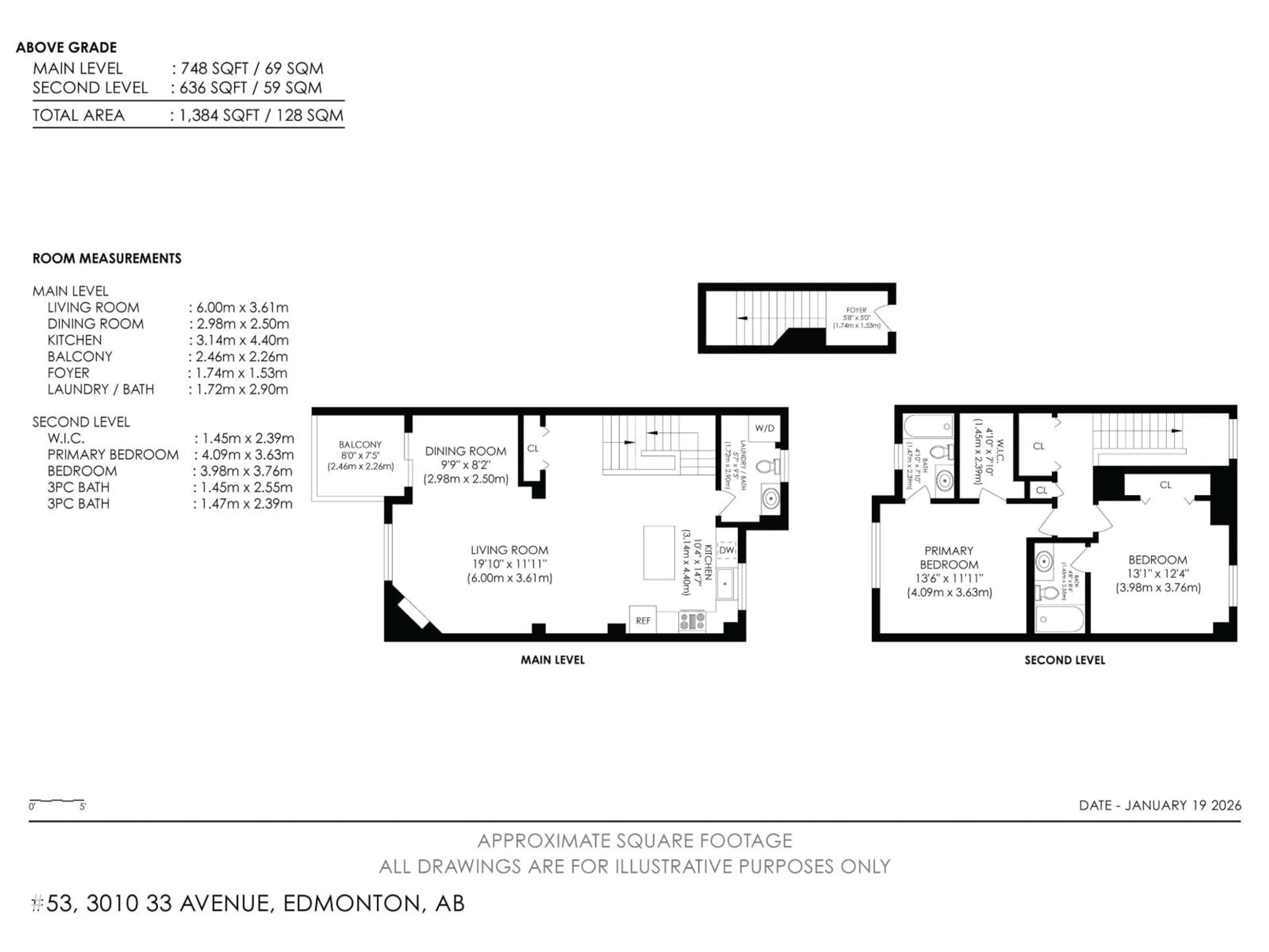
Welcome to this charming 2-storey townhouse in the desirable Silver Berry neighbourhood. This open-concept home offers a bright living room, dining area, and kitchen featuring sleek black appliances—ideal for both everyday living and entertaining. Enjoy casual meals at the eat-up island or host gatherings in the dedicated dining space. Cozy up by the gas fireplace, or step outside to relax on your private balcony. Upstairs, you’ll find two spacious primary bedrooms, each complete with its own 4-piece ensuite for ultimate comfort and privacy. A convenient stacked washer and dryer complete the upper level. Ideally located close to shopping, schools, playgrounds, and public transit, this home checks all the boxes for lifestyle and convenience. Low condo fees make it an excellent option for first-time buyers, investors, or those looking to downsize without sacrificing comfort. All this home needs is YOU! (id:39198)
Property Details
Interior
Features
Main level Floor
Living room
Dining room
Kitchen
Condo Details
Inclusions
Property History
50




