NW - 24 8209 217 ST, Edmonton, Alberta T5T6Z4
Contact us about this property
Highlights
Estimated valueThis is the price Wahi expects this property to sell for.
The calculation is powered by our Instant Home Value Estimate, which uses current market and property price trends to estimate your home’s value with a 90% accuracy rate.Not available
Price/Sqft$223/sqft
Monthly cost
Open Calculator
Description
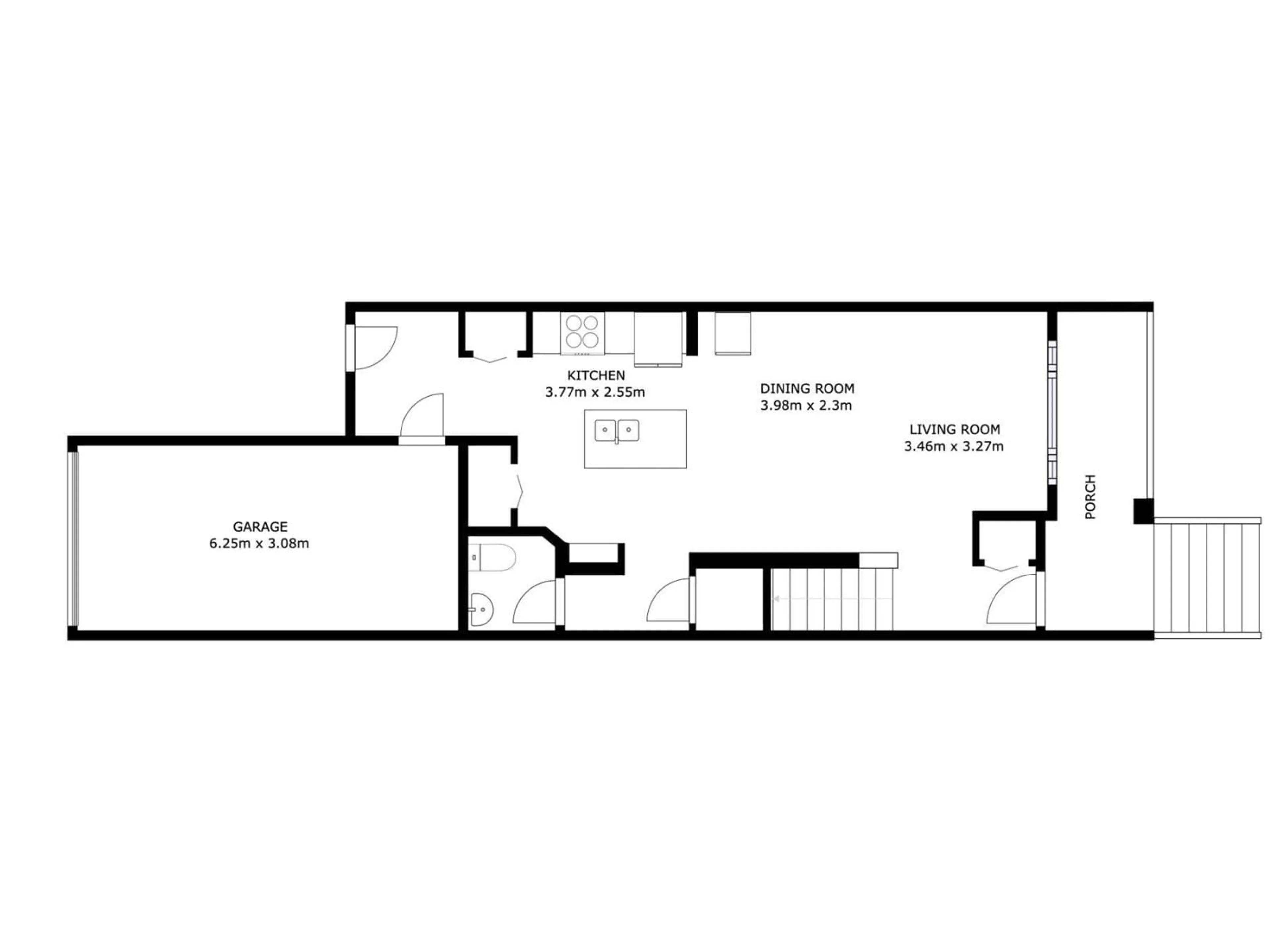
Welcome to stylish low maintenance living in this beautifully kept townhome in Rosenthal. Offering 1500 sqft above grade with a bright & functional layout featuring central island kitchen with modern espresso cabinetry, stainless steel appliances (new dishwasher), full pantry & beautiful quartz countertops. Open living & dining areas provide plenty of space for everyday comfort & entertaining plus convenient 2pc tucked away for when friends come by. Upstairs, the primary suite includes its own private ensuite. Wide hallways make this home feel even more spacious. The two additional bedrooms are decent sized & a second full bath plus convenient top floor laundry to complete this level. The unfinished basement has rough in for future bathroom & is nice and open so it would make a great place to play games or watch movies if you want it and furnace is brand new. Single attached garage, low condo fees & easy access to parks, schools, shopping & major routes, this is an excellent opportunity live in a vibrant (id:39198)
Property Details
Interior
Features
Main level Floor
Living room
Dining room
Kitchen
Condo Details
Amenities
Vinyl Windows
Inclusions
Property History
44




