Contact us about this property
Highlights
Estimated valueThis is the price Wahi expects this property to sell for.
The calculation is powered by our Instant Home Value Estimate, which uses current market and property price trends to estimate your home’s value with a 90% accuracy rate.Not available
Price/Sqft$176/sqft
Monthly cost
Open Calculator
Description
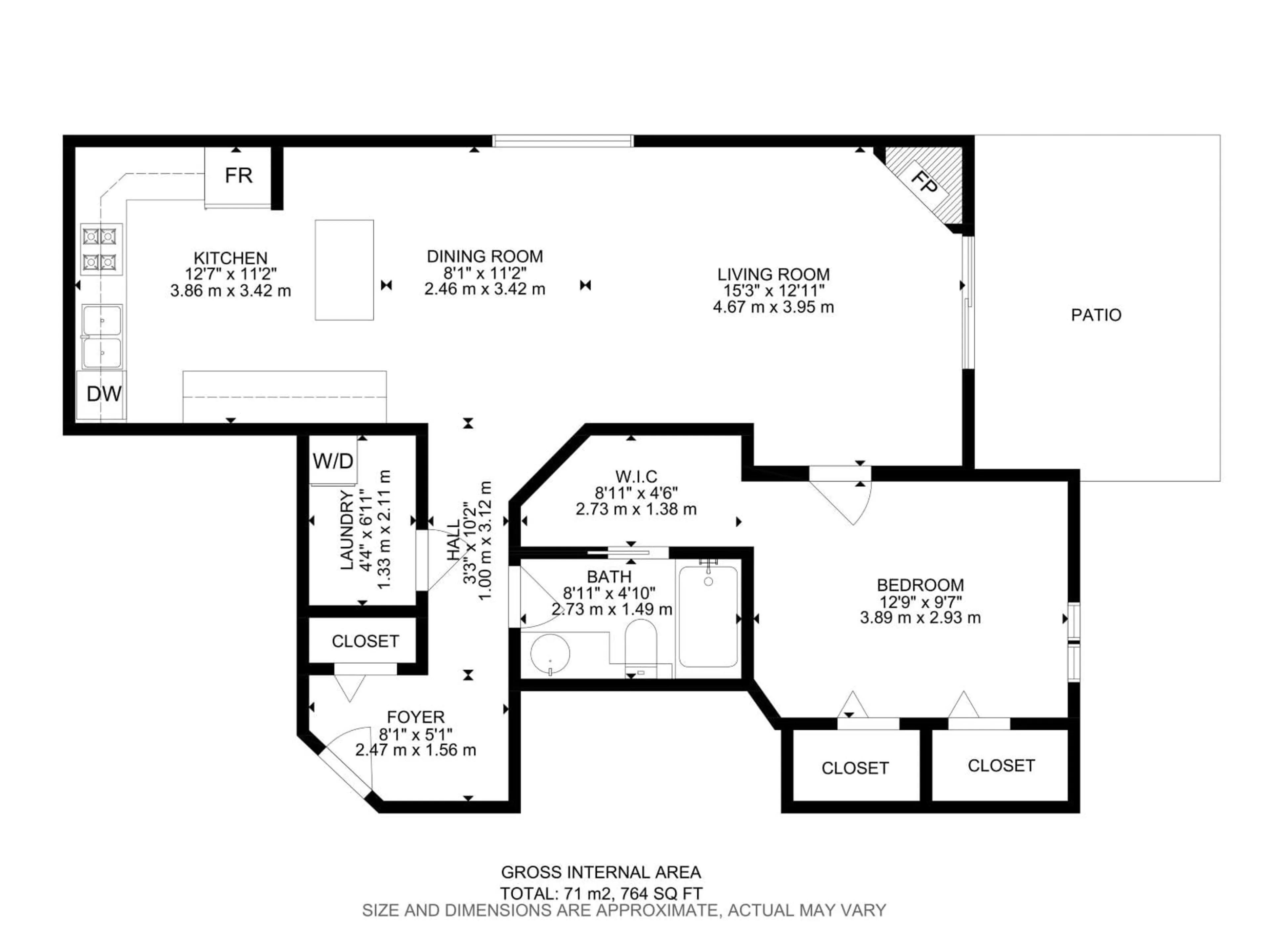
Come check out this main floor one-bedroom, one-bathroom condo conveniently located minutes away from Whyte Ave, U of A, shopping, parks, and so much more, in the highly desirable community of Ritchie! Enjoy the convenience of in-suite laundry, an East facing balcony, and tons of storage throughout. The large open living area includes a kitchen with plenty of cupboards and countertop space, a movable island, dining area, and living room with gas fireplace. The bright primary bedroom features two closets, PLUS an additional walk-through closet that leads to the 4 piece bathroom. The unit comes with one outdoor covered parking stall and a storage locker. Great opportunity for a student, rental property, first time home buyer, or someone downsizing. (id:39198)
Property Details
Interior
Features
Main level Floor
Living room
12'11 x 15'3"Dining room
11'2" x 8'1"Kitchen
11'2" x 12'7"Primary Bedroom
9'7" x 12'9"Exterior
Parking
Garage spaces -
Garage type -
Total parking spaces 1
Condo Details
Inclusions
Property History
29





