Contact us about this property
Highlights
Estimated valueThis is the price Wahi expects this property to sell for.
The calculation is powered by our Instant Home Value Estimate, which uses current market and property price trends to estimate your home’s value with a 90% accuracy rate.Not available
Price/Sqft$534/sqft
Monthly cost
Open Calculator
Description
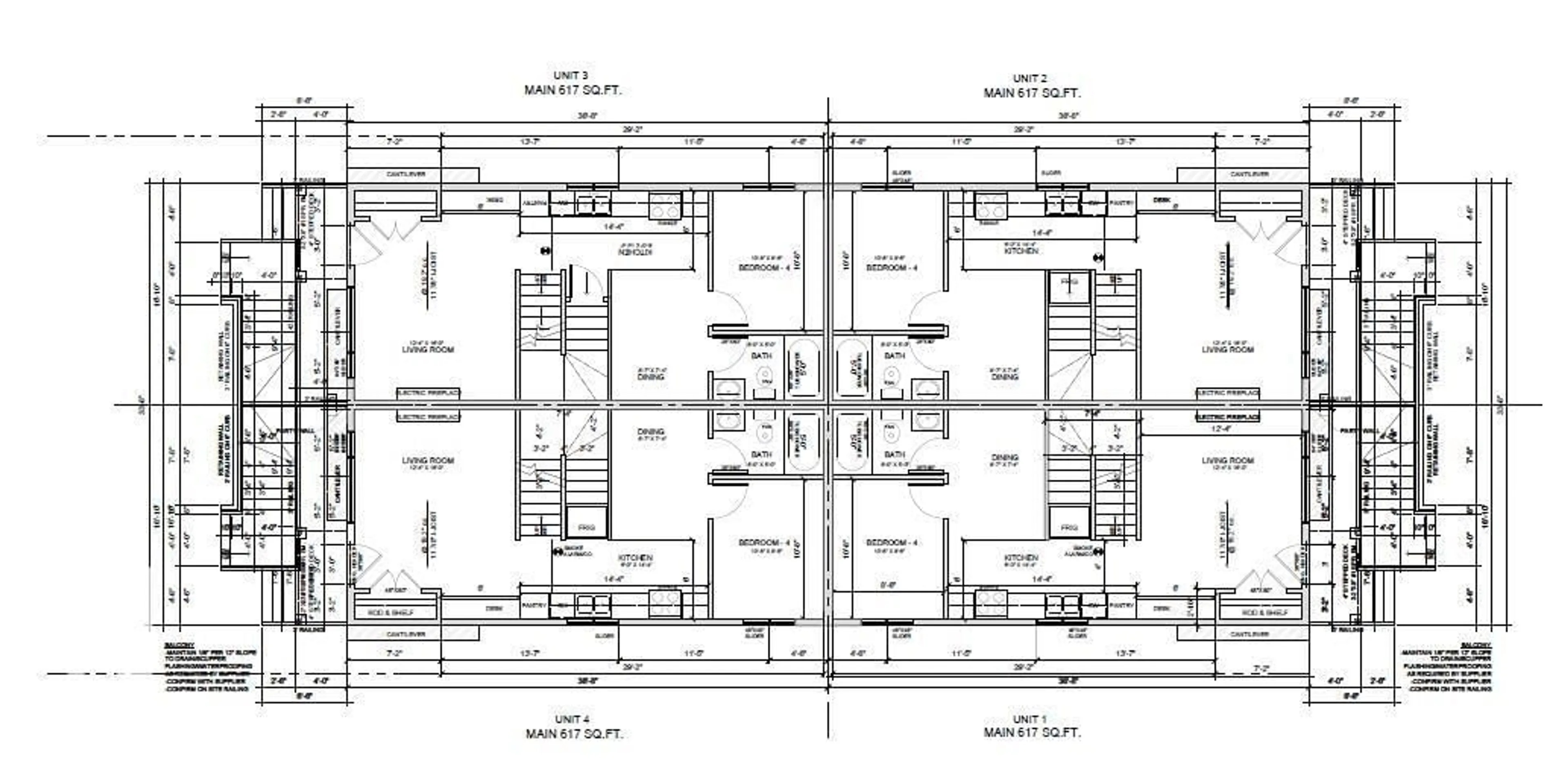
Welcome to a luxurious multi-family 8plex built by Landridge Homes in the desirable Parkallen neighbourhood. This brand new build features 8 units, 4 upper units and 4 basement units, with a total of 24 rooms, including 16 full baths. With a total of 6,957 sq ft, this property boasts 9 ft ceilings, luxury finishings, feature walls, and a built-in fireplace. Each unit comes equipped with brand new stainless steel appliances, and the upper levels have 4 bedrooms each. Additionally, there is an apartment-style basement suite with 2 bedrooms. The property also includes a cement parking pad and fully turnkey amenities such as appliances, blinds, landscaping, and fencing. This a great investment opportunity with rental guarantee for the first year, which offers over $40,000 plus in potential cashflow. Don't miss out on this incredible chance to own a turnkey multi-family project in a prime location. Visit our multi-family Showhome at 8203 98 Ave NW, open Monday to Friday, 9 AM - 5 PM! (id:39198)
Property Details
Interior
Features
Main level Floor
Living room
Dining room
Kitchen
Bedroom 4
Property History
57





