5732 168 AV, Edmonton, Alberta T5Y0K5
Contact us about this property
Highlights
Estimated valueThis is the price Wahi expects this property to sell for.
The calculation is powered by our Instant Home Value Estimate, which uses current market and property price trends to estimate your home’s value with a 90% accuracy rate.Not available
Price/Sqft$318/sqft
Monthly cost
Open Calculator
Description
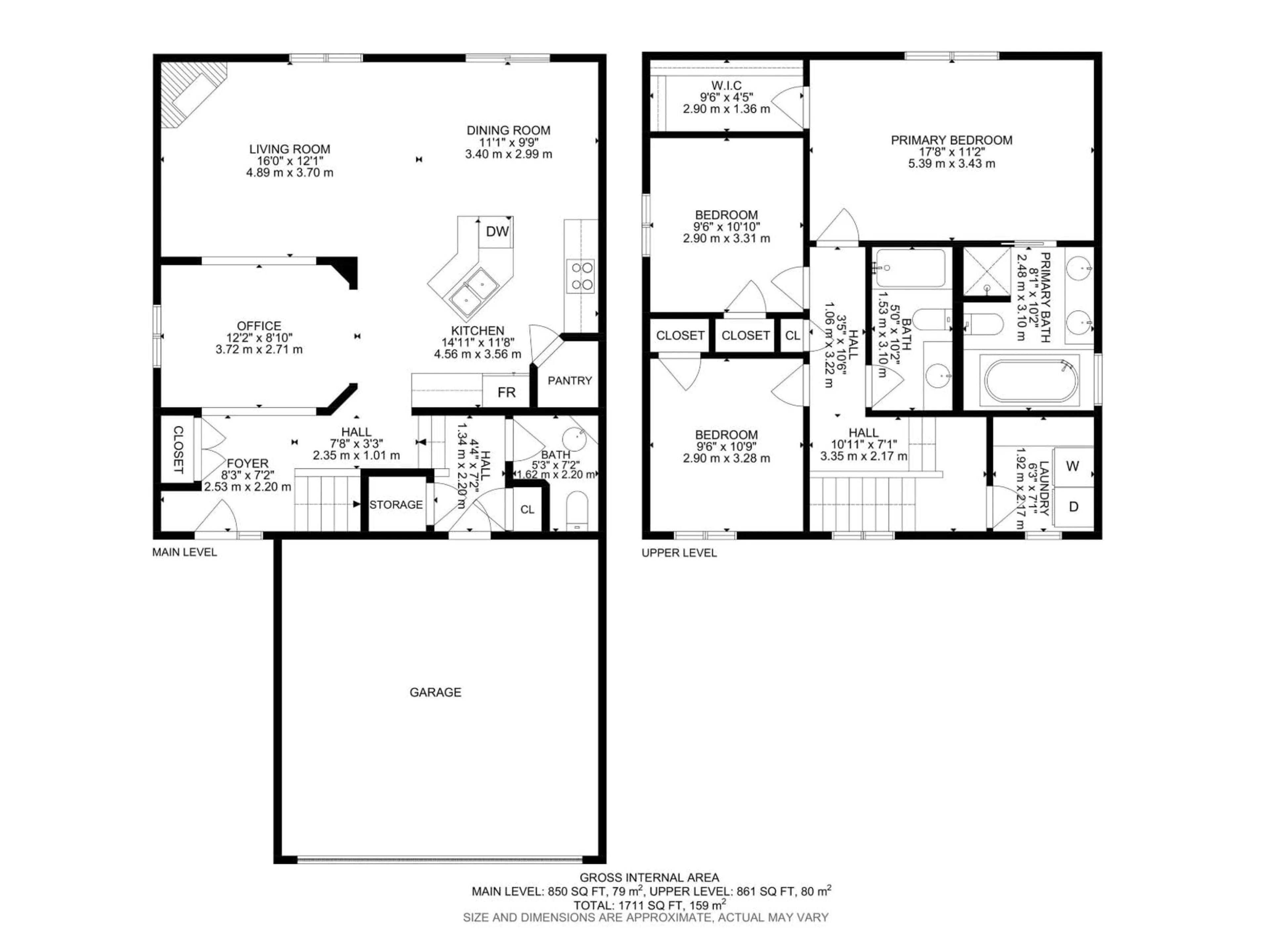
Come check out this lovely two story home located in the desirable community of McConahie close to shopping, schools, parks day-care, transit and much more. The open concept main floor offers a bright living room with corner gas fireplace, breakfast nook, designated dining room or flex space, and kitchen complete with granite counters, stainless steel appliances, corner pantry and cabinets finished to the ceiling. A spacious entryway, plenty of storage and half bath tucked around the corner complete the main floor. The upstairs features a laundry room, full 4 piece bathroom, 3 spacious bedrooms including the primary bedroom with a massive walk-in closet and 5 piece ensuite bathroom. Enjoy the fully landscaped yard with a large deck, storage shed, plus a gas line BBQ hookup. Additional property features include a large fully drywalled double attached garage with epoxy coated floor (perfect for easy clean ups!), central air conditioning, and an unfinished basement ready to make your own. (id:39198)
Property Details
Interior
Features
Upper Level Floor
Bedroom 3
10'9" x 9'6"Primary Bedroom
11'2" x 17'8"Bedroom 2
10'10" x 9'6"Property History
51




