NE - 534 176 AV, Edmonton, Alberta T5Y4J9
Contact us about this property
Highlights
Estimated valueThis is the price Wahi expects this property to sell for.
The calculation is powered by our Instant Home Value Estimate, which uses current market and property price trends to estimate your home’s value with a 90% accuracy rate.Not available
Price/Sqft$319/sqft
Monthly cost
Open Calculator
Description
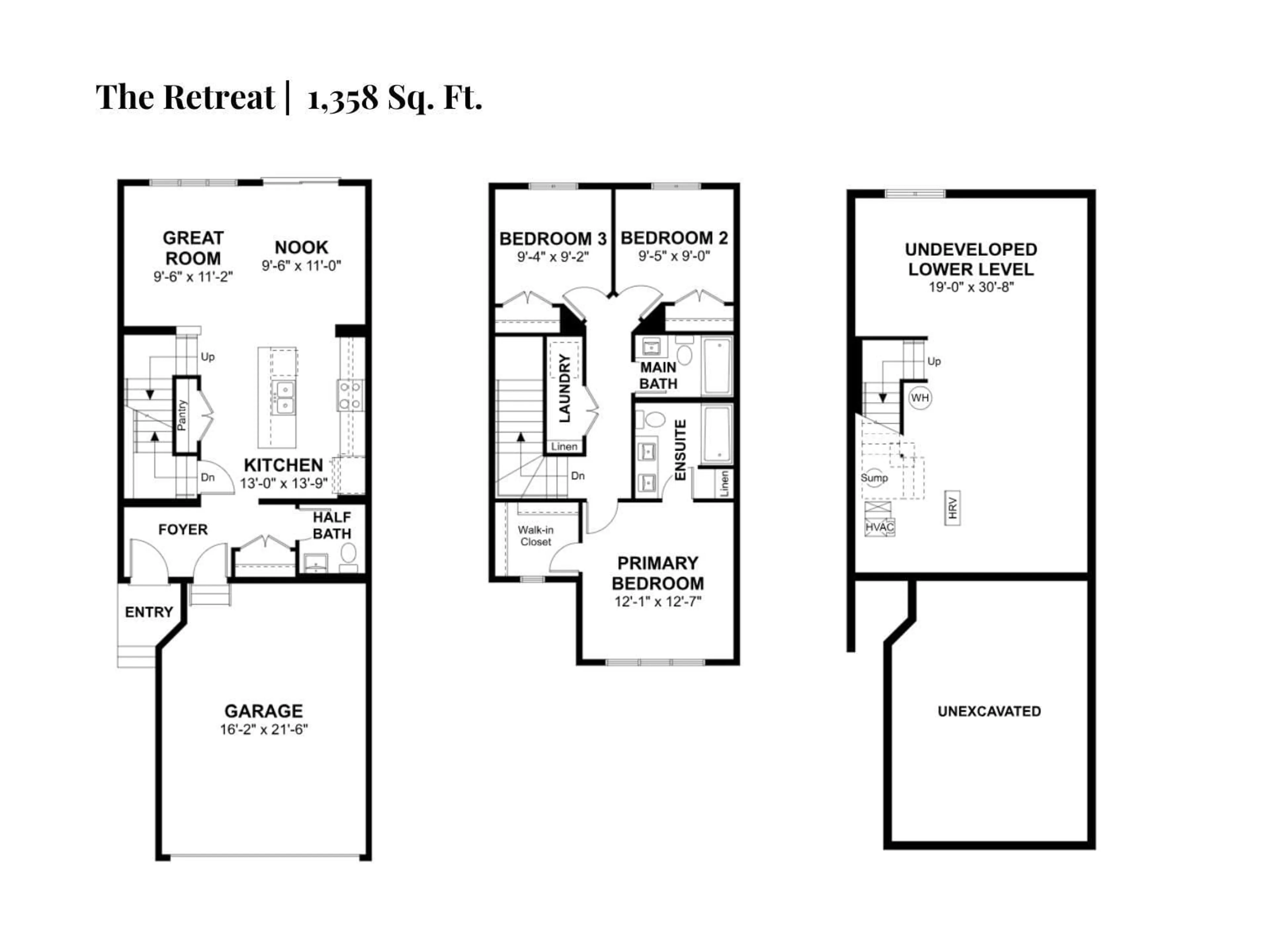
Built by Sterling Homes, this bright, thoughtfully designed duplex in Marquis offers modern living surrounded by parks, ponds, and trails. Triple pane windows and 9’ ceilings create an open main floor where a spacious foyer flows into the great room, dining area, and stylish kitchen with quartz countertops, island seating, upgraded cabinetry, chimney hood fan, built-in microwave, and full-height tile backsplash. Large rear windows and a sliding patio door fill the space with natural light. Upstairs features a generous primary suite with walk-in closet and 4-piece ensuite with double sinks, plus two bedrooms, full bath, laundry, and a versatile bonus room. Complete with luxury vinyl plank flooring, double attached garage with floor drain, side entrance, and basement rough-ins. (id:39198)
Property Details
Interior
Features
Main level Floor
Living room
3.37 x 3.19Dining room
3.32 x 2.62Kitchen
4.32 x 3.95Exterior
Parking
Garage spaces -
Garage type -
Total parking spaces 4
Property History
36





