Contact us about this property
Highlights
Estimated valueThis is the price Wahi expects this property to sell for.
The calculation is powered by our Instant Home Value Estimate, which uses current market and property price trends to estimate your home’s value with a 90% accuracy rate.Not available
Price/Sqft$369/sqft
Monthly cost
Open Calculator
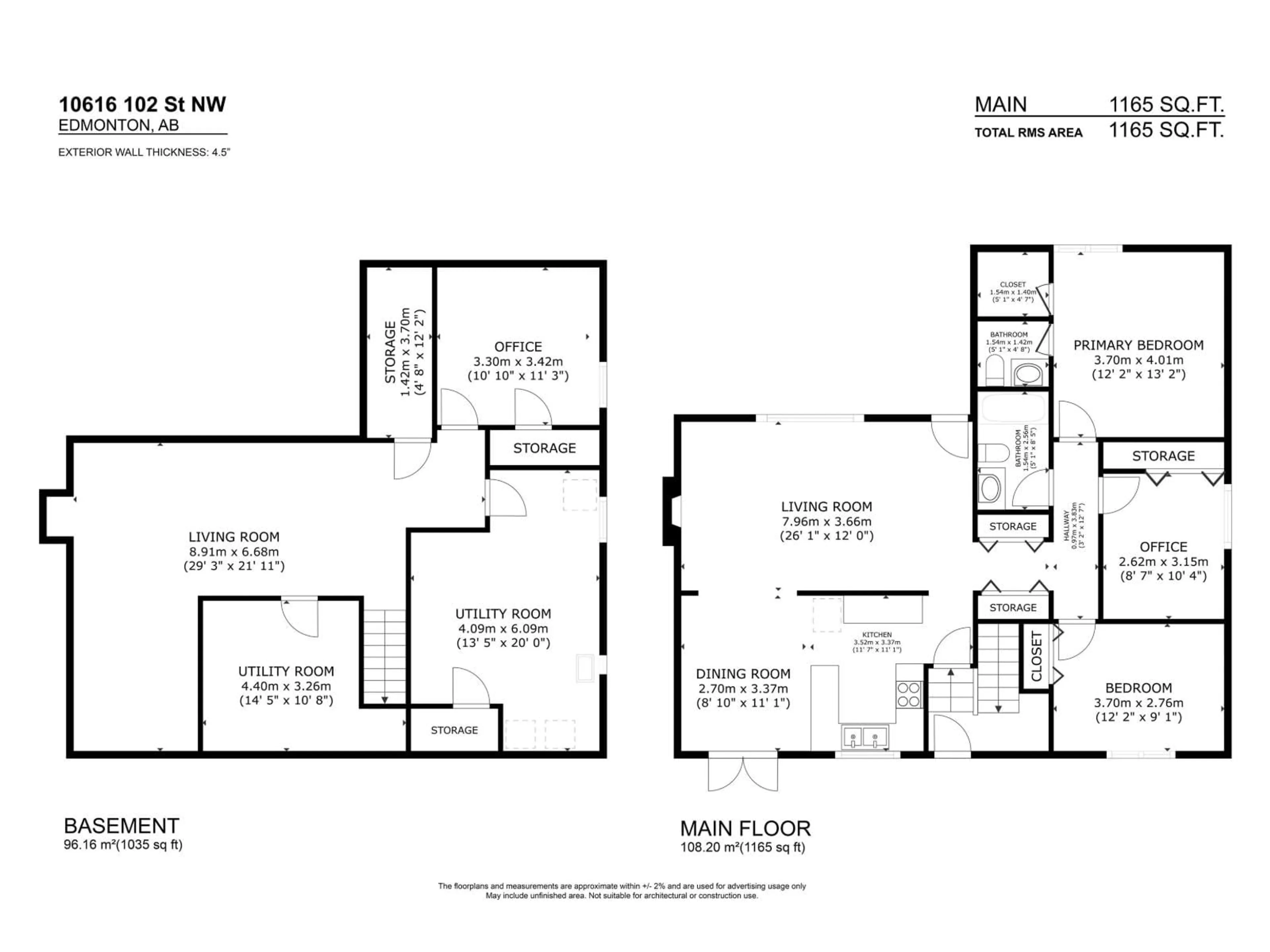
Description
In the mature, tree-lined neighbourhood of Lorelei, this classic bungalow sits on a large 7400 sq ft lot with convenient front-drive access & plenty of parking. Offering great bones & timeless charm, this home presents an incredible opportunity for renovators or buyers looking to customize their own space. Inside, find a functional layout, a bright living room with large windows & a brick fireplace, a comfortable dining room with access to the back patio & kitchen with original oak cabinets overlooking the backyard. Down the hall is a large a storage closet, 2 nice sized bedrooms & the main bath which leads to a generous sized primary bedroom with walk in closet & ensuite. Downstairs find a large rec room, an office/den next to a separate room with bathroom rough in. A large storage room & an even larger laundry/utility room. This home with A/C has been well cared for and maintained, the recently serviced furnace was replaced in 2010 along with the Windows/Doors, Shingles 2014 & is awaiting a new chapter. (id:39198)
Property Details
Interior
Features
Main level Floor
Living room
5.12 x 3.69Dining room
3.35 x 2.72Kitchen
3.34 x 2.47Primary Bedroom
4 x 3.68Exterior
Parking
Garage spaces -
Garage type -
Total parking spaces 6
Property History
41






