1758 KEENE CR, Edmonton, Alberta T6W3W3
Contact us about this property
Highlights
Estimated valueThis is the price Wahi expects this property to sell for.
The calculation is powered by our Instant Home Value Estimate, which uses current market and property price trends to estimate your home’s value with a 90% accuracy rate.Not available
Price/Sqft$307/sqft
Monthly cost
Open Calculator
Description
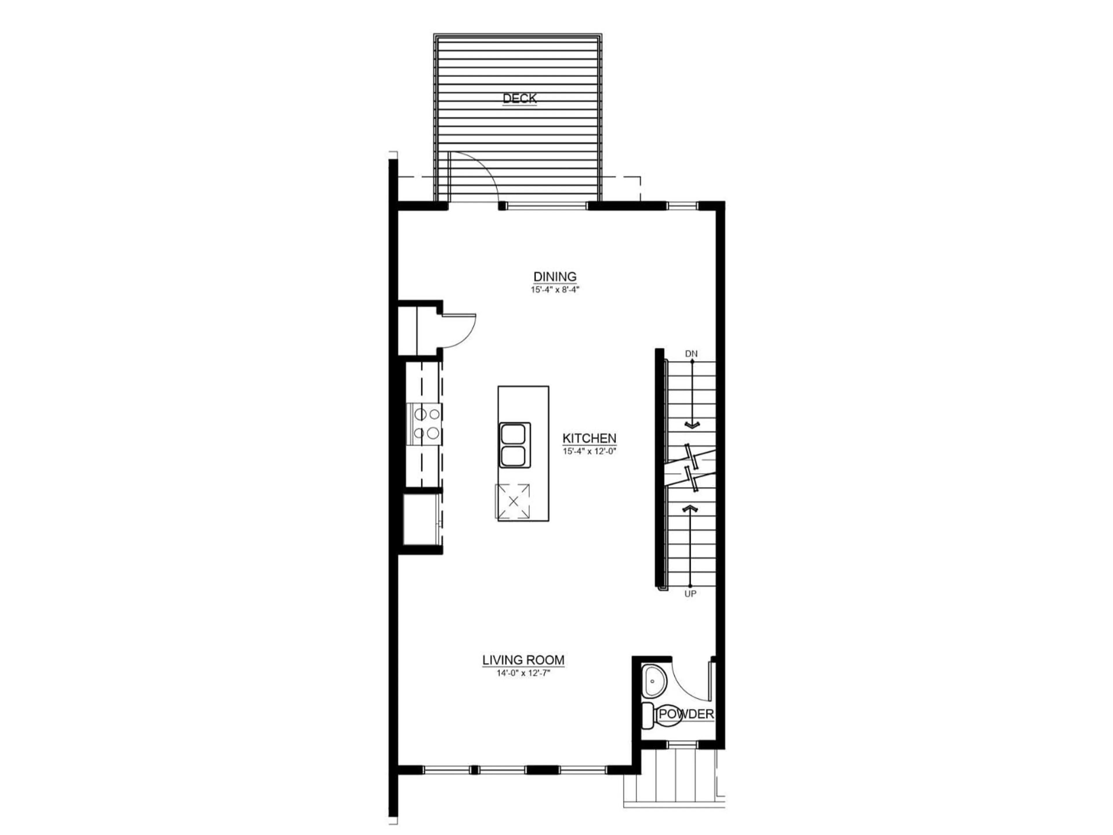
Welcome to Keswick—one of Southwest Edmonton’s most desirable communities—& a standout End Unit townhome with no condo fees. Offering 1,465 sq ft of upgraded, open-concept living, this home delivers the perfect blend of style, function, and long-term value. The main floor impresses with floor-to-ceiling windows that flood the space with natural light, creating a bright & inviting atmosphere. The modern kitchen is designed to elevate everyday living, featuring quartz countertops, a large island, sleek cabinetry, & stainless steel appliances seamlessly connecting to the living and dining areas. Upstairs, you’ll find 3 bedrooms, 2 full bathrooms, & convenient upper-floor laundry. The primary suite offers a spacious closet & a private ensuite with a glass shower. Enjoy your fully landscaped yard & deck rare for a townhome plus a double attached tandem garage over 31 feet deep, providing exceptional space for vehicles & storage. Complete with A/C & ideally located near parks, ponds & all amenities. (id:39198)
Property Details
Interior
Features
Main level Floor
Living room
3.81 x 4.23Dining room
2.63 x 4.66Kitchen
3.33 x 4.67Property History
65






