10352/10354 147 ST, Edmonton, Alberta T5N3C3
Contact us about this property
Highlights
Estimated valueThis is the price Wahi expects this property to sell for.
The calculation is powered by our Instant Home Value Estimate, which uses current market and property price trends to estimate your home’s value with a 90% accuracy rate.Not available
Price/Sqft$474/sqft
Monthly cost
Open Calculator
Description
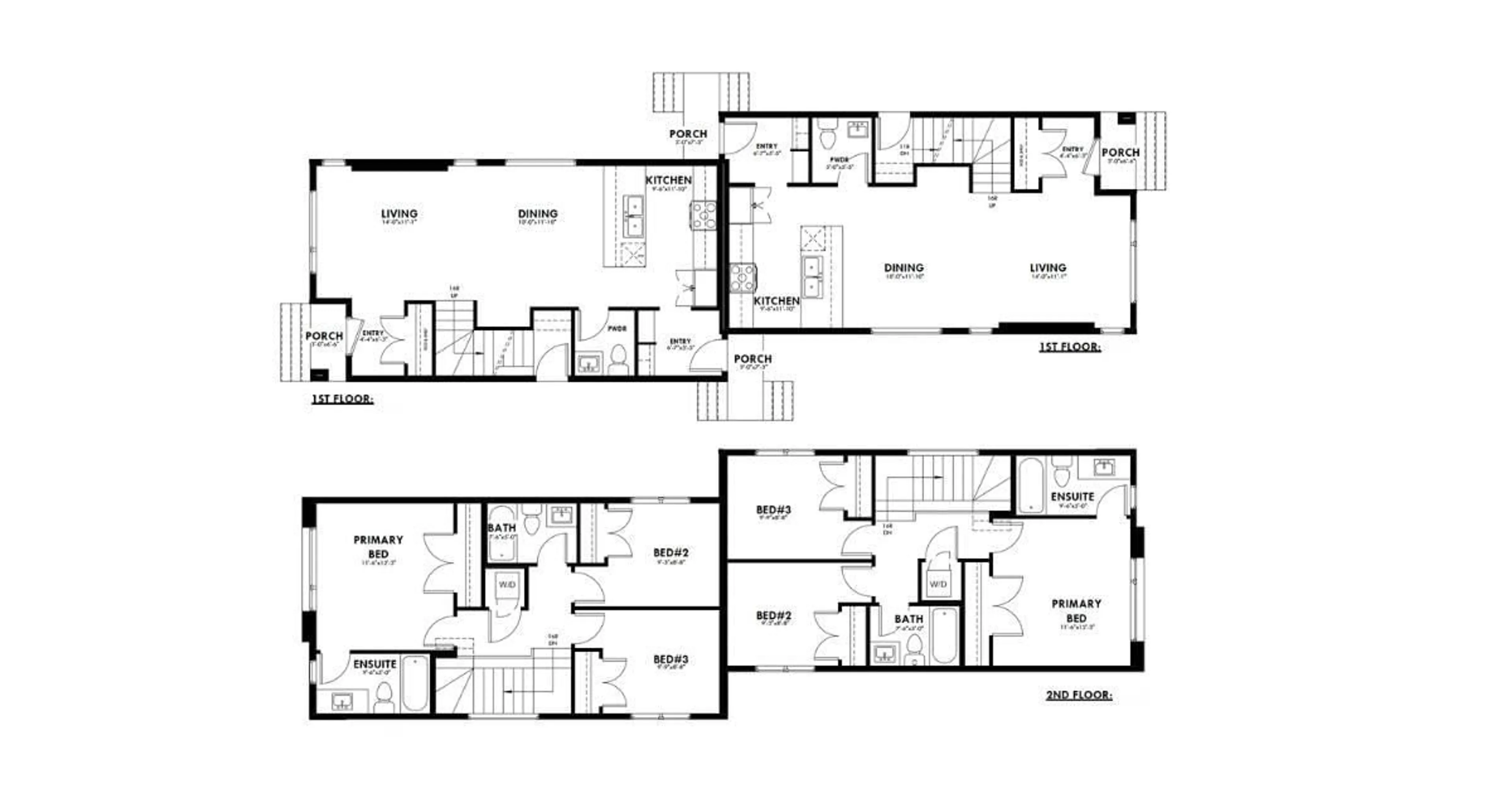
Rare 5 suite opportunity in the prime community of Grovenor. This brand new front-to-back duplex features TWO 3 bed / 2.5 bath main floor units, TWO 2 bed / 1 bath basement suites, and ONE fully self-contained 2 bed / 1 bath garage suite. Designed with functional layouts, modern finishes, and two single detached garages to support strong rental appeal. Built by NDura Developments, one of Edmonton’s premier infill builders, known for quality craftsmanship and thoughtful design. Delivered fully turnkey with appliances, landscaping, and blinds included, allowing for immediate occupancy or rental income. Located walking distance to the Valley Line West LRT and minutes to Downtown, Misericordia Hospital, schools, shopping, and the River Valley. Qualifies for CMHC MLI Select financing. Ideal for investors, house-hackers, or buyers looking to offset their mortgage with multiple income-generating suites. (id:39198)
Property Details
Interior
Features
Main level Floor
Living room
Dining room
Kitchen
Property History
13






