6511 103 AV, Edmonton, Alberta T6A0T7
Contact us about this property
Highlights
Estimated valueThis is the price Wahi expects this property to sell for.
The calculation is powered by our Instant Home Value Estimate, which uses current market and property price trends to estimate your home’s value with a 90% accuracy rate.Not available
Price/Sqft$486/sqft
Monthly cost
Open Calculator
Description
5 BEDROOMS! Amazing LOCATION, on a quiet street in the heart of FULTON PLACE, just a few seconds from the river valley! With fantastic upgrades throughout you'll love this main floor 3+1 bath home. Most importantly the kitchen has been upgraded, including newer tile, cabinets, counter tops with a beautiful waterfall feature, appliances, plus a gas range, and an oversized ceramic sink! The living rooms impressive vaulted ceiling is complimented by a newer gas fireplace with a floor to ceiling plaster surround. The main floor has beautiful hardwood floors throughout, a bathroom remodel, and there's Central A/C! Located on a large CORNER LOT, plenty of street parking, with quick access to Wayne Gretzkey Drive and Baseline Road, Fulton Place is perfect for a quick commute, while still offering that older neighborhood charm. A MUST SEE! (id:39198)
Property Details
Interior
Features
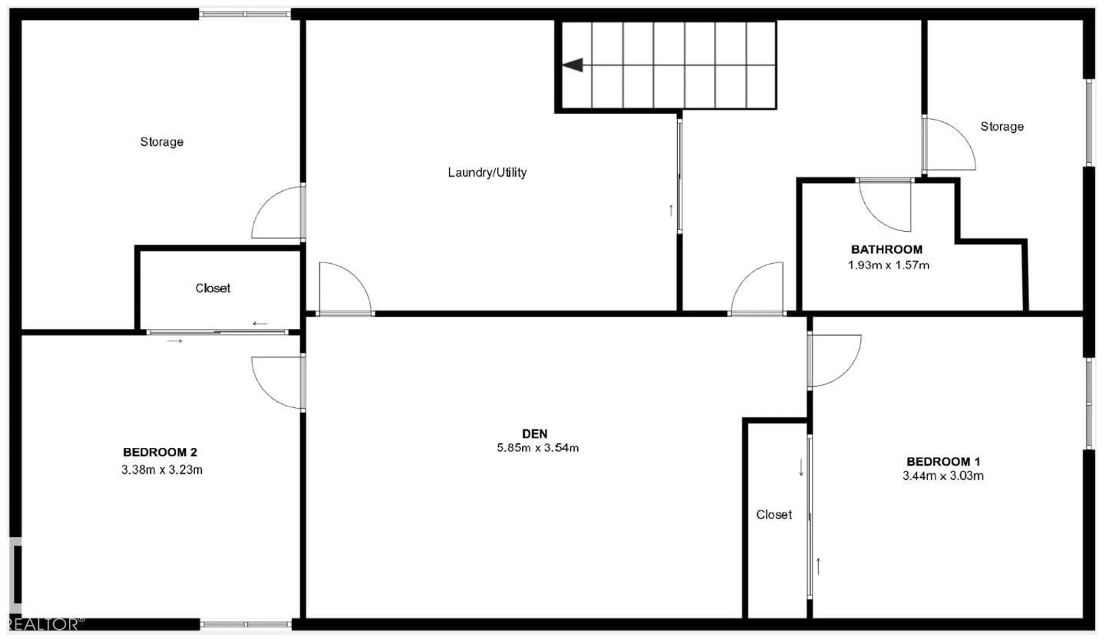
Main level Floor
Primary Bedroom
3.69 x 3.3Bedroom 2
3.68 x 2.4Bedroom 3
3.14 x 2.4Exterior
Parking
Garage spaces -
Garage type -
Total parking spaces 2
Property History
43






