10360 - 4603 102 ST, Edmonton, Alberta T5J0K6
Contact us about this property
Highlights
Estimated valueThis is the price Wahi expects this property to sell for.
The calculation is powered by our Instant Home Value Estimate, which uses current market and property price trends to estimate your home’s value with a 90% accuracy rate.Not available
Price/Sqft$597/sqft
Monthly cost
Open Calculator
Description
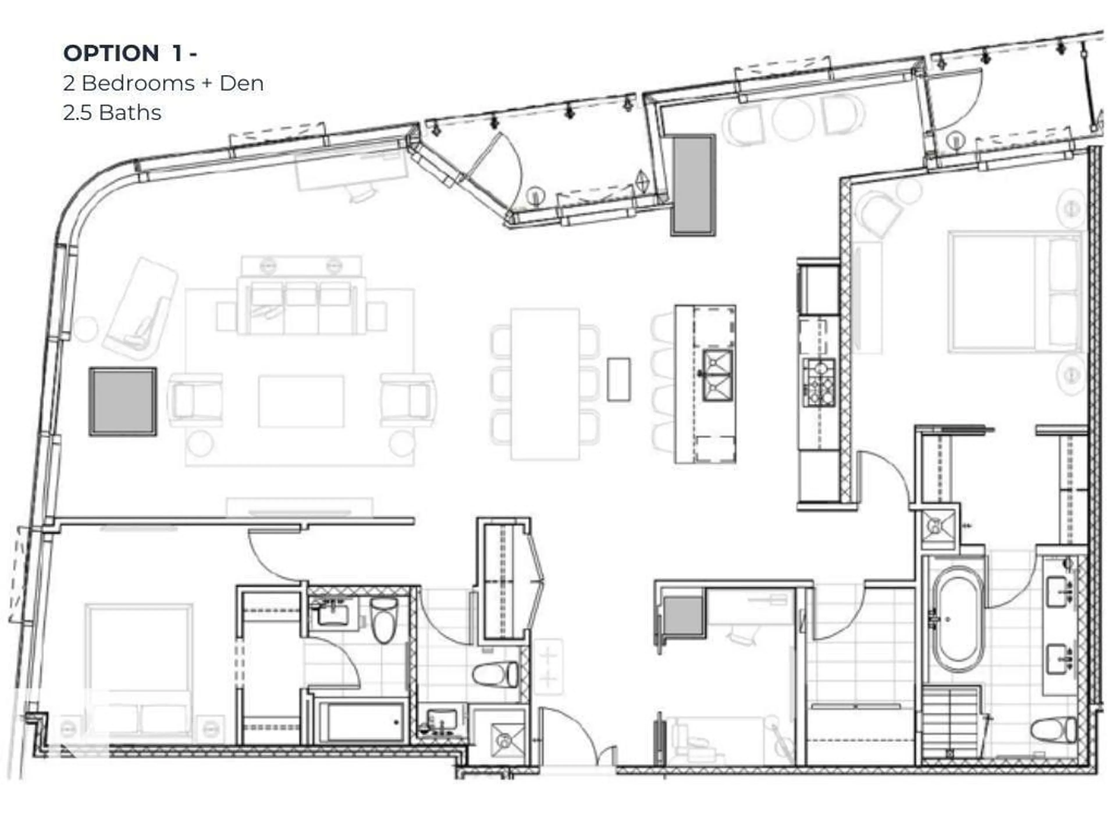
The opportunity you have been waiting for… Downtown’s only Custom Residence located within ICE District at Legends Private Residence - JW Marriott! Suite #4603 offers South-West views, a spacious split-bedroom design with optional den, and 2 Full or 2.5 Baths. Pricing reflects an unfinished suite, the Seller has 5 floorplan designs for review. ICE District's central location encourages a walk-indoors lifestyle with pedway access to Rogers Place, financial core, grocery retailer, major banks + more. Resident's enjoy an exclusive lounge with full kitchen, billiards area, access to large outdoor terrace with gas grills + seating, plus a convenient dog-run located on a secure floor. World-class JW Marriott shared facilities include a sensational spa with indoor pool + steam areas, ARCHETYPE Fitness Facility, 24/7 concierge + security, valet and numerous dining options at your doorstep. (id:39198)
Property Details
Interior
Features
Main level Floor
Primary Bedroom
Bedroom 2
Exterior
Parking
Garage spaces -
Garage type -
Total parking spaces 2
Condo Details
Amenities
Ceiling - 9ft
Inclusions
Property History
36




