10360 102 ST NW - 2303 102 ST, Edmonton, Alberta T5J0K6
Contact us about this property
Highlights
Estimated valueThis is the price Wahi expects this property to sell for.
The calculation is powered by our Instant Home Value Estimate, which uses current market and property price trends to estimate your home’s value with a 90% accuracy rate.Not available
Price/Sqft$790/sqft
Monthly cost
Open Calculator
Description
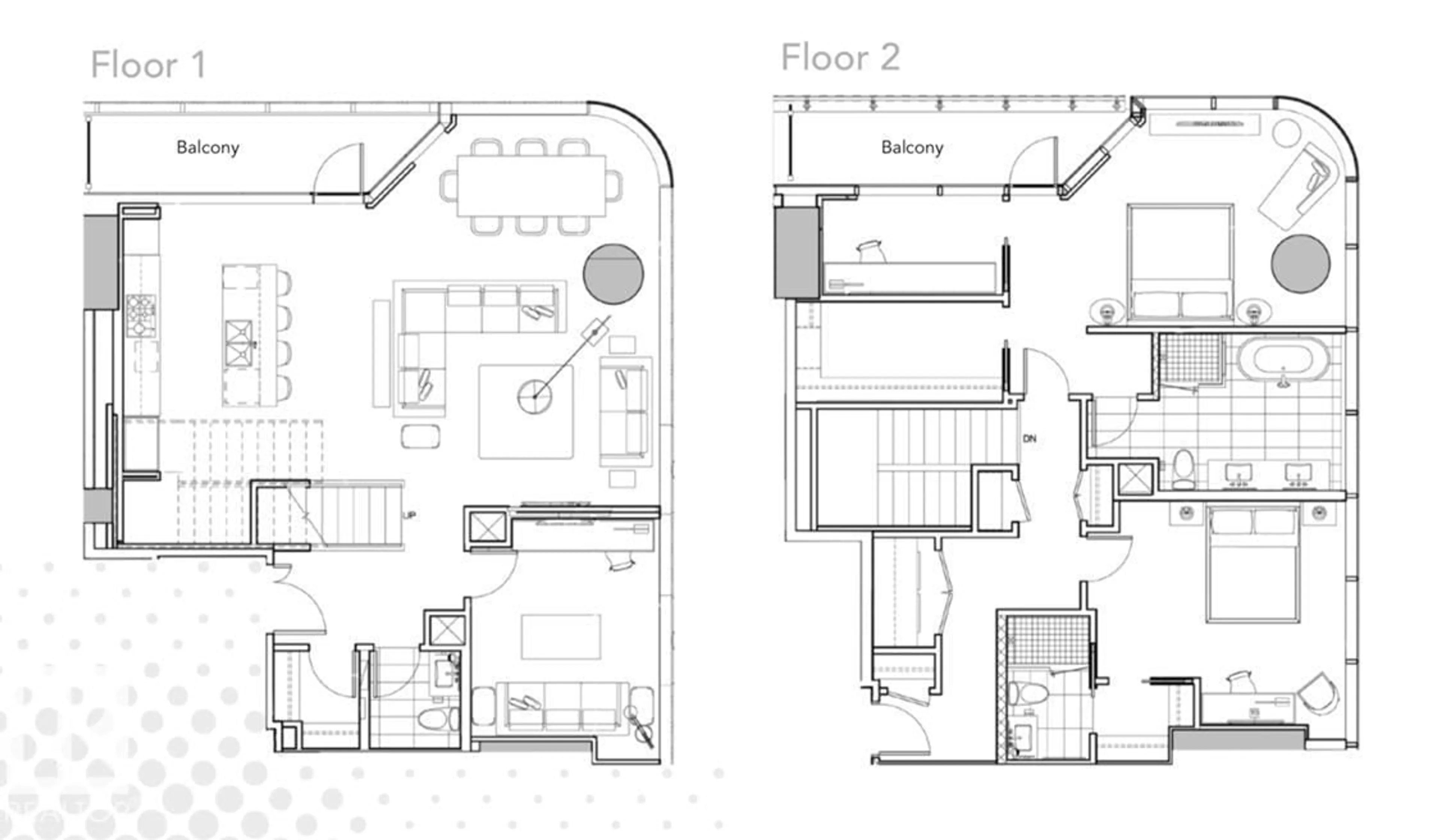
What an opportunity at Legends Private Residences... a stunning 2000 sqft, 2-Storey Townhouse located high above the skyline within the exclusive JW Marriott Tower! This unique townhouse property (only 4 exist!) offers a number of upgrades - 12 ft ceilings on main, a cozy fireplace, timeless maple floors and plenty of space to entertain. Appreciate a 'modern-look' kitchen with fully integrated appliances, including full-size gas-range, fridge and convenient wine fridge. Suite highlights include 2 spacious bedrooms , each with ensuite, walk-in closets with an abundance of storage, and natural-light main-floor office! ICE District's central location encourages a true walk-indoors experience with pedway access to Rogers Place, financial core and major grocery retailer + more. World-class JW Marriott shared facilities include sensational spa with indoor pool + steam areas, ARCHETYPE Fitness Facility, 24/7 concierge/security services, valet and numerous dining options at your doorstep. PRICE INCLUDES 2 STALLS! (id:39198)
Property Details
Interior
Features
Upper Level Floor
Primary Bedroom
Bedroom 2
Exterior
Parking
Garage spaces -
Garage type -
Total parking spaces 2
Condo Details
Amenities
Ceiling - 10ft
Inclusions
Property History
47




