Contact us about this property
Highlights
Estimated valueThis is the price Wahi expects this property to sell for.
The calculation is powered by our Instant Home Value Estimate, which uses current market and property price trends to estimate your home’s value with a 90% accuracy rate.Not available
Price/Sqft$302/sqft
Monthly cost
Open Calculator
Description
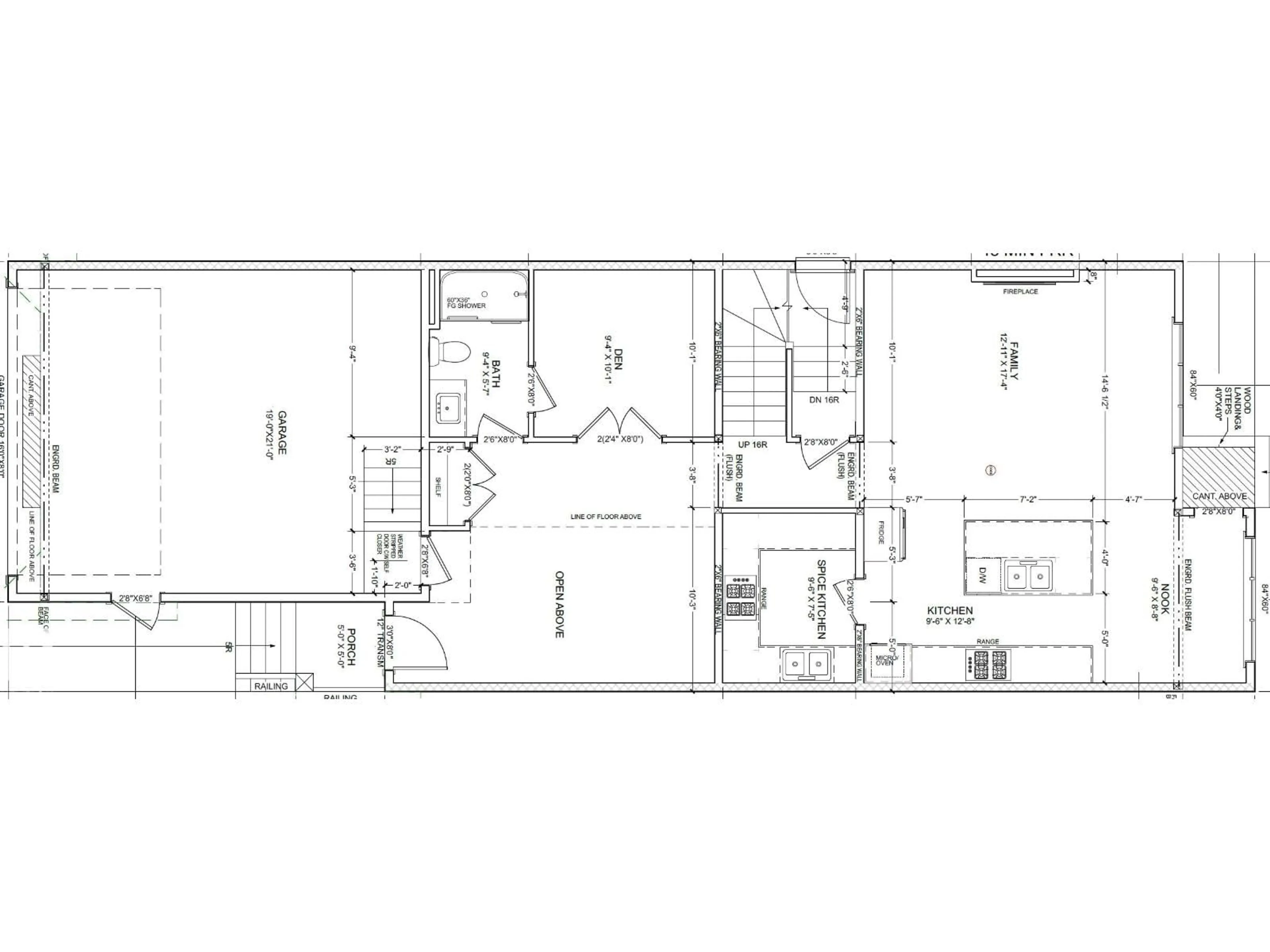
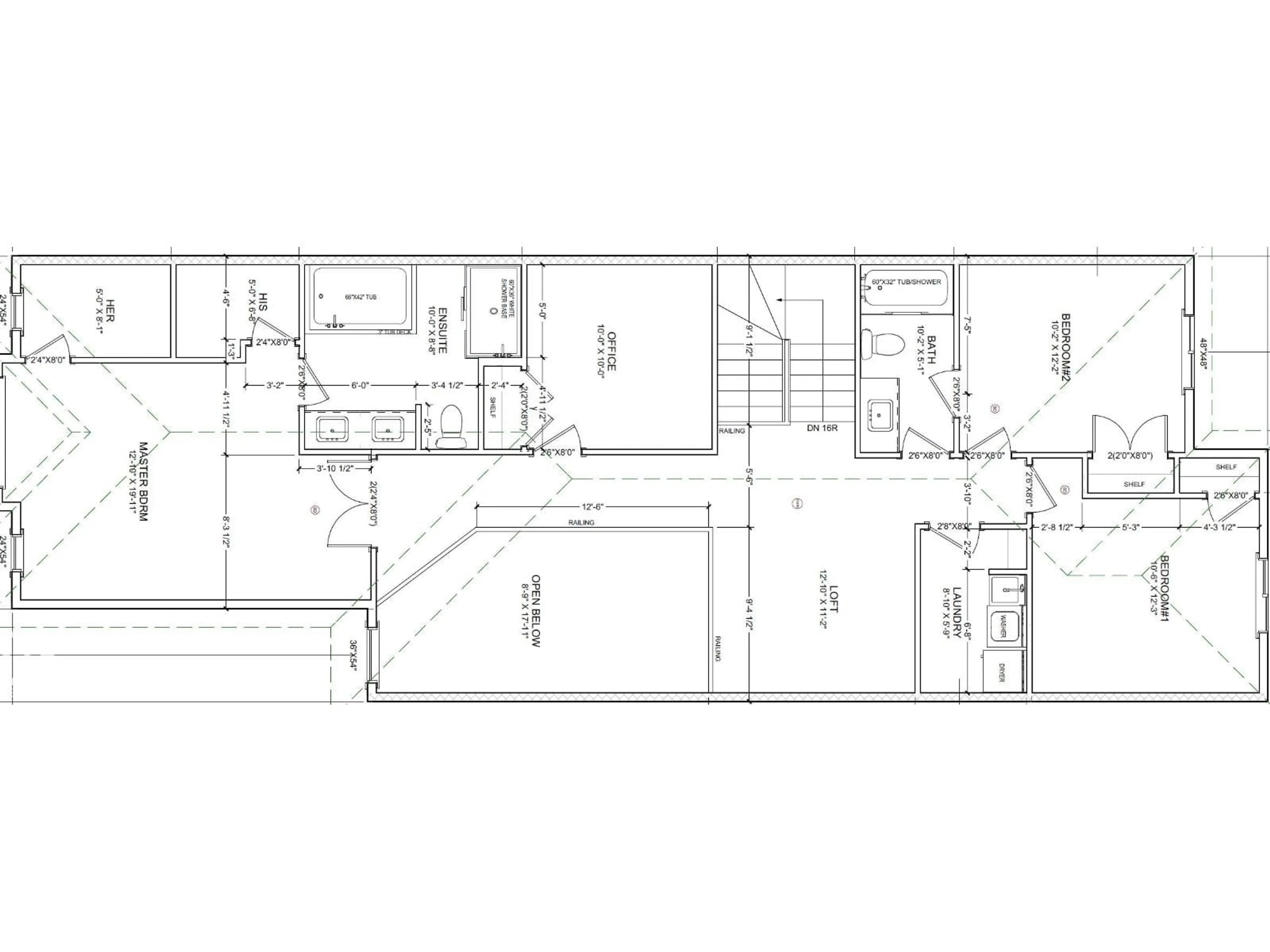
5 ROOMS + 2 LIVING ROOMS+ SPICE KITCHEN+ OPEN TO BELOW CEILING+ BONUS ROOM in SOUTH EDMONTON . Welcome to this Fully upgraded home in Alces. Featuring 3 bedrooms, 2 Dens (one on main level and another at upper level) and 3 full bathrooms. The main floor includes a full bathroom and Den, a spacious great room with an electric fireplace, a dedicated dining area, and a well-appointed kitchen complemented by a spice kitchen! Upstairs, you’ll find a flexible loft space, office, full bathroom, convenient laundry room, and 3 bedrooms. The primary suite comes with his-and-hers walk-in closets and a private ensuite featuring double sinks and a separate tub and shower. Additional highlights include a double Attached garage, a separate side entrance, and an unfinished basement suite with excellent future potential. This home offers exceptional value in a growing community. *Pictures are for illustration only, original colors and finishes may vary. This property is under construction. (id:39198)
Property Details
Interior
Features
Main level Floor
Second Kitchen
Living room
Dining room
Kitchen
Property History
20






