NW - 10814 108 ST, Edmonton, Alberta T5H3A7
Contact us about this property
Highlights
Estimated valueThis is the price Wahi expects this property to sell for.
The calculation is powered by our Instant Home Value Estimate, which uses current market and property price trends to estimate your home’s value with a 90% accuracy rate.Not available
Price/Sqft$489/sqft
Monthly cost
Open Calculator
Description
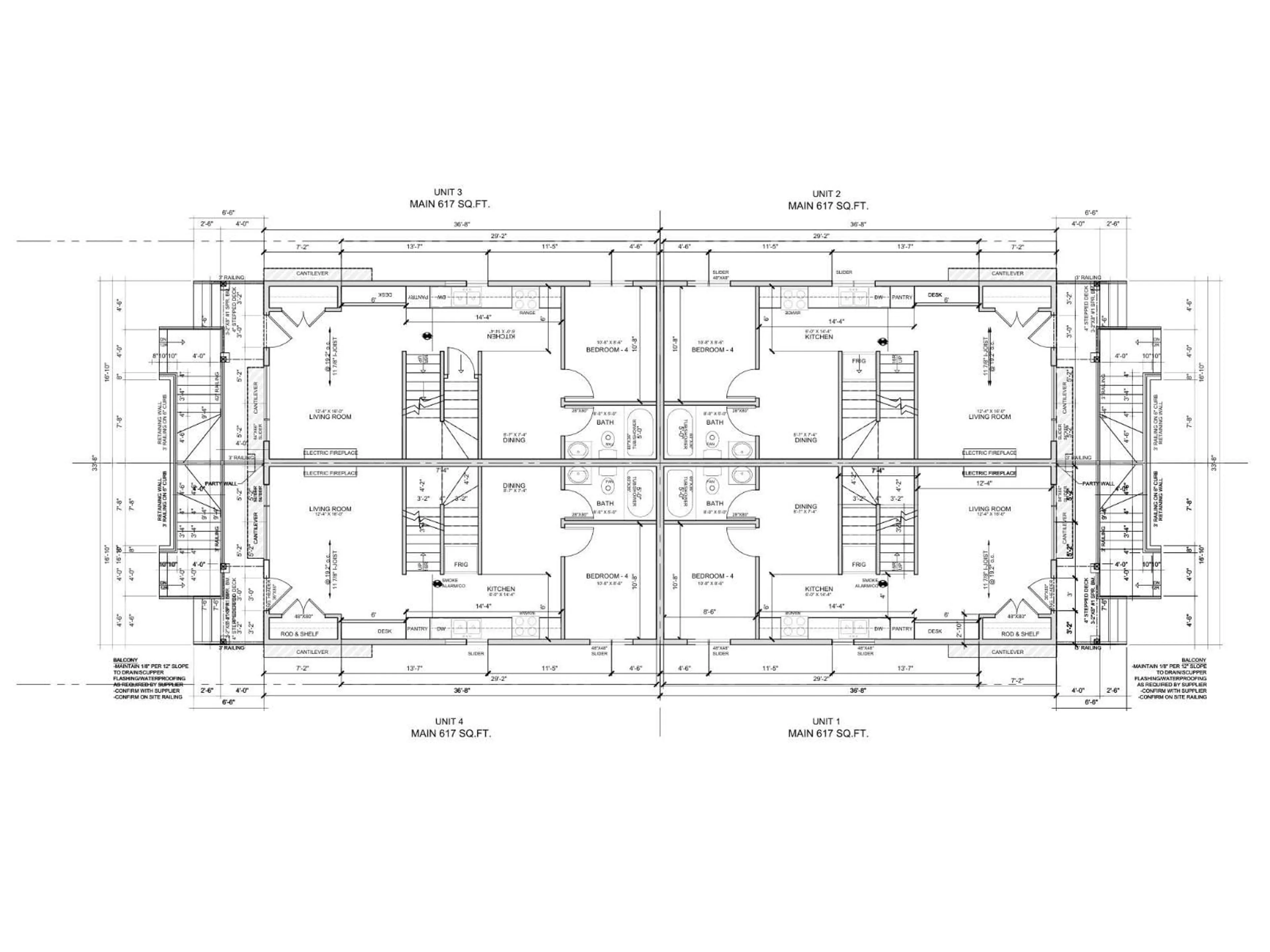
Welcome to a luxurious multi-family 8plex built by Landridge Homes in the desirable Central McDougall neighbourhood. This brand new build features 8 units, 4 upper units and 4 basement units, with a total of 24 bedrooms, including 16 baths. With a total of 6,965 sq ft, this property boasts 9 ft ceilings, luxury finishings, feature walls, and a built-in fireplace. Each units upper levels have 4 bedrooms each and apartment-style basement suites with 2 bedrooms. The property also includes a cement parking pad and fully turnkey amenities such as brand new stainless steel appliances, blinds, landscaping, and fencing. This a great investment opportunity with rental guarantee for the first year. Don't miss out on this incredible chance to own a turnkey multi-family project in a prime location. Visit our multi-family Showhome at 8203 98 Ave NW, open Monday to Friday, 9AM - 5PM! GST Not Applicable. Construction set to start in summer with possession for 12 months. (id:39198)
Property Details
Interior
Features
Main level Floor
Living room
Dining room
Kitchen
Property History
57






