52 - 10909 106 ST NW, Edmonton, Alberta T5H4M7
Contact us about this property
Highlights
Estimated valueThis is the price Wahi expects this property to sell for.
The calculation is powered by our Instant Home Value Estimate, which uses current market and property price trends to estimate your home’s value with a 90% accuracy rate.Not available
Price/Sqft$250/sqft
Monthly cost
Open Calculator
Description
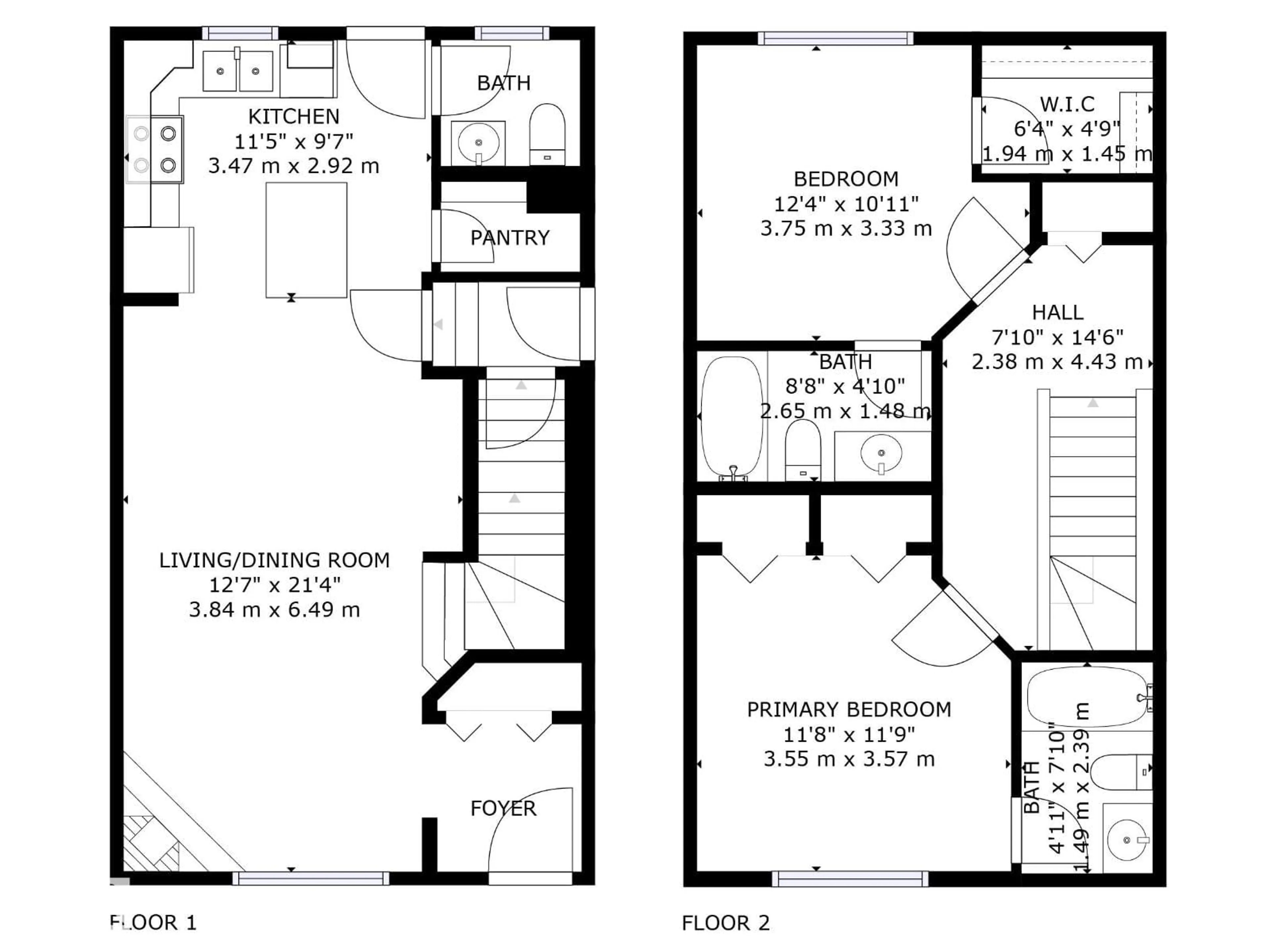
This bright & beautifully renovated townhouse showcases a rare & highly desirable layout featuring 2 spacious primary suites, each complete with its own private 4-piece ensuite—ideal for professionals, roommates, or maximizing rental potential. The kitchen is both stylish and functional, highlighted by upgraded stainless steel appliances, refreshed countertops, and generous cabinetry. Cozy up by the gas fireplace, enjoy your morning coffee on the charming front veranda, and take advantage of the oversized single attached garage for added convenience. Ideally located just minutes from Downtown, offering exceptional convenience for professionals and students alike. Enjoy quick access to the Royal Alexandra Hospital, NAIT, MacEwan University, Kingsway Mall, and the vibrant Ice District, with the LRT just steps away for an easy commute to the University of Alberta. This property is a fantastic opportunity for a rental investment, or comfortable owner-occupancy. (id:39198)
Property Details
Interior
Features
Upper Level Floor
Primary Bedroom
Bedroom 2
Condo Details
Inclusions
Property History
29





