NW - 5512 150 AV, Edmonton, Alberta T5A2L8
Contact us about this property
Highlights
Estimated valueThis is the price Wahi expects this property to sell for.
The calculation is powered by our Instant Home Value Estimate, which uses current market and property price trends to estimate your home’s value with a 90% accuracy rate.Not available
Price/Sqft$262/sqft
Monthly cost
Open Calculator
Description
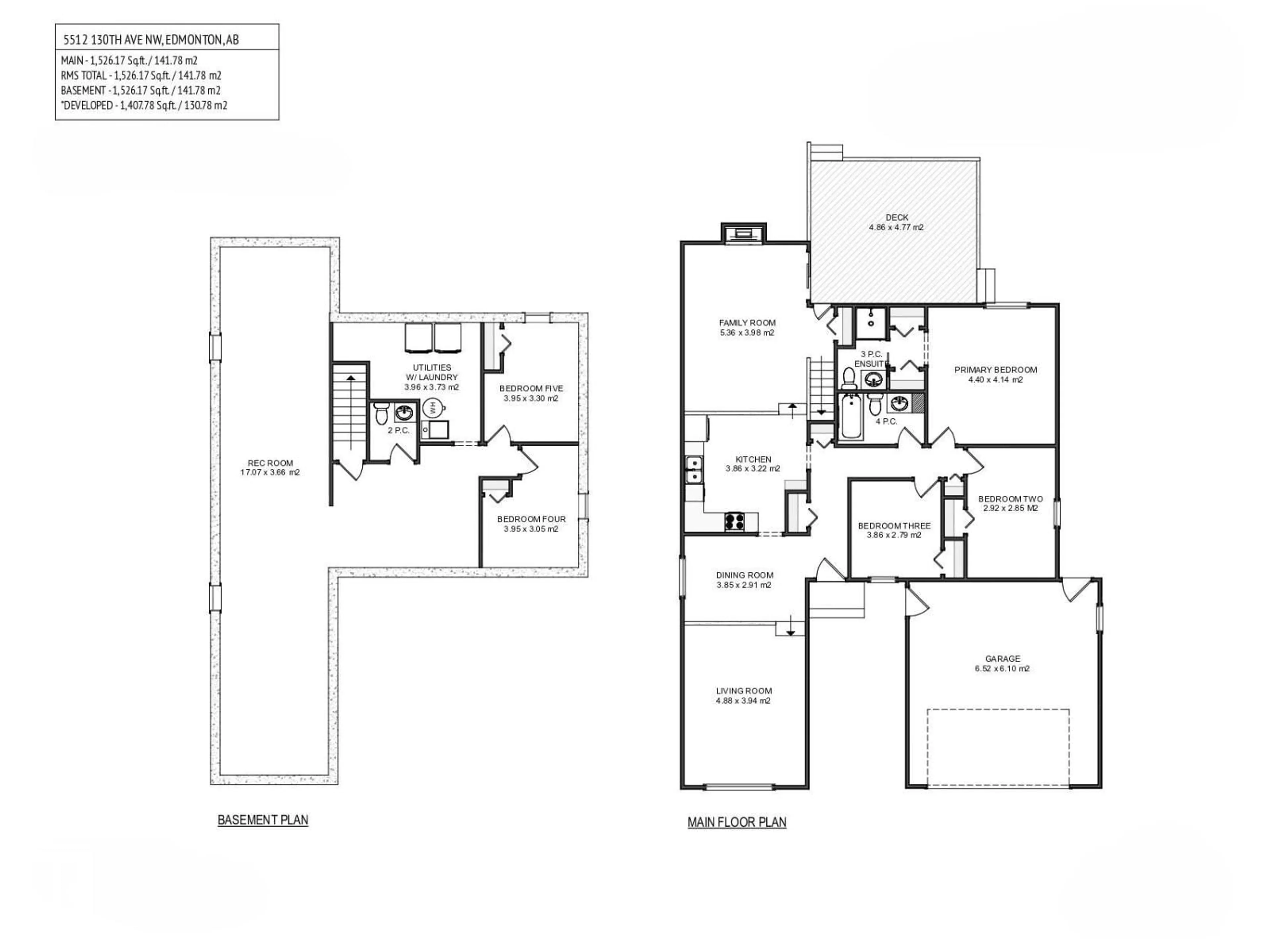
Situated on a quiet street in Casselman – a beautiful family community – close to all amenities, schools, shopping & more! This spacious home is full of character & opportunity offering great bones & unlimited potential for the right buyer with 1526sqft on the main floor – 1407sqft in the finished basement – totaling 2934sqft of finished living space – 3 + 2 beds – 2.5 baths – oversized double attached garage/extra ceiling height – all located on a 6331sqft fully landscaped & fenced lot. The original elements throughout showcase the charm of this home, providing plenty of room for a growing family. The natural light flows from the formal living room & dining room to the kitchen & family room offering a warm & inviting feeling. The basement offers even more room to expand, with two bedrooms, a half bath & a large family area perfect for relaxing, entertaining, or creating extra living space. Whether you’re looking to renovate, invest, or create your dream family home, this property is a rare opportunity! (id:39198)
Property Details
Interior
Features
Main level Floor
Living room
4.88 x 3.94Dining room
3.85 x 2.91Kitchen
3.86 x 3.22Family room
5.36 x 3.98Property History
53






