460041 RANGE ROAD 41, Rural Wetaskiwin County, Alberta T0C2X0
Contact us about this property
Highlights
Estimated valueThis is the price Wahi expects this property to sell for.
The calculation is powered by our Instant Home Value Estimate, which uses current market and property price trends to estimate your home’s value with a 90% accuracy rate.Not available
Price/Sqft$430/sqft
Monthly cost
Open Calculator
Description
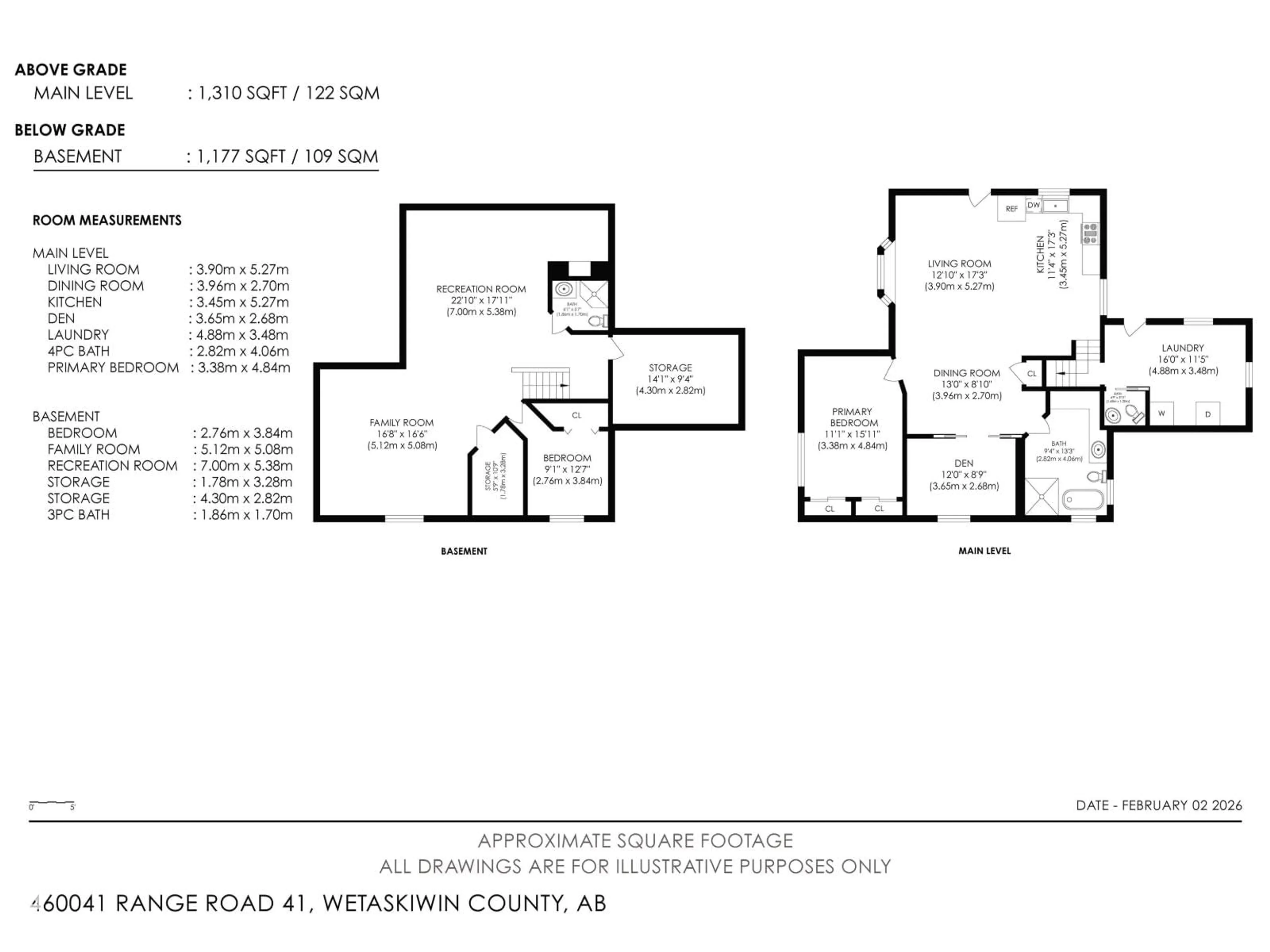
Set on 31acres, this beautifully renovated bungalow offers the perfect blend of open space & privacy, with approximately 4acres of grassy land & the remainder mature trees—ideal for a hobby farm or nature lovers! Built in the 1960s, the 1310sqft home was relocated onto a new foundation & renovated throughout. The main floor offers a welcoming front rm w/a corner wood stove, spacious kitchen w/butcher block counters & modern cabinetry, plus a large primary, den & a generous 4pc bath. A functional back porch offers laundry, additional apps, large sink, extended counter space & 2pc bath. The finished basement includes a bedroom, 3pc bath, storage, utility rm & expansive living area. Outdoor highlights include decks on 3 sides-one side is covered, 2-storey gazebo, wood shed, multiple storage sheds, a 2-storey work shed & serene forest walking paths throughout the property. Updates include a new septic, well, natural gas, plumbing, HVAC & electrical, along w/exterior upgrades. COUNTRY LIVING AT IT’S FINEST! (id:39198)
Property Details
Interior
Features
Main level Floor
Living room
Dining room
Kitchen
Den
Property History
70





